Submitted by WA Contents
Neri&Hu presents a transformative journey of Tbilisi's Telegraph building into a living civic space
Georgia Architecture News - Jan 08, 2026 - 05:30 3458 views

Renowned Chinese architecture firm Neri&Hu has transformed Tbilisi's historic central post office into a stunning 239-room hotel, skillfully preserving the building's iconic modernist facade.
This captivating renovation not only honors the site's rich heritage but also revitalizes it for a new generation of visitors.
A significant reminder of Georgia's Soviet past is the old Telegraph Building in Tbilisi. This brutalist icon, which was designed in the 1960s by architects Lado Alexi-Meskhishvili and Teimuraz Mikashavidze and completed in the 1970s, received the Georgia State Prize in 1983 with the architects. The structure was once the city's main post office and telegraph office.

The Telegraph Hotel, exterior
The building was more than simply a hub for infrastructure; it was also a hub for communication and a crucial civic area where people congregated, giving it a potent symbol of community and public life.
Recognizing the building's historical importance, George Ramishvili, founder of Silk Road Group, commissioned the architectural firm Neri&Hu to revitalize the structure.

Ballroom
The team's vision aims to blend historical preservation with modern design, focusing not just on physical restoration but also on maintaining the community’s collective memory.
This adaptive reuse emphasizes the building's original social role and aims to revitalize community interaction, restoring its function as a hub for communication and gathering.

The Telegraph Hotel, Café, Bell & Gray. Image courtesy of Silk Road Group
The studio's approach to the renovation transcends traditional restoration, showcasing what they term “critical reinterpretation.” Drawing inspiration from Svetlana Boym’s idea of "reflective nostalgia," the design retains the building's historical imperfections, allowing the past to be felt in its raw, concrete form.
Instead of hiding the marks of time, the redesign celebrates them, serving as a dialogue between the old structure and new architectural elements. This honors the memory of the building while giving it a renewed purpose.

Café Bell & Gray
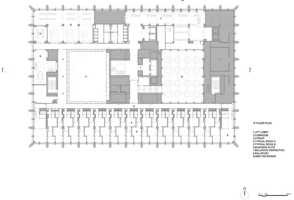
The ground floor is designed to enhance Tbilisi's public space, featuring a network of corridors reminiscent of the city’s narrow alleyways. This layout connects various public venues, including restaurants and a library, culminating in a central courtyard that functions as an urban square.

Café Bell & Gray
This transformation mirrors the communal aspects found in Georgian residential areas, reflecting Richard Sennett’s concept of "urban porosity" by blurring distinctions between private and public spaces, fostering social interactions and community engagement.
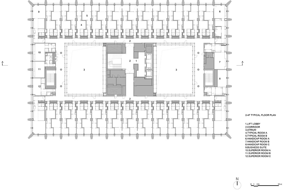
On the upper floors, guest rooms embody a journey motif through their linear design, echoing the experience of traveling on the historic Silk Road.

Courtyard
This metaphor aligns with Paul Bowles’ distinction between a tourist and a traveler—where the latter seeks deeper immersion and experience.
The design thus transforms the stay into a narrative exploration, inviting guests to engage with the building's history while emphasizing the connection to modern travel experiences.

Courtyard
The Telegraph Hotel exemplifies a dynamic preservation approach, breathing new life into the Brutalist architecture while honoring its past. It becomes a nexus for cultural tourism, allowing visitors to engage with Tbilisi’s history on multiple levels.

Grand Café
Rather than being merely a relic, the building symbolizes an active civic space, fostering a sense of belonging and participation in the ongoing story of the city, thus creating a remarkable synthesis of community, memory, and mobility.

Guest room

Guest room

Guest room

Restaurant Philosophico

Italian Restaurant Philosophico

Library

Lobby

Northen Thai, Laan Thai

Northen Thai, Laan Thai

Reception Lounge

Reception

The Grill

The Grill

Ground floor plan

First floor plan

2-4 Typical floor plan

Section
Neri&Hu also revitalized a compound of six buildings, each 40 years old, that were previously used as offices, warehouses, and dormitories for a chemical research institute. In addition, the firm embraced rawness and authenticity in redesigning the Bao restaurant located in Marseille, France.
Project facts
Project name: An Urban Artifact - The Telegraph Hotel
Location: Tbilisi, Georgia
Date of Completion: 2025
Client: Silk Road Group
Project Type: Architecture, Interior, Product Design
Program: Hotel
Site area: 4,395m2
Gross area: 30,608m2
Guest rooms: 239 rooms
Partners-in-charge: Lyndon Neri, Rossana Hu
Associate Director-in-charge: Federico Saralvo
Associate Director for Interior Design: Laurent Tek
Senior Associate for Product Design: Ath Supornchai
Design team: Dania Flores, Ambesh Suthar, Bernardo Tagliani, Lucia Esparza, Chen Chen, Jiayi Xia, Michael Yang, Yuxuan Wang, Yang Liu, Wanru Lee, Greg Wu
Architecture design: Neri&Hu Design and Research Office
Interior design: Neri&Hu Design and Research Office
Consultants:
Architect of Record: Archidea Architecture
Façade: Meinhardt Facade Technology
Lighting Concept: The Flaming Beacon Berlin Studio
Lighting Design: Meinhardt Light Studio
Kitchen Consultant: The Airedale Group
Mechanical Systems Consultant: Dinamik Proje
Electrical Systems Consultant: HBTBIM Engineering Services Co.
Structural Consultant: Progresi L.T.D.
General Contractor: D&T Group
Special Features: Adaptive reuse, Internal courtyard, Rooftop terrace, Regular structural grid
All images © Pedro Pegenaute unless otherwise stated.
All drawings © Neri&Hu.
> via Neri&Hu
