Submitted by WA Contents
Octava Estudio Cba completes Terrazas de la Villa Housing in Cordoba, Argentina
Argentina Architecture News - Mar 28, 2022 - 11:51 3361 views

Octava Estudio Cba has completed a family residence in Cordoba, Argentina.
Named Terrazas de la Villa Housing, the 274-square-metre house is a single family home, located in one of the closest place to the mountains in the City of Villa Allende, Cordoba. Thought for a 4 member’s family, a young couple with two little sons.

Respectful Implantation
The implantation responds to the topography of the place where it lays. The land slopes from West to East with interesting views of the City and an imposing presence of autochthonous vegetation.
The studied location of the windows and lucernes, together with the use of filters and moving layers generate that the natural light becomes protagonist at the different timetable of the day and seasons of the year.

Volumetric and Functional Simplicity
The starting idea takes the natural slope with its irregularities and develops in two volumes that make clear their function.
A ground floor for the parking car, machines room and a pedestrian entrance. A main volume in a direct connection situation with the exterior, where all the social activities take place. And a top floor for the private zones of the program of the house. All together proposes a domestic habitat in dialogue with the topographic accident.

Materiality
The careful choice of its materials looks forward not to recreate ostentations neither to appeal to the use of ornaments. As a result, its materiality was thought trying to accomplish a cohesive image to the owner’s criteria.
The house was built with a traditional system of masonry ceramic bricks and stone cladding, joist slab and polystyrene bricks, suspended ceiling of plaster rock plates, aluminum windows and double hermetic glass. The shutters and doors are made of plate and pipe.

























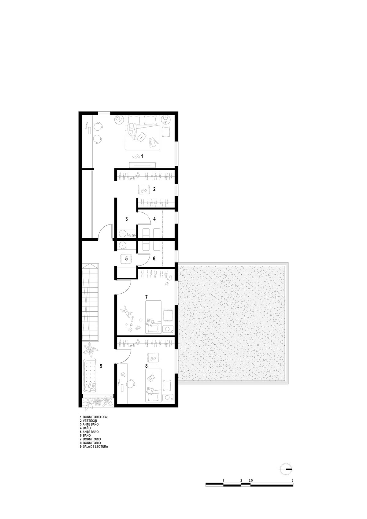
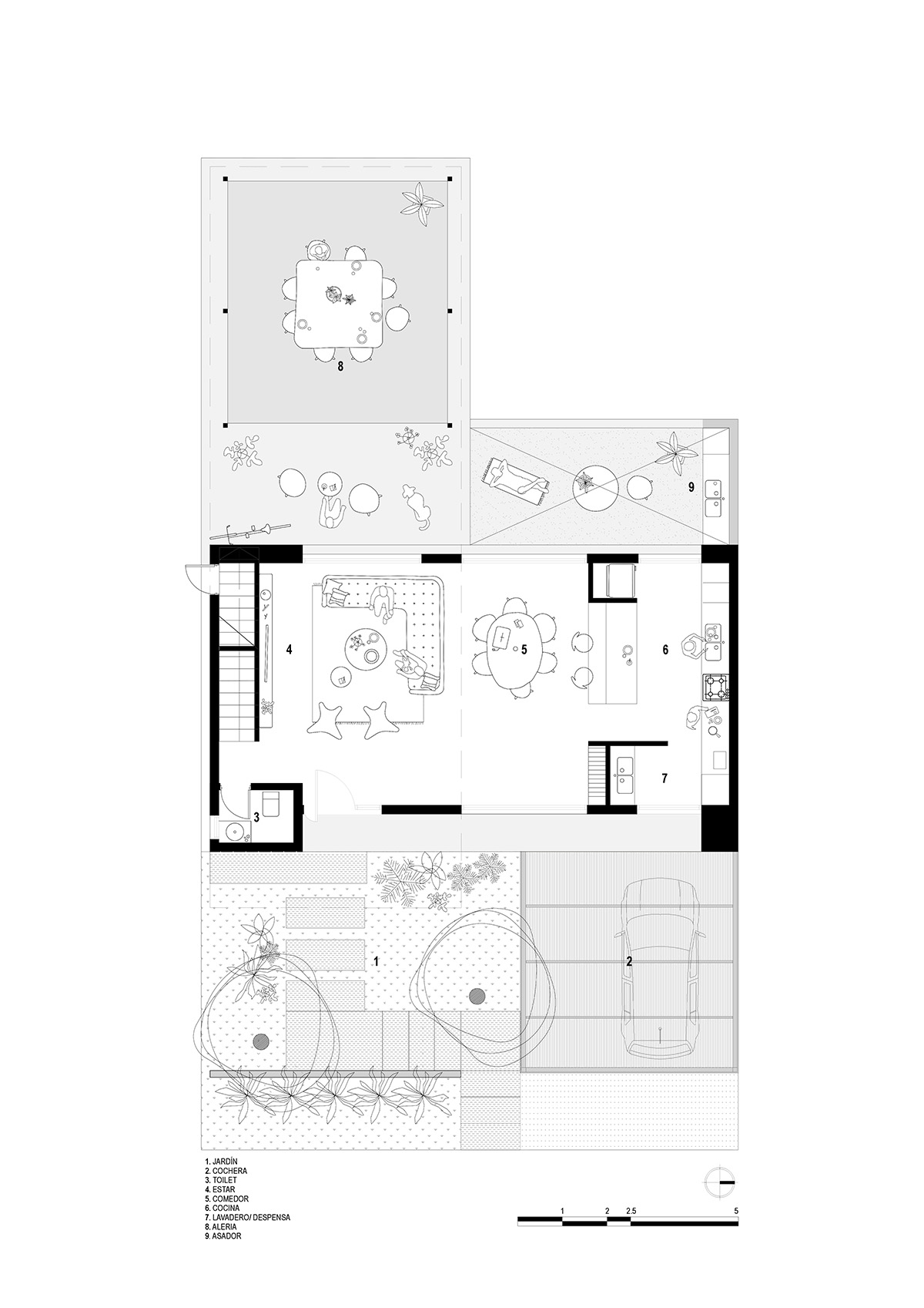
Floor plan

Floor plan

Section

Elevation

Axonometric drawing
Project facts
Project Name: Terrazas de la Villa Housing
Office of Architecture: Octava Estudio Cba
Construction completion year: 2022
Constructed area: 274m2
Location: Villa Allende, Cordoba, Argentina
All images © Arch. Viramonte Gonzalo
All drawings © Octava Estudio Cba
> via Octava Estudio Cba
