Submitted by WA Contents
AD ARCHITECTURE designs store with light yellow curved walls that create comfort and softness
China Architecture News - Mar 28, 2022 - 09:57 2253 views

AD ARCHITECTURE has designed a store featuring light yellow-toned curved walls and backdrop that create comfort and softness and stimulate people's snooping desire. This is a way of strengthening commercial space's attraction, according to the studio.
Named TRONGYEE (The Mixc, Shantou), the 280-square-metre space is located at the entrance of a shopping mall in a traditional commercial street in Shantou, Guangdong, China.
The store was designed for TRONGYEE_FASHIONS, a conventional clothing brand rooted in downtown Shantou for more than two decades. The brand commissioned the studio to design a store for its sub-brand TRONGYEE.
Since completion, it has become a leading fashion store in the local market, and has helped the brand to gain a great leap in both sales and influence.

This time, based on the client's new demands for upgrading TRONGYEE, AD ARCHITECTURE was entrusted again to conceive a new retail store. Xie Peihe, the chief designer, gave a more "adventurous" solution for the project.
The designer aimed to create "surprises and new strengths" throughout the space by installing curved walls which increase curiosity.
AD ARCHITECTURE is competing in the WA Awards 40th Cycle with 3 projects, including Taste Of Dadong · Rhapsody, Shanghai, Chasing Light and Da Dong Gastro Esthetics in the Interior Design category to be the winner of the 40th Cycle. AD ARCHITECTURE is Professional Member of World Architecture Community.
WA Honorary Members and previous cycles' WA Awards Winners and WA Community Members, who have at least 1 project that was uploaded 1 month ago in their WAC pages, may go ahead and click here to Vote for their preferred projects by Sunday, 10 April (23:59 GMT +0).

Confident adventure
It is unquestionably that the success of TRONGYEE's first store has brought new inspiration to Shantou's retail sector, and has helped popularize the concept of "Designer clothing boutique store" to local consumers. This time, AD ARCHITECTURE hoped to inject new artistic elements into the brand through conceiving the new store.
When Ms. Lu, the director of TRONGYEE, discussed with chief designer Xie Peihe for the first time about the design of the new store, positioned the store as an attempt of the brand to enter shopping mall from traditional commercial street, and hoped it to be controlled at 80 square meters with a low investment.

Present the space with art installation expressions
After determining the design direction, AD ARCHITECTURE decided to construct this 280 square-meter commercial space by applying the expressions of art installations and meanwhile incorporating modern aesthetics.
The storefront is an important part of commercial space design as it directly presents the store's image. Commercial space design usually adopts display windows to convey brand's identity and style.

However, AD ARCHITECTURE broke the conventions, and intended to attract passers-by's sight line into the store through the unique door form, which produces an open yet mysterious, intriguing visual effect. The uniquely-designed storefront forms a contrast with other neighboring stores. The design team expected to convey the artistry and aesthetic values of the brand to consumers by combining the space with products.
"The curved surfaces in the space are like silky and mellow cloth, which are unknown explorations and possibilities probing into the logic of rules in free changes, aiming to capture new strengths and surprises," said Xie Peihe, Chief Designer.

Restraining and set-back forms
The spatial organization and behaviors stimulated by it have always been an important medium of brand strategy and commercial deployment. The design team applied set-back forms and curves to organize the exploration area, which enriches the expressions of the space and creates visual illusions.
The integration of space and products motivates people's curiosity to enter and explore the store, revealing a vivid and diversified space. Stimulating people's snooping desire is a way of strengthening commercial space's attraction.

Garden touring experience
The overall space is dominated by a light yellow tone to alleviate the three-dimensional feeling brought by colors, so as to turn the artistic space into a low-profile backdrop to highlight products.
The free spatial layout provides customers with a relaxing and pleasant feeling and a shopping experience like strolling in a garden, which is the focus and purpose of the spatial design. The combination of gorgeous and plain shades generates a dramatic tension, and results in a serene yet fervent spatial atmosphere that is isolated from the noisy surroundings.

Rhythm and system
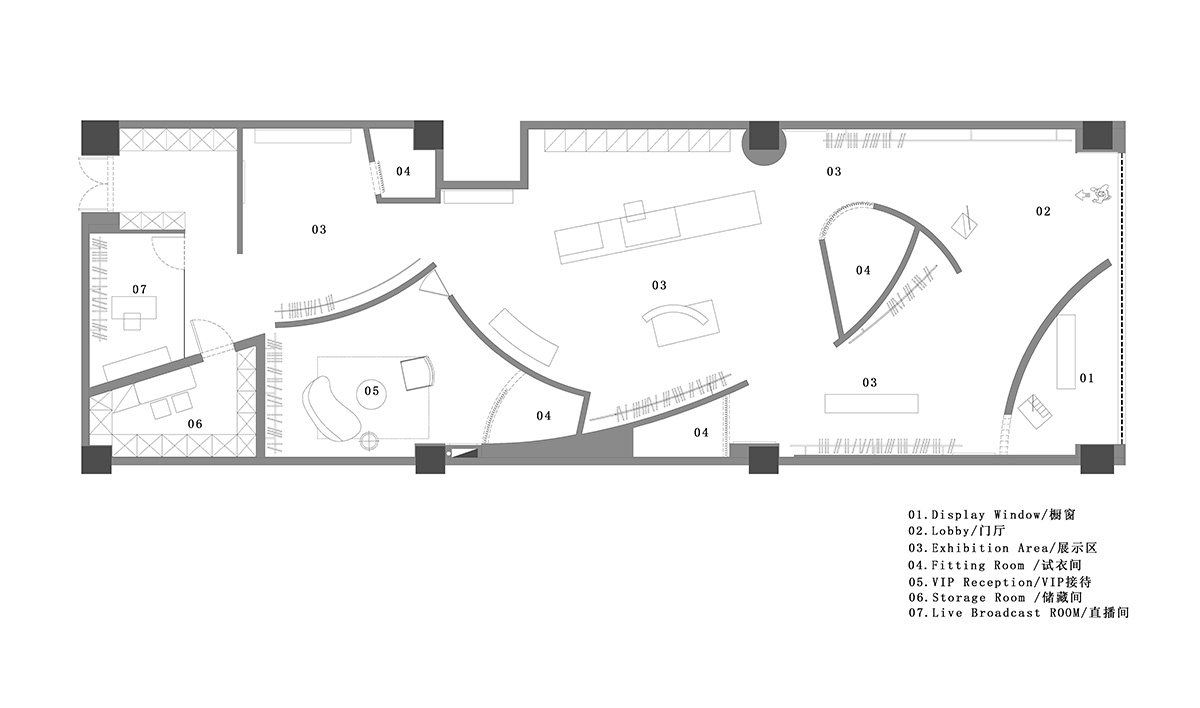
The shopping experience is divided into four stages, where consumers explore curiously when entering the store, linger at the central area, enjoy a private and premium shopping experience in the VIP area, and finally proceed to the inner live streaming area.
Each stage is arranged based on the thinking of the commercial sales system. The space can be shifted as a show venue as needed to provide a site for new product launches every year and promote sales most efficiently.

Blurred boundaries
The central area accommodates a mix of clothing, jewelry and other products, thus the design focuses on stimulating customers' desire to purchase commodities. The area is mainly used for product display, but other functions like cashier desk, product introduction, reception and fashion show are included to blur the functional boundary.
The arrangement of the fitting rooms is an innovative exploration of functional layout of fashion stores. The originally centralized fitting rooms are redistributed in the whole space, which, in return, effectively improves the convenience and efficiency of shopping, offers a more joyful shopping experience for customers, and shortens the service distance.

Soft spatial experience
For material and color selection, the design adopts feminine elements featuring comfort and softness. Large areas of artistic paint combined with the carpet reveals tactile, quality textures.

Exclusive and noble experience
Next to the central area is the VIP reception room with a reservation system. Open to VIP customers, this area displays separately-selected garments and has an independent fitting room. Coffee, fruit and one-on-one shopping service are offered exclusively for VIP customers to enjoy a private and noble shopping experience.

Combination of online and offline retail
Incorporating a live streaming area has become one of the new standards for retail stores. In light of the noise caused by live streaming activities and the disorder by preparation outside the camera, the design team separated the live streaming area from the sales area by locating it next to the storage room at the innermost end of the space. It is convenient for live streaming display without interfering with goods preparation and delivery, showing the best brand image and identity both online and offline.

After the project is completed, TRONGYEE, as a new brand entering The Mixc, Shantou, has been the sales champion of the shopping mall since the new store's opening.
The project is an exploration of sustainable value for future urban commercial spaces. AD ARCHITECTURE conceived the design solution by taking commercial value and practice as the basis, and eventually, through cooperation with the client, created a commercial space that is derived from the core of the brand TRONGYEE.













Floor plan
Project facts
Project information
Project name: TRONGYEE (The Mixc, Shantou)
Design firm: AD ARCHITECTURE
Chief designer: Xie Peihe
Design team: AD ARCHITECTURE
Location: Shantou, Guangdong
Area: 280 square meters
Main materials: textured paint, carpet, membrane, metal
Start time: July 2021
Completion time: October 2021
Model: Mai Mai
All images © Ouyang Yun.
All drawings © AD ARCHITECTURE.
> via AD ARCHITECTURE
