Submitted by WA Contents
Sharp lines and introverted façade form Musée cantonal des Beaux-Arts de Lausanne by Barozzi Veiga
Switzerland Architecture News - Aug 21, 2020 - 14:12 12803 views

Barcelona-based architecture studio Barozzi Veiga has completed the Musée cantonal des Beaux-Arts Lausanne in Lausanne, Switzerland by creating a textured and "introverted façade" with vertical grey brick walls.
Completed in 2019, the studio won an international competition to design the art museum and the masterplan of the new Art District in Lausanne, Switzerland, the name of the new art district is called Platform 10 - the project was realized as part of the masterplan.
The building stands a monolithic but a highly powerful semi-transparent structure that reflects itself through its sharp facade configuration.

"As an urban strategy, the masterplan implements a new structuring void, a public square around which the new museums gravitate," said Barozzi Veiga.
"The void stretches along the site and, being connected to the existing train station’s square, it constitutes a new continuous main public space."
"The new architectures become the frame of the urban life of the city and the containers of the new public art centre of Lausanne," the studio added.

The Musée cantonal des Beaux-Arts Lausanne takes place on the southern edge as a longitudinal monolithic volume, parallel to the rails, defining the urban space while protecting it from the trains’ nuisances.
Embracing this condition, the project carries and expresses the memory of the site, echoing the former industrial condition with pragmatic forms, rigorous geometry and hard, sharp lines.

According to the architects, "the memory of the place is achieved through the preservation of specific fragments." The design preserves part of the original hall and transforms it as a central piece of the project.
The old arched window becomes the main protagonist of the building façade from the railway and, once within the foyer, it reveals its full role as a substantial structuring component of the new building’s sequence of spaces.

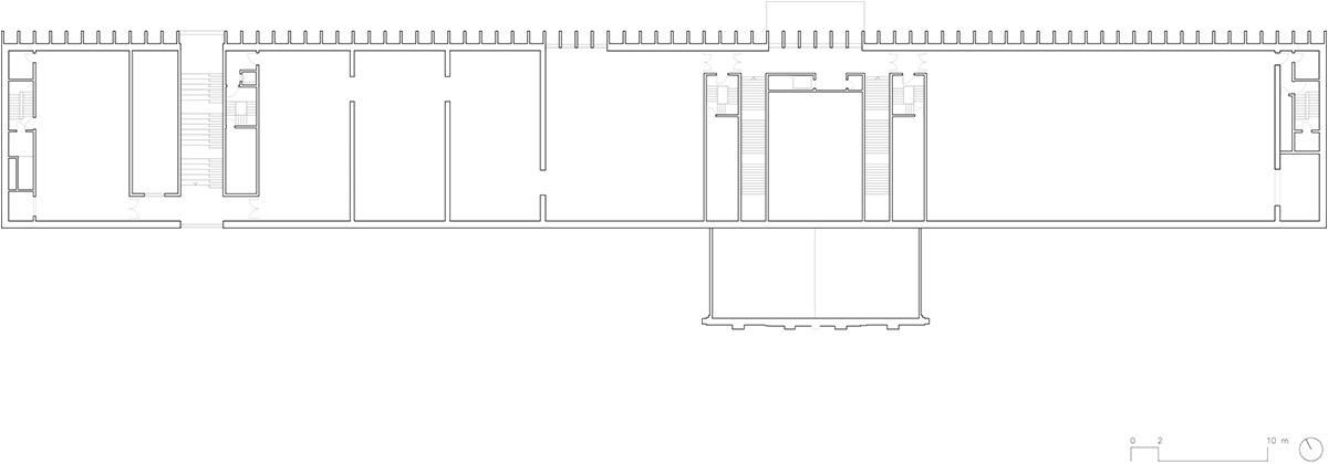
The museum is organized on three floors connected by the continuous void of the foyer that structures the circulation and the program.

While the ground floor is developed as the extension of the public square and shelters the main public programs such as the café, the bookshop, the auditorium, the upper levels, on both sides of the foyer, contains the exhibition spaces.

The permanent gallery to the east is separated from the temporary gallery to the west.
They can be visited with a single continuous tour or in parallel tours, thanks to independent vertical circulations which allow future comprehensive exhibitions as well as smaller capsule collections.

The strongest component of the structure is its façade. The façade on that level is very porous in order to allow for these internal functions to be in continuity with the exterior public space of the square.

The upper floor is naturally lit up through north oriented modular sheds, designed to filter and adjust the solar light.
These sheds have an internal system of blinds to allow a meticulous control of the amount of light entering the rooms as well as the possibility of a dimmed atmosphere to offer optimal conditions for the art pieces.

"The overall building façade is relatively hermetic. In order to protect the collections, the museum has a closed, introverted façade to the railway side, to the south," continued the architects.
"A more open, permeable and animated façade characterizes the north elevation, towards the public space."

As the architects highlight, the brick façades evoke the industrial history of the site and offer a texture, a vibrant pattern to the monolith.
On the square, the vertical blinds’ rhythm breaks the massiveness of the monolith and reveal the openings. At night, these blinds serve as a canvas to diffuse the interior light coming from the museum.












Masterplan

Urban plan

Ground floor plan

First floor plan

Second floor plan

Section

Section

East elevation

North elevation
On the 5th of April 2019 the keys of the MCBA Lausanne were officially delivered to the Canton of Vaud. The museum opened its first exhibition on the 5th of October, 2019.
Barozzi Veiga recently completed a cultural center that features tiered trapezoidal openings in Zürich, Switzerland. Estudio Barozzi Veiga, the studio is known for its famous Philharmonic Hall of Szczecin, Szczecin, Poland.
Barozzi Veiga was founded in Barcelona by Fabrizio Barozzi and Alberto Veiga in 2004. The studio produces different types of projects, including cultural, educational and residential buildings as well as civic projects.
Project facts
Project name: Musée cantonal des Beaux-Arts Lausanne
Architects: Barozzi Veiga
Location: Place de la Gare 16, 1003 Lausanne, Switzerland
Client: Canton de Vaud, Direction générale des immeubles et du patrimoine, Architecture et Ingénierie cantonale (DGIP)
Project manager: Pragma Partenaires SA
Project team execution phase: Pieter Janssens, Claire Afarian, Alicia Borchardt, Paola Calcavecchia, Marta Grządziel, Isabel Labrador, Miguel Pereira Vinagre, Cristina Porta, Laura Rodriguez, Arnau Sastre, Maria Ubach, Cecilia Vielba, Nelly Vitiello, Alessandro Lussignoli
Project team competition phase: Roi Carrera, Shin Hye Kwang, Eleonora Maccari, Verena Recla, Agnieszka Samsel, Agnieszka Suchocka
Local architect: Fruehauf Henry & Viladoms
Structural engineers: Ingeni SA
Services engineers: Chammartin&Spicher SA, Scherler SA, BA Consulting SA
Façade consultant: X-made SLP
Lighting consultant: Matí AG
Floor area: 6,895m2
Built-up Area: 12,449 m2
Start of construction: 2016
Start of completion: 2019
All images © Simon Menges
All drawings © Barozzi Veiga
> via Barozzi Veiga
