Submitted by WA Contents
Tándem Restaurant creates a sensory journey of gastronomy and heritage in the heart of Murcia
Spain Architecture News - Oct 24, 2025 - 04:33 1135 views

Laura Ortín Arquitectura has created a restaurant that brings a sensory journey of gastronomy and heritage in the heart of Murcia, Spain.
Named Tándem Restaurant, the 70-square-metre restaurant was created for a brand, Tándem, which is one of the most promising restaurants in the Region of Murcia.

The brand rapidly rose to prominence as a culinary standard, known for its motto: "craft, product, and honesty." They made the decision to revamp their area in order to better embody this idea.
Their concept of home struck a chord with us right away: that visitors would walk into a room that feels intimate, cozy, and uncomplicated—in other words, a true representation of who they are.

Interpreting Without Imitating
The museum-preserved archaeological remnants of a portion of the Medina of Murcia's wall from the 12th century are a rare asset that Tándem protects.
This finding became the project's guiding principle, guaranteeing that the new area would interact with this historic location.
Without using direct replication, the interior blends with the ambiance of the ruins, avoiding artifice, much like a temporal continuity. The studio selected modern materials that authentically recreate the past through their textures, hues, and lighting. The historic defenses' worn lime walls are reminiscent of the soft brown plaster.

The soft, muted lighting resembles museum displays, transporting one to a night-time medina illuminated by lanterns and oil lamps.
When fashioned into boards, the dark wood evokes the rammed-earth construction of walls and towers, adding an exotic touch. The intricate patterns and twisting pathways of ancient Arab medinas are reminiscent of the organic, curved forms.

AI: Architectural Intelligence
The objective was to visually enlarge the elongated, narrow area while still fulfilling all logistical needs. Head, heart, and design is the response.
A Japanese-style counter that flows in and out of the open kitchen greets customers and promotes conversation between the chef and patrons. Here, a three-tiered bar made of steel, microcement, and wood embodies the idea of "seeing without being seen."

Two ideas serve as the basis for the modular tables in the dining area: the Tangram puzzle, whose pieces come together to form new shapes, and the Montessori philosophy, which emphasizes adaptability, connectedness, and teamwork.
This method allows the eating area to be infinitely rearranged based on bookings, ranging from single tables to settings for as many as 20 people.

More fluid spatial organization is made possible by the mineral-painted plaster that visibly softens walls and pillars and lessens resonance.
Often unjustly disregarded, sapele wood adds a deep, dark tone with a touch of crimson, providing warmth and elegance. More light for larger gatherings and softer light for private meals are two examples of how the concealed, movable lighting changes the mood of the scene.

A Place to Stay
The new Tándem is a surprising place where interior design, architecture, and cuisine come together to enhance the dining experience.
This project transforms each visit into a full sensory experience by fusing emotional design, respect for antiquity, and modern practicality.










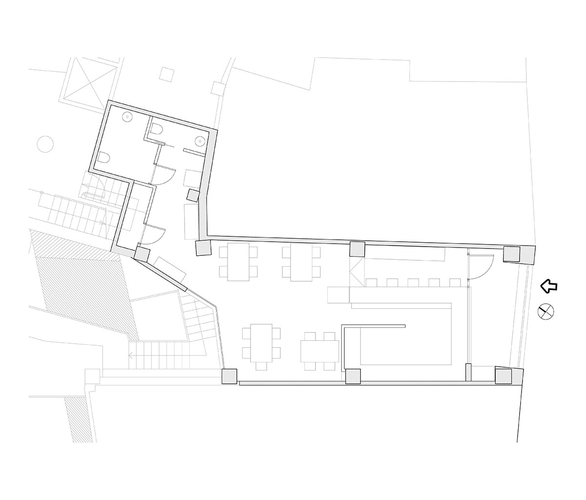
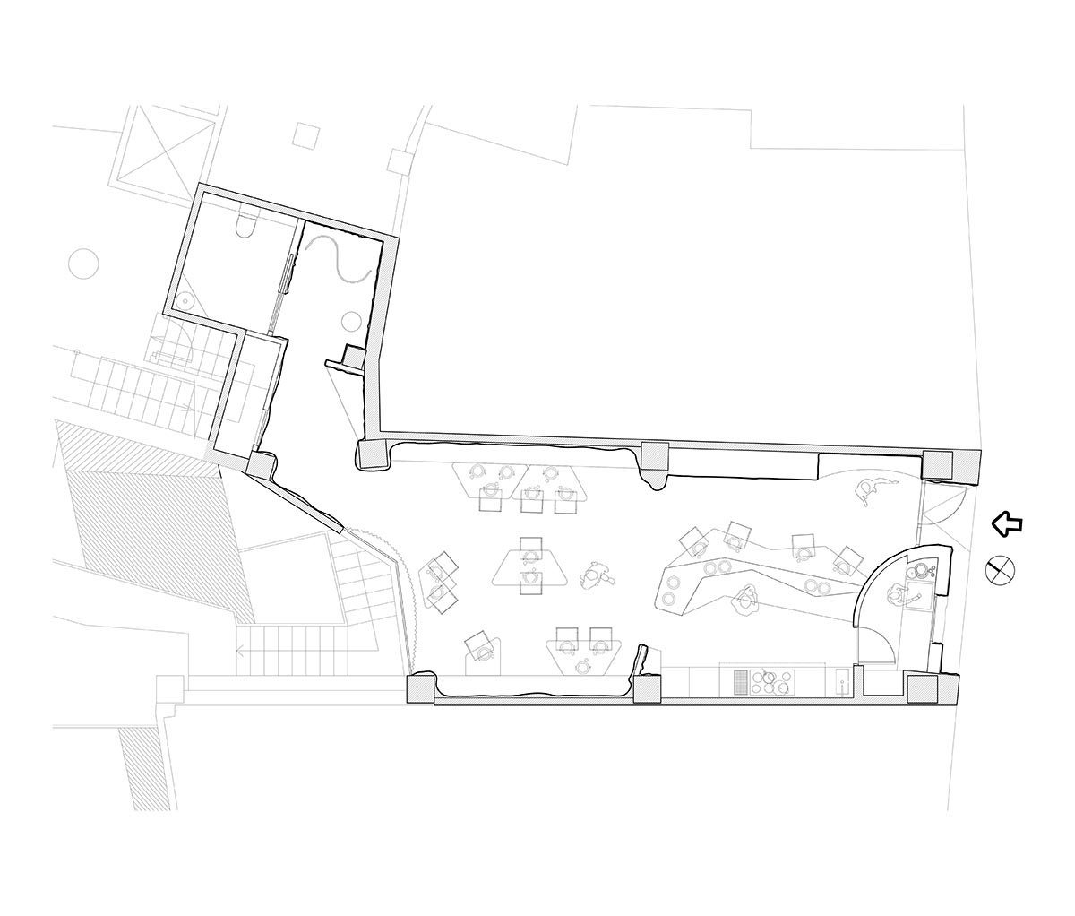
Plan - before

Plan - before ruin

Floor plan - after ruin

Floor plan - after tables-0

Floor plan - after tables-1

Floor plan - after tables-2

Floor plan - after tables-3

Floor plan - after tables-4
Laura Ortín also designed its own architecture office located in the heart of Murcia, as a sanctuary where technical expertise meets emotional depth.
Project facts
Project name: Tándem Restaurant
Architects: Laura Ortín Arquitectura
Location: Murcia, Spain
Size: 70m2
Completion date: 2025
All images © David Frutos.
All drawings © Laura Ortín Arquitectura.
> via Laura Ortín Arquitectura
