Submitted by WA Contents
Hiroshi Nakamura & NAP creates barrel-vaulted roofs to offer ample interior space in Japan
Japan Architecture News - May 05, 2020 - 16:15 11157 views

Tokyo-based architecture studio Hiroshi Nakamura & NAP has created barrel-vaulted roofs to offer ample interior space and frame a mesmerizing view towards the sea in Minato City, Japan.

Named Half Cave House, the 2,389-square-metre house is distinguished with its barrel-vaulted roofs that were designed for a "tolerance of space" that affirms and accepts others.

The architects wanted to expand the roof and its ambivalent disposition to maintain an ample space from a human body yet generously embraces us.

The expanse of the roof is benevolent, silently inviting people in and watching over them. At the same time, it is physically removed and a bit reticent.
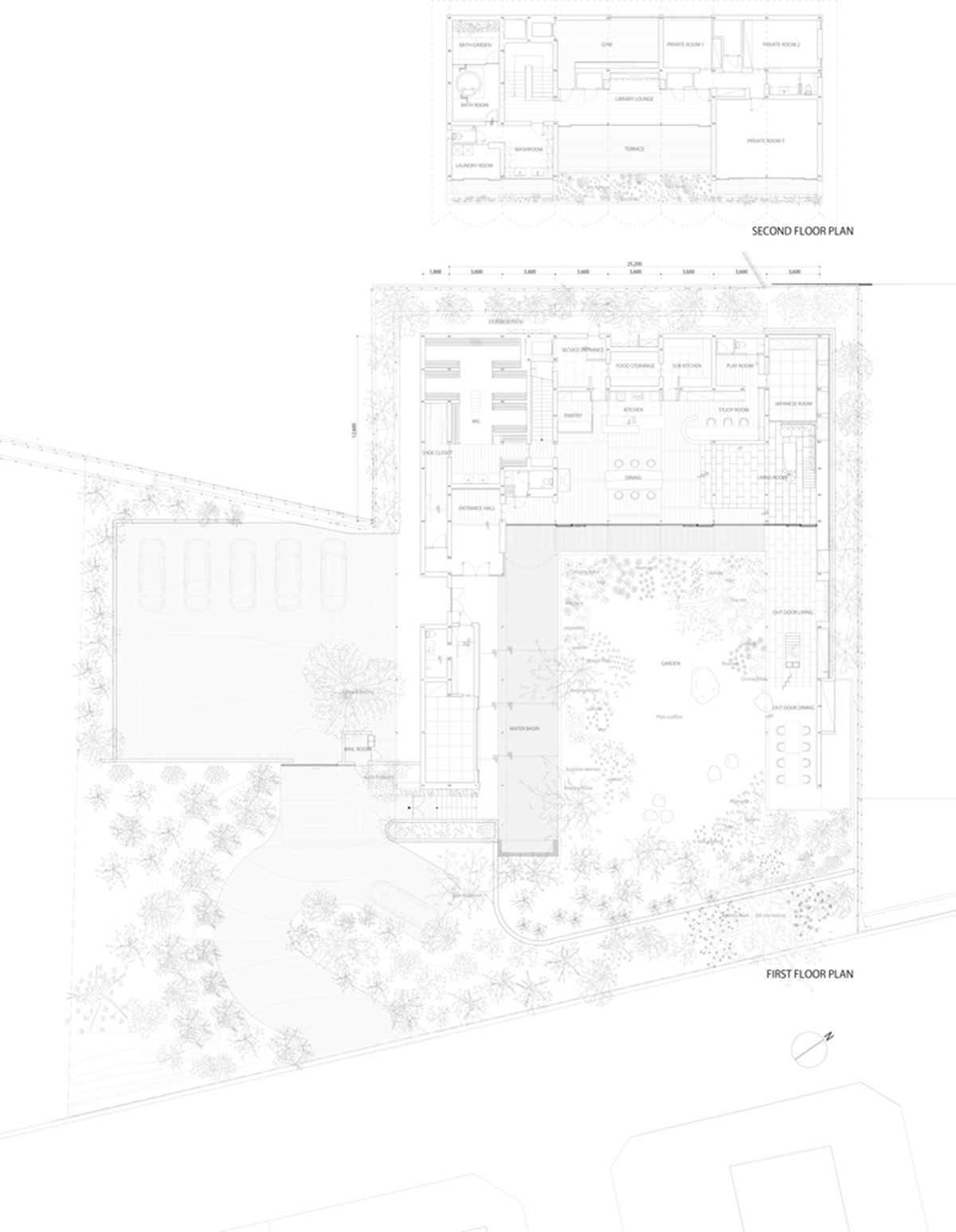
The project site is located in a residential area surrounded by abundant greenery along the mountain skirt, and it slopes southward and has a beautiful view of the sea.

The project was designed for a client who often invites many guests to his/her own house. The client wished to make living-dining-kitchen and study spaces as one large room, while each faces a south-facing garden.

"We decided to place the main wing on the elevated ground on the north side to create a large area for the garden, and envelop it with east and west wings, resulting in a U-shaped layout," said Hiroshi Nakamura & NAP.
"The west wing comprises the approach and detached Japanese room while the east wing is the outdoor living-dining area that supports activities in the courtyard."

To prevent the spaces from feeling too vast and detached, the architects intrigued a barrel vault roof, under which people could feel as if they are being watched over by just residing in the space.
As the architects highlight, vaults are generally used to create a higher rise and wider span.

"For this project, however, we intended to harness the unique sound and lighting environment the vault creates, and to loosely segment the space by floating it above," the architects added.

The span was set to be 3.64m, the minimum unit that could be sensed as a room even after placing furniture for the rooms including the dining, living, and kitchen. The studio set the rise of the catenary curve at 0.91m for a proper coziness, while the ceiling was kept as low as the client allowed.

The barrel vaults also have the effect of making one conscious of the courtyard. Because of their form, the architects were able to cantilever 120mm-thick slabs 3.1m into the courtyard.

This enabled the studio to not only to create a large semi-outdoor space, but also to individually frame the beautiful view beyond the barrel vaults like a telescope, linking the close-range view of the terrace, middle range view of the courtyard, and distant view of the city and sea.

"The sound of family gathering reverberated and light reflected by the small vaulted wooden ceiling gently surround the space," continued the studio. "This is similar to the intimacy felt in a cave."

Under a half-cave space floating above, movements and voices of dwellers naturally become smaller. The space becomes an extension of your body, and you feel as if you are always in the center of the space.

Amidst today’s uncertain society, the studio believes this relates to the "tolerance of space" that ties people and provides a sense of feeling welcomed. An expansive large space and contrasting intimate space coexist in this house.

















Plan

Section
Project facts
Project name: Half Cave House
Architects: Hiroshi Nakamura & NAP
Location: Minato City, Japan.
Size: 2,389m2
Date: 2018
All images © Nacasa & Partners Inc.
> via Hiroshi Nakamura & NAP
