Submitted by WA Contents
Mecanoo envisions Palace of Justice in Cordoba with cutouts and porous walls
Spain Architecture News - Jan 26, 2018 - 01:15 22371 views

Global Dutch firm Mecanoo has completed the new Palace of Justice in Córdoba, Spain, which sits in the city context through its mega cut-out forms and porous walls to alleviate the weight of the structure.
The 48,000-square-metre building is located in Arroyo del Moro, which is characteristically dominated by anonymous housing blocks, products of the rapid urban development of 21st century Spanish cities. The building includes a courthouse with 26 courtrooms, a wedding room, a Forensic Institute, offices, a cafe, an archive, a prison and a parking garage.

"The blocks that characterize the urban fabric of the zone were not capable of generating public space or offering something new to the city, but collectively they form a compact and coherent urban identity," said Mecanoo.
"The addition of a public institution to the area creates the opportunity to upgrade the public realm and add a civic quality to this relatively new neighborhood."

Providing a very generous entrance to the public from the north, the building is connected with the existing Huerta del Sordillo gardens, despite its location from south-east from the site.

Mecanoo follows a different massing strategy on the building, which actually creates a very generous "urban fragmentation". This design process is derived from a similar strategy referencing to the spontaneous growth process of medieval cities resulting in such a volume.
Based on this, the building is carefully sculpted to adapt to the surrounding context. It forms a puzzle-like structure which hints its process of formation and emulates the experience of the dense historical center of Cordoba.

"The vertical fractures that are introduced in the building mass create patios, relating the local courtyard typologies. These fractures provide natural light and ventilation in the central zones of the large building," said the studio.
"One can say that the sustainability of the building is not achieved by expensive technological mechanisms but by an intelligent interpretation of the vernacular architecture."

The building is elevated two meters from the street level and is accessed by the sloping entrance square. This elevation gives a symbolic power to the building while solving problems of privacy and security created by the insertion of semi-open patios.

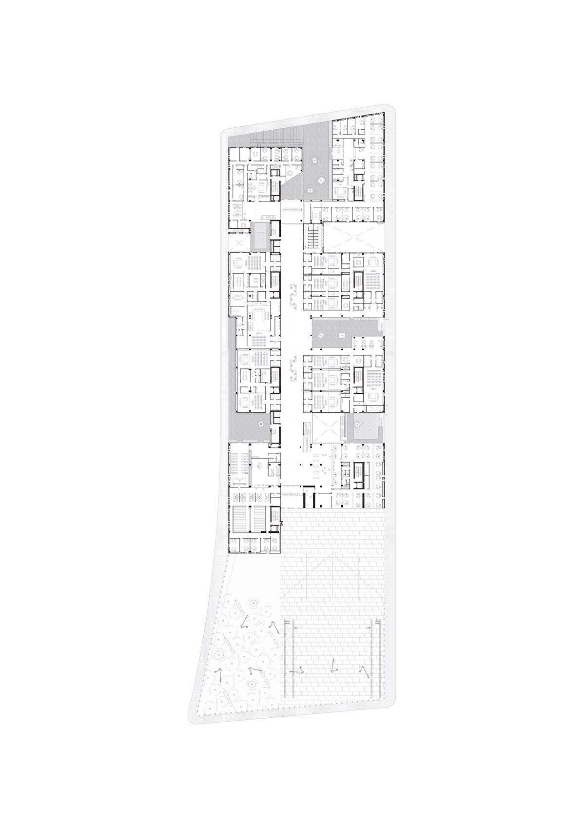
Since the Palace is divided into several independent departments, the building requires several entrances that are positioned based on both internal and external hierarchies. You can access the building either from the main entrance square or smaller open patios carefully placed along the other 3 sides of the building.

From the main entrance, the interior organization is easily recognizable. A central spine creates a circulation axis which connects to the various the programs of the building. This space spans through several floors across the length of the building and articulates each department.
It also links the public circulation with the exterior patios.The spine echoes the architectural language of the exterior massing, with multi-level day-lit voids creating sculptural atriums throughout the building.

The internal functions become more private higher up the building. At the level of the square, the courthouse features an open ground floor that contains the most public sections such as courtrooms, marriage registry and restaurant. High security offices are situated off the upper courtyards and the archives and jail cells are found below ground level.







Situation plan

Ground floor plan

1st floor plan

2nd floor plan

3rd floor plan

4th floor plan

Roof floor plan

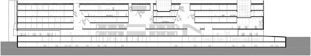
Longitudinal section - Central corridor - Espina Central

Longitudinal section - patios

North, South and East Elevations

West elevation

Model view
Mecanoo won the international competition back in 2006 but the crisis prevented construction work and held it back till 2014. The building was officially opened to the public in November last year.
Project facts
Architects: Mecanoo Architecten + AYESA
Size: 48,000 m2
Project Design: 2006
Realisation: 2014 - 2017
Address: Calle Isla Mallorca, Calle Isla Formentera, Calle Isla Gomera, Calle Cantabrico, Córdoba, Spain.
Promotor Owner / Developer: Consejería de Justicia e Interior (Junta de Andalucía).
Design Team: Mecanoo + Ayesa
Programme: Courthouse with 26 courtrooms, a wedding room, a Forensic Institute, offices, a cafe, an archive, a prison and a parking garage.
Consultants
AYESA (eficiencia energética)
AYESA (ingeniería de estructuras structural engineer)
AYESA (ingeniería mecánica mechanical engineering)
AYESA (ingeniería eléctrica electrical engineer)
AYESA (iluminación lighting)
AYESA (seguridad frente a incendios fire safety)
AYESA (cubierta y fachada roof and facade)
UTE ISOLUX CORSÁN-COPCISA (contratista contractor)
All images © Fernando Alda
> via Mecanoo
