Submitted by WA Contents
LUKSTUDIO designed a small White Gift Box ’’Aimé Patisserie’’ in China
China Architecture News - Nov 23, 2015 - 16:18 7179 views

all images © Peter Dixie for LOTAN Architectural Photography
Aimé Pâtisserie designed by LukStudio, is a new brand entering the Shanghai market, has positioned its flagship store in an elevated retail strip on Huai Hai Road. The chosen site is flanked by familiar coffee and donut franchises, and fronted by a city bus-stop. Across the street is the recently opened shopping mall flaunting an array of luxury brands. The design challenge of the store is to stand out from its immediate chaos and appeal to the clientele from the close-by gentrified neighborhood. The studio's strategy is to dress this newcomer up as a white present.

The unwrapping experience of the Aimé gift box is translated into the physical store. The idea of layering appears when the studio lifts one semicircular translucent paper after another to discover the colourfulmacarons within. This opening sequence gives form to the overhead storefront design, while the window display made of four translucent layers attracts passers-by to explore inside the store.

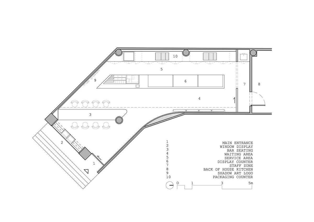
Beyond the 4.5m retail storefront lies a turning L-shape layout divided into 2 zones: the foyer with bar seating and the display counter at the back. With a lower ceiling, the former compresses views of the latter, yet frames the illuminated feature wall to capture the curious minds. Every step forward heightens the discovery of the playful interior where the 9m long counter showcasing macarons and other goodies in perfect order.

The illuminated feature wall composed of stacked gift boxes at various states of opening draws one’s eyes up to the ceiling were the whimsical pattern continues. The versatile modular system allows for necessary wall display shelves, and ceiling openings for spotlights, speakers, and security devices.

In light of the neutral palette evoking a gallery ambiance, the branding wall is created with an artistic approach where aluminum bands are twirled and bent to cast calligraphic shadow. A visit to this white gift box should be a delight to the eyes as much as to the sweet tooth.



outer view of Aimé Patisserie

AIME feature wall diagram

AIME general floor plan
Project Facts
Location: Huangpu District, Shanghai, China
Architect: LUKSTUDIO
Net area: 63 sqm
Scope: Interior design, custom furniture & lighting design
Project team: Christina Luk, Mavis Li, Wesley Shu, Scott Baker. Special thanks to Jaycee Chui of More Design Office
Design company: Lukstudio (lukstudiodesign.com)
Lighting consultant: German To for Lucent Lit Co. Ltd.
General contractor: Dongde Decor
> via LUKSTUDIO
