Submitted by WA Contents
DDconcept Architecture uses coconut leaves and bamboo to create undulating restaurant in Vietnam
Vietnam Architecture News - Nov 25, 2021 - 11:51 8741 views

DDconcept Architecture has built a restaurant by using coconut leaves and bamboo to create this undulating restaurant in Ben Tre province, Vietnam.
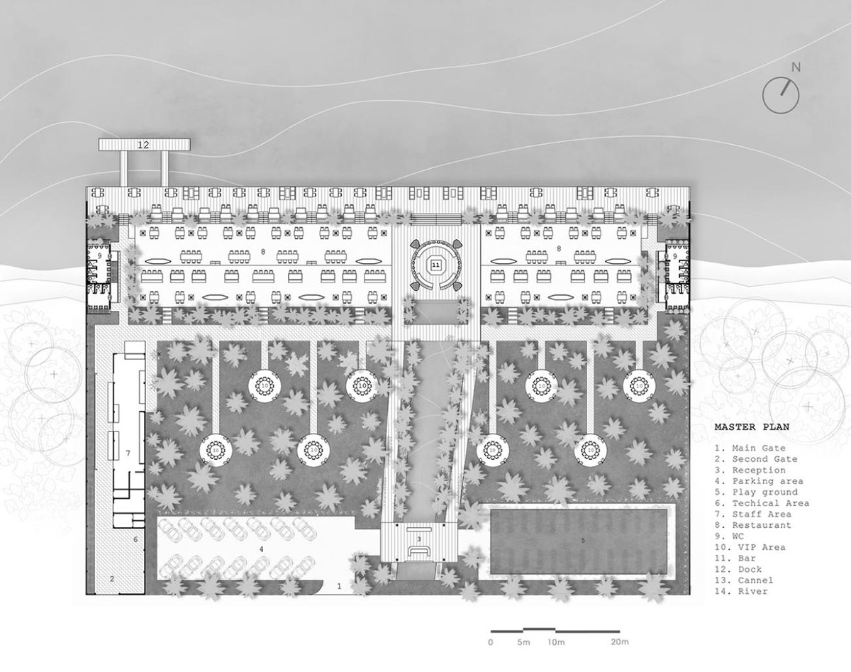
Named Coconut Homeland Restaurant, the 1,550-square-metre restaurant is located at a riverside area along Mekong River in An Khanh commune, Chau Thanh district.
Opening up itself with its undulating bamboo roof, the building was entirely completed by local workers and by using local construction techniques.
Coconut Homeland Restaurant is competing to be the winner of WA Awards 39th Cycle. If you are a WAC member, who has a project that was uploaded to your WAC Page 1 month ago, you can Rate the project on this page until 10 December 2021.

The restaurant is designed as an open plan in which its wavy bamboo ceiling is directly perceived from the interior. As the studio explains, the investor is a person who loves trees, and the client wanted to have a building ensured both business requirements and keeping as many trees as possible.
The architects designed an open restaurant to ensure natural ventilation and lighting requirements, taking advantage of wind from the river for cooling in the dry season.

The aim of the client, who is a businessman working in Ho Chi Minh City, was to build this restaurant in order to create more jobs for local people as a grateful present to his homeland.
For this reason, the architects intended to bring local characteristics to the building in an overall form as well as to create a breathing structure. This was the biggest challenge for the design team.

In this sense, the architects created an open space restaurant located between the riverbank and the garden. To benefit from the view of the river, the restaurant is located along the riverbank, ensuring natural ventilation and daylight.
The other side of the restaurant is opened up to the garden, the studio maintained a lot of existing trees to create a large garden.
"Having open space, the restaurant becomes a transitional space between the riverbank and the garden, diners can feel the comfort when sitting between the riverbank and the garden," said DDconcept Architecture.

One of the key features of the project is its roof structure. The roof marks the building from afar.
To achieve this, the studio created a rhythmic surface of the roof that makes the building be recognized easily, but the building can still be harmonious with river and coconut forest surrounding the building.

The architects formed appropriate scale and local architectural language by using the reasonable proportions and the typical local coconut leaf roofing material.

The roof structure consists of main bearing steel frame system in the middle part, the steel purlins and roofed coconut leaves are placed above, the hanging bar system and bamboo trunk ceiling are placed below.
"The ceiling is designed rhythmically, simulating the ripples to make an impression for dinners," added the studio.

Roof and ceiling materials are made of typical local materials: coconut leaves and bamboo. According to the studio, these are natural, indigenous, environmentally friendly materials, which are widely used by local people.

Other materials used for the building include steel (roof frame system), stone (steel frame support pillar), concrete (steel frame support pillar, covered with coconut leaf surface). The blend of material creates the local character in shape and breath of the building.

The building is the solution to the requirement of taking advantage of natural conditions, using indigenous materials and local workers in the current conditions of Vietnam.




Floor plan

Section

Roof structure

Exploded roof structure
Project facts
Project name: Coconut Homeland Restaurant
Architects: DDconcept Architecture
Lead Architect: To Anh Dung
Design Team: Ho Minh Trong, Tran Dang Huy Toan, Nguyen Viet Tien
Location: An Khanh Commune, Chau Thanh District, Ben Tre Province, Vietnam
Site area: 5,959.60 m²
Total floor area: 1,553.70 m2
Material: Bamboo, coconut leaves, steel, concrete, stone.
All images © Hiroyuki Oki
> via DDconcept Architecture
