Submitted by WA Contents
Organic tree-like columns are combined with linear canopy for Metropolitan Station in Lublin
Poland Architecture News - Feb 21, 2024 - 12:32 9542 views

Polish architecture firm Tremend Architecture Studio has designed an integrated transportation centre that features a linear canopy supported by organic tree-like columns in the capital of the Lublin Voivodeship, Poland.
Named Metropolitan Station, the station, which was aimed to become a landmark in the city, is located in the central part of the city, the Metropolitan Station and its accompanying infrastructure is a primary transport hub connecting urban, regional and national transport systems.

Image © Alek Malachowski
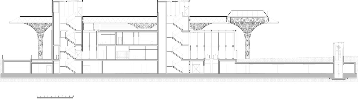
Tremend Architecture Studio merged two distinct geometries into a singular project: a linear canopy that overflows to the outside of the building and columns that imitate a real tree in organic form.
The rectangular-formed building is aimed to "be one of the most environmentally-friendly developments of its kind in Poland."

Image © Alek Malachowski
The building is differentiated with its canopied platforms with terminals for urban and regional road transport, an underground parking lot for cars, taxi bays, as well as cycle stands and racks.
A spacious roof garden are open to the public on the top level. In addition to the building, the office renovated the city square and adjacent green areas in a modern way and designed a new road system that improves traffic flow.

Image © Alek Malachowski
The Tremend Team, headed by Magdalena Federowicz-Boule as the Lead Designer, was involved in the conceptual design, architectural and construction design, and in the tender detailed design, followed by author’s supervision throughout the entire construction process.
"The implementation of technologies and materials that are environmentally friendly and limit the carbon footprint of constructions make it one of the most ecologically sound and energy efficient buildings of its kind in Poland," said architect Magdalena Federowicz-Boule from Tremend.

Image © Alek Malachowski
A driver of regeneration
"The Metropolitan Station in Lublin was built in the central part of the city, in the direct vicinity of the listed 19th century Lublin Central Railway Station building," the office stated.
"Clearly, the design not only had to accommodate the most optimal and functional traffic management systems but also blend in with the urban and architectural context of the place."
"Additionally, regeneration and providing impetus for the activation of the post-industrial area in the immediate surroundings of the railway station were particularly important facets for the designers."

In response to their original concept, the studio proposed a structure that could be "a simple, modernist pavilion", aiming to contrast with the eclectic, historical style of the Railway Station while remaining unchallenging of it, thanks to its clearly different architectural language.

Key features of the building are its openwork pillars that are part of the steel structure of the railway station and its platform canopy roofs that also serve a decorative function give it its unique architectural expression.
By interweaving linear, somewhat organic forms, the columns resemble tree trunks, giving the entire structure a feeling of lightness. Stainless steel and glass were the main materials used in the project.

Environmentally friendly design
The underlying idea of the project was built in the spirit of creating sustainable architecture.
"The minimisation of the carbon footprint has for years been the priority for architects at Tremend studio, which is why the Railway Station in Lublin was designed as one of the most environmentally friendly structures of its kind in Poland," said the office.
"The project fulfils the highest standards in the scope of sustainable development."

In response to a sustainability problem, the architects proposed a "box in a box" style solution and environmentally friendly specifications of the glazed façades to minimize energy consumption.
"Concrete, as one of the principal building materials, is a low-emissivity material. Almost three hundred square metres of the surface area is covered by an outdoor vertical garden," the team added.
"The installation of a greywater system allows harvested rainwater to be used for landscape irrigation and flushing toilets."

"Solutions like ventilation systems with up to 80 percent heat recovery and a naturally ventilated underground car park in the form of an open atrium supporting air circulation are just some of the pro-environmental values of this development," said the office.
"Radiant heating and cooling driven by cascade heat pumps using 42 boreholes have also been designed in passenger areas."
The main building was clad in transparent glass with integrated photovoltaic cells, the dual function smart bus shelter canopy shielding 43 pocket bus stands that darken in the sun afford shading and protection and harvest solar energy to power up the station.

Adding energy-efficient HVAC systems, they also allow for individual control of temperature settings in different areas of the facility and time-clock scheduling.
The team incorporated a smart lighting control system and energy-efficient lighting to reduce energy consumption by limiting the illumination of the building and the surrounding area; whereas the self-cleaning concrete pavers contribute to reducing air pollution.








Ground floor plan

First floor plan

Rooftop plan

Section-1

Section-2
Project facts
Project name: Metropolitan Station / Integrated Transportation Centre
Architects: Tremend Architecture Studio
Location: Lublin, Poland
Client: Lublin City Hall
Project: 2016
Execution: 2021-2023
Top image in the article © Alek Malachowski.
All images © Rafal Chojnacki unless otherwise stated.
All drawings © Tremend Architecture Studio.
> via Tremend Architecture Studio
Lublin station train station tree-like column Tremend Architecture Studio
