Submitted by WA Contents
Whitish glass library designed by ACDF Architecture acts as a white floating volume in Quebec
Canada Architecture News - May 23, 2024 - 14:44 5036 views

Canadian architecture practice ACDF Architecture has built a library wrapped by a whitish glass skin that can act as a white floating volume in Quebec, Montreal, Canada.
Named Bibliothèque T-A-ST-Germain, the library is located in downtown Saint-Hyacinthe, Quebec.
Made of versatile and dynamic volume, the new library intends to create spontaneous encounters, informal exchanges, discoveries, and self-fulfillment in a warm and tranquil environment.

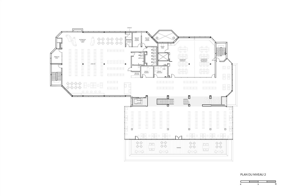
ACDF Architecture imagined two large volumes overlapping and offset from each other. Challenging the traditional typologies of a library focused on learning through reading, this 52,200-square-foot (4,850-square-metre) cultural hub offers a varied program spread over 3 floors.
The building houses two multi-purpose rooms, an exhibition area, a co-working space, multimedia creation studios - called FabLab, a computer lab, a café, a terrace, and well-defined zones for children, teenagers, and adults.

The first stone of a new waterfront corridor
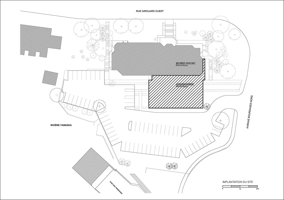
In line with the City of Saint-Hyacinthe's structuring vision to stem the exodus of merchants and residents from the historic downtown area to new urban development hubs along major roads and highways, the City of Saint-Hyacinthe has acquired a strategic site in the downtown core.
Bordering the Yamaska River and the Barsalou Bridge, the site is an important point of access to downtown for communities living on the west bank of the river.

"The project serves as the starting point for a major urban development project dedicated to the enhancement of the Yamaska River," explains ACDF President, Maxime-Alexis Frappier.
"The decision was therefore made to position the new library at the heart of the arts and culture section of the new 1.5-mile pedestrian and bicycle river corridor," Frappier added.

Preserving a healthy building
ACDF was initially tasked with creating a cutting-edge functional program and conducting various studies to determine whether the existing office building, which had been vacant for several years, should be demolished or completely transformed to establish a cohesive and iconic new cultural project.
Leveraging its expertise in renovating existing structures and firmly believing that, in the interest of the environment, architects should strive to preserve buildings, ACDF successfully demonstrated the feasibility of retaining the current building.
This decision was made despite significant challenges, including low floor clearance, universal accessibility issues due to the site's topography and floor positioning, unimpressive aesthetics, and a large footprint on the site that allowed minimal space for outdoor functions and parking areas.

"The structure was sound, the envelope was still effective, and the planted forecourts were mature and of fine quality, which nullified the justification for demolition," said Frappier.
"We wanted to embrace the challenge of designing an emblematic project capable of acting as a cultural beacon at the northern end of downtown Saint-Hyacinthe, while preserving as much of the existing building's components as possible, thus reducing the carbon impact associated with the realization of such an infrastructure," Frappier added.

A sober, balanced approach
The architects aimed to design a distinctive building for the city with limited resources. They focused on creating a simple and understated architectural style, prioritizing basic volumetric elements over grand or flamboyant gestures.
"Accordingly, the recommended approach adopts a sustainable vision of architecture by rehabilitating a modest 1987 postmodern building located in the heart of Saint-Hyacinthe's historic district," said the office.

Rather than demolishing the existing building, which is still in very good condition, or proposing to completely replace the exterior, which is still in very good condition, the architects proposed a dual mindset approach combining pragmatism and creativity.
The building is clad in a whitish glass skin, aiming to act as a beacon in the evening landscape. The extension stands out elegantly from the existing building without imposing itself on the space.
Its volumetric simplicity and glass shell complete the coherent whole with modules similar to those in the existing building. As a result, the structure emerges as a well-balanced design element, maintaining the architectural parsimony originally sought.

Magnifying and illuminating the existing building
ACDF proposed the retention of the existing building, with all its strengths and weaknesses, and the addition of an extension to complement it. The architects were then able to magnify the architectural qualities of the existing building, such as its gauge, its highly efficient Cartesian geometry, and its symmetry, while adapting them to the new standards of such cultural venues.
To counteract the unusual low clearance heights and strip fenestration for a library, the extension offers light-filled spaces with extraordinary views towards the Yamaska River, access to an outdoor terrace, and distinctive environments compared to those contained in the existing building.

"The low percentage of fenestration in the existing building allows us to maintain a very interesting ratio of total openings from a thermal point of view, despite the generous fenestration of the spaces in the extension," emphasized Maxime-Alexis Frappier.
"The variety of ambiences provided by this bipartite composition contributes greatly to the user experience."

A versatile, inviting volumetry
The expansion concept takes the form of a volumetric structure divided into two fragments, which slide over each other to create a majestic hallway linking the new pedestrian entrance to the cultural center and the vehicular entrance near the river.
This multi-purpose hall serves as a reception area, a pre-function area, a café, and a crossroads, encouraging fluid interaction between users.
The transversality of the hall, and the perspective effect it creates, catches the eye of passers-by and draws them inward. The coffered wooden ceiling provides the whole with a warm, friendly, and inviting feel.

The ground-floor volume houses three multi-purpose rooms, all accessible from the large hallway. Like cultural showcases visible from Bourdages Avenue, the multifunctional rooms will also help to enliven the future Gérard Côté urban promenade.
The design concept allows media spaces to be used outside of library opening hours, and the café occupying the lobby can be used as a service area for vernissages or special events. The volumetric translation allows for the creation of an outdoor terrace on level 2, offering spectacular views and a space to relax and enjoy the Yamaska River, while the upper volume houses areas dedicated to adult collections.

A variety of interior spaces and atmospheres
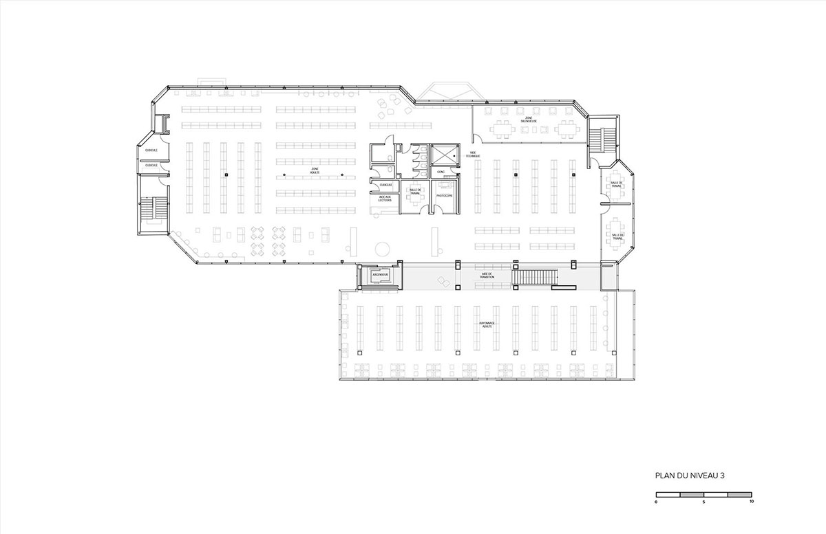
The combination of the existing building and the extension results in a variety of spaces and, above all, a variety of atmospheres to suit all tastes. On each floor, the layout revolves around a core of services and shelving, surrounded by reading and work spaces.
The relaxation areas are logically positioned at the periphery, along the narrow band of existing windows, with more focused views over the landscape and more subdued lighting, which is conducive to concentration.
The low ceiling height of the existing building (8'-2''), and the low beams at the edges of the building, effectively delimit the reading and working areas, which are more subdued and human in scale.

Conversely, the enlarged space is generously bathed in light, and totally immersed in nature, with lower shelving to enable greater enjoyment of the landscape.
This duality between the old and the new accentuates the contrast of perspectives for users: the vastness of the river and the framing of the city-culture interface. These various solutions optimize the use of space, providing flexibility and natural spatial fluidity.
On all three levels, the dialogue between the existing structure and the extension is reflected in a threshold treated as a black absence. Easily spotted by users, thanks to its monochromatic black appearance, this gap groups together the main vertical circulations.

A new cultural beacon
The new T.A. Saint-Germain library rises as a beacon on the landscape, establishing a structuring presence in Saint-Hyacinthe's historic downtown area. It has emerged as a must-see destination for all Saint-Hyacinthe residents, and contributes to efforts to requalify the old downtown area.
This project is a prime example of the architectural approach advocated by ACDF, which consists of striking the perfect balance between efficiency and aesthetics to design projects of the highest architectural quality, while knowing how to define what is possible and what is necessary.

"We advocate a design approach that focuses on a more optimal mix of resources to create meaningful architecture, and to create places that structure and contribute to their communities," concluded Maxime-Alexis Frappier.
"We hope that the responsible and frugal approach employed in this expansion and transformation project can serve to raise awareness of the merits of conserving our built heritage and exercising restraint in the means we employ to design exceptional places," Frappier added.




Site plan

Floor plan 1

Floor plan 2

Floor plan 3

Section

East elevation

West elevation

South elevation
Previous projects of ACDF include the interior design of the tech headquarters of an American video game publisher company, 2K in Montreal, and a family glass house drawn around an apple tree that becomes a representative element of the owner's childhood memories.
Project facts
Project name: Bibliothèque T-A-ST-Germain
Project location: Saint-Hyacinthe, Quebec, Canada
Completion date: December 2023
Client: Ville de Sainte Hyacinthe
Architects: ACDF Architecture
Team: Maxime Alexis Frappier, architect; Christelle Montreuil Jean-Pois, architect; Laurence Lebeux, architect; Denis Lavigne, technician; Martin Palardy, architect; Pierre Louis Beneche, technician; Michel Thompson, senior technician; Ghislain Noel, senior technician
Structural, civil, mechanical and electrical engineering: CIMA
Landscape architecture: BC2
Construction budget: $14.5M
All images © Adrien Williams.
All drawings © ACDF Architecture.
> via ACDF Architecture
