Submitted by WA Contents
Plan Architect designs dormitory building with zigzag balconies ensuring more sunlight in Thailand
Thailand Architecture News - May 28, 2021 - 12:05 15710 views

Bangkok-based architecture practice Plan Architect has designed a dormitory building for the Nurse Dormitory Chulalongkorn Memorial Hospital in Khet Pathum Wan, Thailand.
Named Nurse Dormitory Chulalongkorn Memorial Hospital, the 32,000-square-metre building features zigzag patterned balconies ensuring more sunlight and providing suitable space for planting trees and drying clothes according to the needs of the residents.

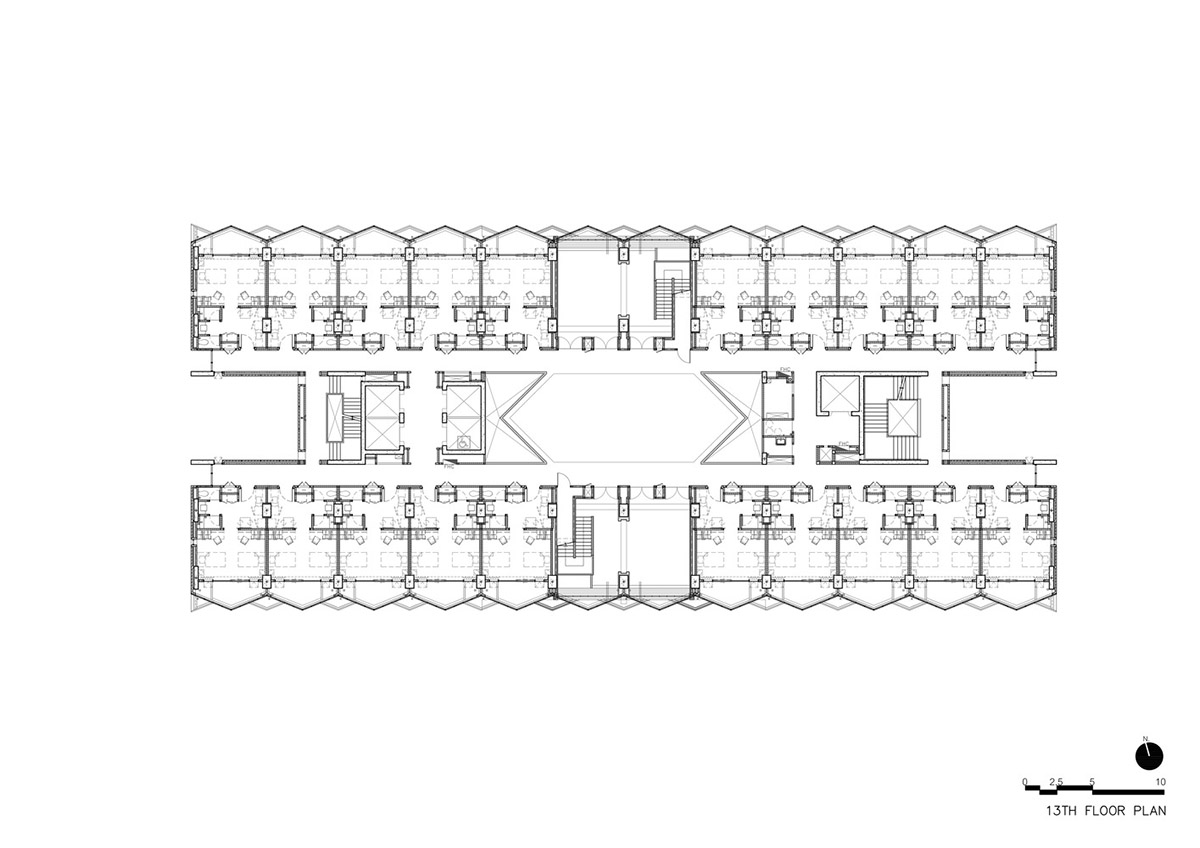
The dormitory has been designed for nurses at Chulalongkorn Hospital, The Thai Red Cross Society. The building is a 26-floor structure that offers 523 rooms.
Most of the rooms are suitable for two people with various facilities such as living area, library, canteen, washing room, and multipurpose room.

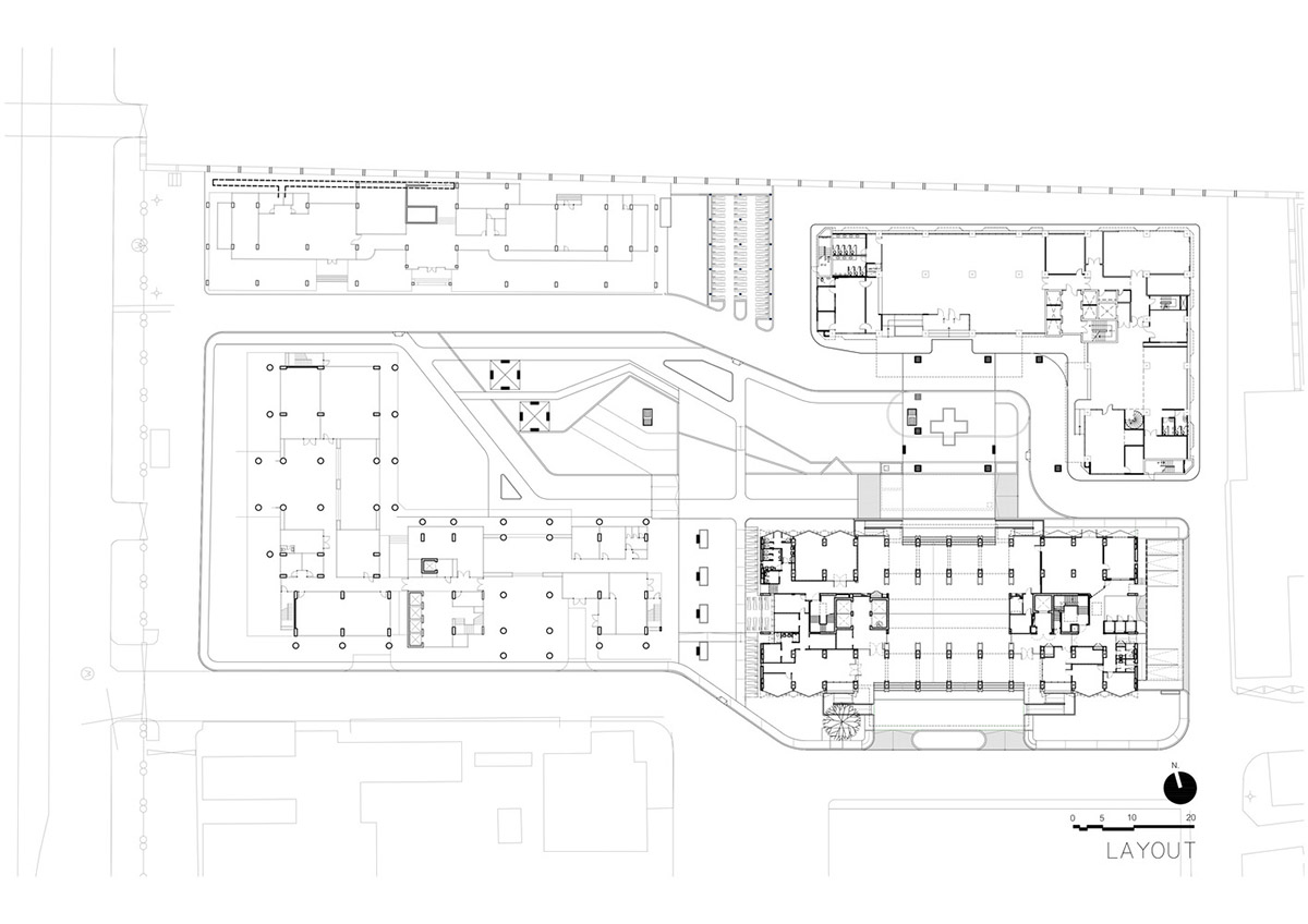
The project is situated on a site surrounded by four existing buildings of doctors' and nurses’ dormitories. "There were 3 high-rise buildings around the site which was a thoroughfare for vehicles to pass by. There was a low-rise building that stood in the middle of the site which had been demolished to be replaced by this new dormitory," said Plan Architect.
The studio's aim for the project was to design a new dormitory that could interact with 3 existing buildings, for this reason, the new dormitory creates an enclosed courtyard, separated from the crowded, busy atmosphere of the hospital.

The ground floor has been designed as an open space that is connected with the main road and with the courtyard, metaphorically act as a gateway into this quiet and peaceful residential area.

"Regarding our research, most of the nurses prefer naturally ventilated rooms to air-conditioned rooms. Planting trees on the balcony are also popular among the nurses," said the architects.
"Based on the above information, the main concept of the design to meet the needs conceived. By analyzing a typical dormitory with a double-load corridor arrangement, our team realized that there are 2 problems, lack of natural light and poor indoor ventilation."
In response to the above problems, the architects separate two sides of the building to create two single-load corridor arrangements with a gap in the middle.

"This design decision allows more natural light into the corridor and creates a ventilation chimney in the middle of the building that facilitates ventilation from basement to rooftop," added the firm.
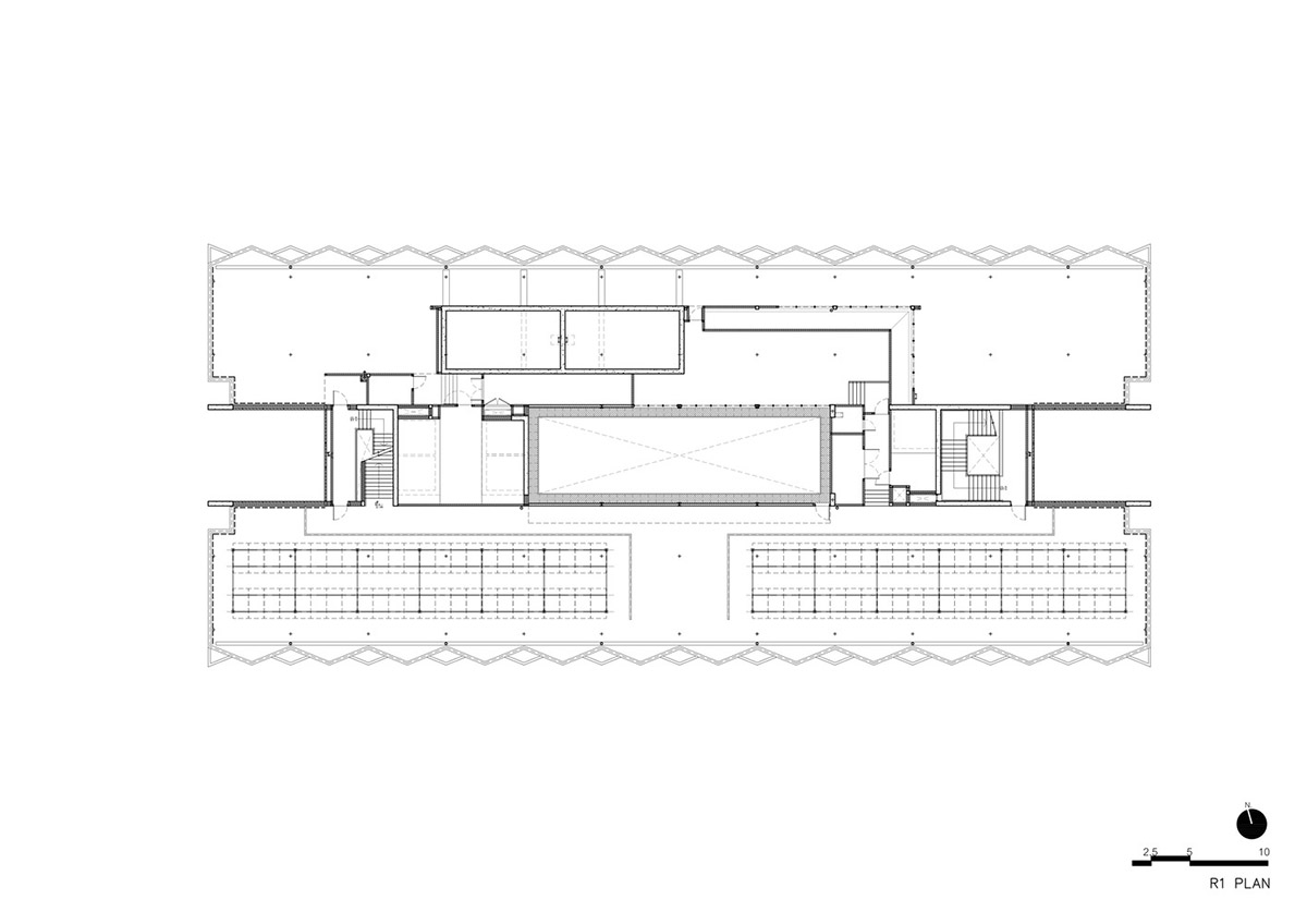
The architects designed a big air channel on the first floor and at the center of the building. And they also designed another big air channel on the rooftop to create a stack effect, draws air from the basement up to the top.

For the design of the channel on the facade, the architects are inspired by the "UNA-LOME DAENG", the original design of Thai Red Cross Society’s logo.

Inside, for the design of the rooms, the studio designed the entrance door to be a double door including a solid door and insect screen. "When the solid door and the window at the balcony opened, the air from the hallway can flow through the room. The typical room layout is divided into 2 parts," detailed the office.
"The first part adjacent to the corridor is a sharing space for both roommates including a pantry and restroom with a sliding door to separate the area from the bedroom."

They created a sliding door because of privacy reasons of the residents when they decide to leave the solid door open to let natural airflow through the room. The second part is the bedroom for two residents.

Each bed placing on the opposite side of the room to create a private space for each resident while sharing the walkway in the middle leads to the balcony.
As the team highlighted, since the dormitory is close to other nearby buildings, the team then designed balconies with a slated angle. The purpose of this slight angle is to avoid direct sightline to other buildings, while maintaining the privacy of residents.

For balconies, the architects used a zigzagged pattern on the façade allowing more sunlight to the area which suitable for planting trees and drying clothes according to the needs of the residents.

"The design of the railing with vertical aluminum fin and sunshade with a perforated aluminum sheet will conceal untidy elements such as drying rack, air conditioner condensing unit, and washing machine," added the studio.

For material choice, the architects preferred to use aluminum as materials for the facade since they are durable and easy to maintain.

"This unique facade and balcony composition create the pattern of light and shadow that reflected the simple systematic design of the building while concealing various complicated functional requirements of the users," noted the architects.







Layout plan

R1 plan

1st floor plan

13th floor plan

Section

Section

South elevation

West and East elevations
Plan Architect previously completed a gridded hotel that features cave-like entrance in Thailand.
Project facts
Project name: Nurse Dormitory Chulalongkorn Memorial Hospital
Architects: Plan Architect
Location: Patumwan, Bangkok, Thailand
Size: 32,000m2
Date: 2021
Design Team:
Nitisak Chobdamrongtham
Apichai Apichatanon
Wara Jithpratugs
Naphasorn Kiatwinyoo
Nathida Sornchumni
All images © Panoramic Studio
All drawings © Plan Architect
> via Plan Architect
