Submitted by WA Contents
Araujo Galvan Arquitectos completes Casa Mate with articulated geometry in Mexico
Mexico Architecture News - Nov 09, 2022 - 16:09 3603 views

Araujo Galvan Arquitectos has completed Casa Mate with articulated geometry on a piece of land south of the city of Guadalajara, Jalisco, Mexico.
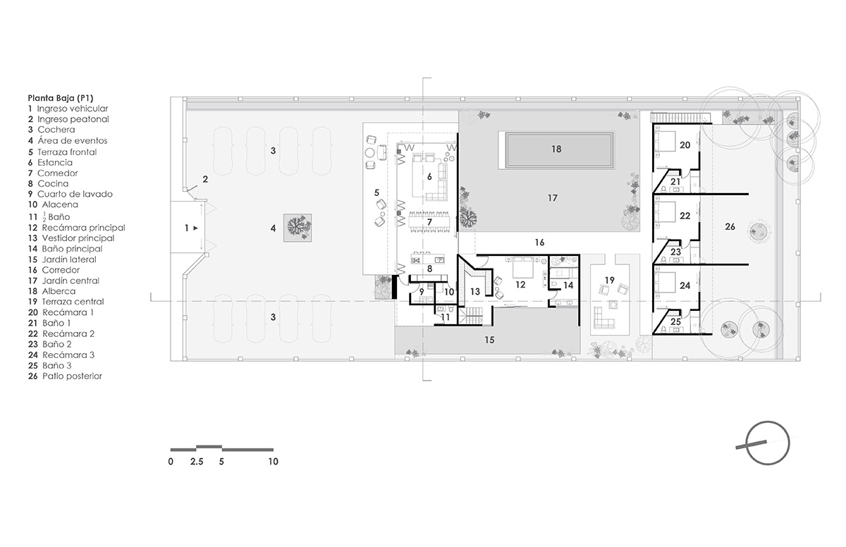
Named Casa Mate, the 480-square-metre project is conceived as a country house in which geometry plays a key role in articulating the project through a corridor with a central walled garden that seeks to be a solid generator of privacy in each one of the interior spaces.

The architectural floor plan and volumetry are made up of orthogonal lines, seeking at all times for the interior spaces to interact with the visual finishes generated by the project.
In the front part of the house is the entrance terrace with kitchen and living room that connects with the entrance plate that, when opened, becomes a single space.

Connected to the terrace through an exterior corridor, the main bedroom is isolated and takes advantage of the spatial fluidity of a double height and view towards one of the side gardens. Inside it there is a dressing room and a study with a view of the double height and an interior garden bathroom.
In the central part there is a central garden with an apparent concrete swimming lane and a private terrace with a fire pit, which articulate the modules of the project.

In the back of the land is the nucleus of rooms, placing 3 on the ground floor and 3 on the upper floor, seeking privacy at all times, on the ground floor hiding the entrances through mere wood lining and on the upper floor entering through a staircase and corridor at the back of the volume. In this space, an esplanade of rustic stone, pots and trees is developed, seeking harmony with the polished cement that surrounds the development.

In the vegetation, the studio sought to rescue the existing vegetation and incorporate roots of dry trunks belonging to the owners of the house with the intention that they become pieces of exterior art.
The materiality of the project is reduced to walls covered with polished cement and wood, marble floors, and granite details, allowing the solid volumes to become the protagonists of the house.





























Project facts
Project name: Casa Mate
Architects: Araujo Galvan Arquitectos
Completion Year: 2022
Gross Built Area (m2/ ft2): 480 m2
Project Location: Guadalajara, Jalisco Mexico.
Lead Architects: Fernanda Gavan, Daniel Araujo
Interior design: Karen Ramos, Fernanda Galvan
Landscape: Nakawe Paisajismo | Landscaping
Civil engineer: Kip Ingeniería
Structural engineer: Kip Ingeniería
Environmental & MEP engineering: Kip ingeniería
Lighting: Tecnolite
Construction: Araujo Galvan Arquitectos
All images © César Béjar Studio.
All drawings © Araujo Galvan Arquitectos.
