Submitted by WA Contents
Daniel Buren, Davide Macullo, with Mario Cristiani, Galleria Continua, built this house as public art
Switzerland Architecture News - Jul 06, 2018 - 02:26 22326 views

Swiss architecture firm Davide Macullo Architects, in collaboration with Mario Cristiani, Galleria Continua and Daniel Buren, has built this private residence with rounded edges and pinky painted timber to pretend exactly like "a public art" in the Rossa village of Swiss Alps, which sits at an altitude of 1100 meters and lies almost at the end of the valley, where the powerful force of nature expresses itself, its presence revealing to us our measure in the world.
Named Swiss House Rossa, the 300-square-metre private residence follows an atypical architectural language since it was aimed to be harmonized within a fluid landscape and to be an uncommon conversion of the existing Swiss houses.

"Swiss House Rossa represents the constant commitment to build with respect for the places we inhabit and to make every effort in helping our understanding of civilisation," said Davide Macullo Architects in its project description.
"This is an opera that lies on the cusp between art and architecture, a living sculpture. Alongside its primary role in protecting man from the elements, it is an architecture that needs art to complete it."

The pinky and green-colored house consists of three levels: 1 level basement, 2 levels above ground and mezzanines. The main structure above ground is entirely built from timber and for its exterior skin, the architects chose to paint the timber to create a soften transition in the existing historic city fabric.
The house is located in the Rossa village, Calanca valley, which is situated at the heart of Swiss Alps. The architect Davide Macullo, the founder of the studio, worked with artist Daniel Buren to give the house an exquisite artistic appearance.

"We involved him because during our own formative years he taught us the pleasure of synthesis in observing the beauty of nature through his recognisable signs. Today we have a permanent work of his in the heart of the Swiss Alps. We enter this space, built by the place: a fairytale, yet real; just as we want the world to be," said Daniel Buren.

"When you go there, you forget the things that are known to you. In reality, the journey there is short, but it is a trip of a lifetime. Once inside, the valley closes behind you, and beyond opens the door to your dreams," explained the studio.
"Rocky walls, forests, undulating soft fields; the ceaseless work of centuries of men and women; it warms us. The rocks tell us the story of the birth of the earth and how much it has had to move to give us this blessed place."
"Rossa is a place of memory where civilisation comes from simplicity. Our task is to continue this art of love for this land through humble but enduring gestures. This village in the Swiss Alps at an altitude of 1100 meters, lies almost at the end of the valley, where the powerful force of nature expresses itself, its presence revealing to us our measure in the world."

Taking cues from the signs of the past in their essence, following the peace of a place that catalyses energies difficult to describe, the Swiss House Rossa reflects an urban simplicity of the place, which is presented as a complex interlace of balance between men and the stones used to build their own home.
"Nothing here is new. This physical and spiritual place still resists commoditisation and each object placed in it is consumed and amalgamated with history and nature," added the studio.
"Swiss House is placed spatially along a line of volumes of patrician houses that form an agglomeration around the village church. The new volume emphasises this axis both physically and conceptually."

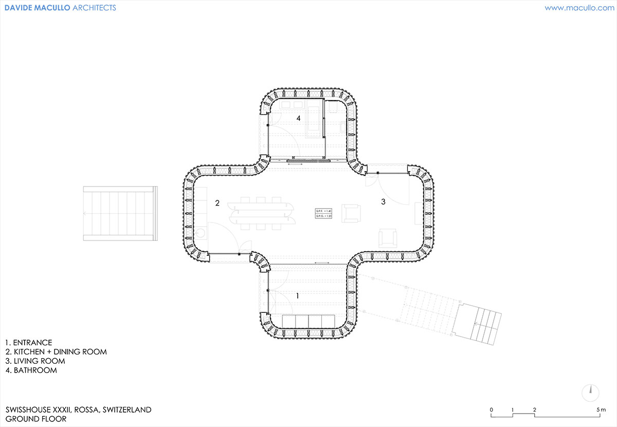
The house is appeared as a cross from vertical projection, and the simple torsion of the roof with its rounded edges make the house dynamic and reinterprets the archetype of the house.
"Just like the typical house as designed by children: two vertical lines, two diagonal line for the roof, holes for letting light. This is the same thing, but completely different," continued the architects.

The architects, in fact, invented a new archetype to show that the reasons for building are inventive and inexhaustible and that buildings are our public art.
"Just as our surrounding nature is not always the same, but is in constant flux, changing and taking on new meanings depending on how we observe it."

Considered as an enclosure that defines a dynamic space, the house provides multiple visa points for the light penetrations and to create awareness for the perception of time, notably from the absence of the instantaneous speed of the sliding images we have grown used to.

"It is an unbroken line of emotions. Each aperture is calibrated and oriented towards selected views of the surrounding landscape. Each point is different and every breath of the landscape suggests different things."
"The basement is in reinforced concrete, the upper volume entirely in wood, without interpreting the traditional construction type of the Alps, but using it as it is. In the future, we will be able to print buildings directly on the site with material that solidifies on contact with air. The architect's work is to deal with the psychology of space, perception, and love for man," concluded the architects.


Site plan

Basement floor

Ground floor

Ground floor - mezzanine

First floor plan

First floor plan - mezzanine

Roof plan

Section

East facade

East facade

South facade

North facade

Preliminary sketch
Project facts
Project name: Swiss House Rossa
Location: Rossa, Calanca Valley, Graubünden, Switzerland
Gallery: Mario Cristiani, Galleria Continua
Function: Private House - 2 units
Client: Oksana Kudin, Davide Macullo
Project start date: 2014
Construction start date: 09.2016
Completion date: 06.2017
Site area: 350 m2
Building area: 75 m2
Total floor area GFA: 300 m2
Basement floor area: 75 m2
Above ground floor area: 225 m2
Parking: 2
Storeys: 1 level basement, 2 levels above ground, mezzanines
Main structure underground: Reinforced concrete
Main structure aboveground: Timber
Architect: Davide Macullo Architects – Lugano TI
Principal: Davide Macullo
Project architect: Davide Macullo
Design collaborators: Michele Alberio and Aileen Forbes-Munnelly
Artist: Daniel Buren / Indoor art installations in situ: Miki Tallone, Flavio Paolucci
All images © Alexandre Zveiger
