Submitted by WA Contents
MoDusArchitects renovates Cusanus Academy with subtle elements in Bolzano, Italy
Italy Architecture News - Mar 16, 2021 - 11:06 7892 views

Italian architecture practice MoDusArchitects has completed the renovation of the Cusanus Academy in Bressanone with subtle elements harmonizing concrete structural frames with the exposed brick walls.
Located in Bressanone, South Tyrol in Italy, the studio adopted a subtle design strategy for the renovation of, and addition to the Cusanus Academy, a center of learning dedicated to the exchange of ideas at the intersection of the religious and secular worlds.

Haupthaus main entrance from via del Seminario
For the purpose of better engaging the Academy with the city, the project tackles the heterogeneous ensemble of seminar venues and guest accommodations with a spectrum of interventions—mimetic to overtly new—that form a more organically connected complex that invites the community in.

Haupthaus East view
Located along the Isarco river in the eastern part of the city, the Cusanus Academy comprises three buildings: Paul Norz Haus, Mühlhaus, and Haupthaus, or Main Building, originally designed by the locally renowned architect Othmar Barth (1927-2010) — the first modern building listed under the protection of the historic preservation commission of the Province of Bolzano.

View of the Haupthaus and of the Major Seminar from via del Seminario
"At the 1962 inauguration, the building triggered much debate: many considered the boldly modern building of exposed brick and concrete to be out of place, an eyesore to the adjacent 18th century Major Seminary building, while others welcomed the contemporary addition within the medieval fabric of the historical city center," said MoDusArchitects.
"Today the building stands as one of Bressanone’s landmark buildings and is considered to be Othmar Barth’s masterpiece."

Covered walkway of the Haupthaus overlooking the Major Seminar
For the project, the architects were commissioned to design a careful and balanced renovation that could absorb a host of technical and code related requirements without compromising the integrity of the Academy.
In design process, the architect intended to increase the need of accessibility for the vertical and horizontal circulation as a network of social, more public spaces.

East side facade of the Haupthaus with a view of the surrounding mountain landscape
"The project traces a fine line between that which appears to belong to the original buildings (invisible) and that which emerges as new, more clearly stated interventions (visible)," added the office.
"The two most significant and visible design moves occur at the ground level of the Haupthaus whereby a newly formed axis opens up the building, and at the lower level whereby a large conference hall becomes a new fulcrum."

Fast side facade of the Haupthaus
The studio applied a geometrical analysis for the Haupthaus building, and they devised a plan made by three squares that open up towards the South to form an indelible trapezoidal footprint.
It resulted in an interplay between an orthogonal order and a slight rotation governs the entire project be it in plan, elevation and detail.

South view of the Paul Norz Haus and of the Haupthaus
"Coupled with the 2,90m pass that presides over structure and surface, aperture and closure, down to the patterning of the floor materials that in turn mark the positioning of the seating, the building is a poignant lesson in multa paucis—saying much with few words," the architects continued.
As they highlighted, "the careful grammatical construction of the project converges in an abstract order with the real dimensions of the concrete structural frame, the exposed brick walls and pavers, and the travertine slabs into a unified whole."

Haupthaus South facade
"This building has been our master, a treasure trove of sage architectural solutions, of refined details and measured geometric patterns; a muse in the skillful orchestration of natural light and in the use of few materials; a guide to concision, simplicity and propriety: exemplary of true beauty, or rather “concinnitas” in Latin", said Matteo Scagnol, co-founder with Sandy Attia of MoDusArchitects.

View of the new north-south axis connecting the main entrance of the Haupthaus with the dining hall
The building has double height with concrete vaulted space of the Haupthaus located on the first floor, which is the architectural centerpiece of the entire complex.
The building serves as the touchstone for the tone and overall approach of the renovation.

New North-South axis of the Haupthaus, view towards the main entrance with Finn Juhl's original Japan Series seats in the background
"Although the laconic and bare-bones construction of the Haupthaus dictated a clear design ethos, we gained precious insight into the malleability of the original project through archival research that uncovered Barth’s copious documentation of the project along with his many variations and projected additions thereof," continued the studio.

View from the new axis of the seminar room at the ground floor of the Haupthaus
On the ground floor, the new North-South axis eliminates the dead-end corridor and connects the main entryway down through to the dining hall to form an articulated throughway punctuated by the newly introduced coffee shop and courtside entry area, pockets of informal seating, and views into the only seminar room located on this level.
The generous hallway embodies the ambition of the project to foster a more welcoming environment without stepping outside of the constructive logic of the building.

Main hall of the Haupthaus with exposed concrete vaults
Below ground, at the semi-basement level, the former clubhouse area is recast as a series of seminar rooms that in turn become contiguous with the (excavated) addition of the large conference hall.
Top lit by a U-shaped skylight, the new conference room circumscribes the footprint of the courtyard above ground, transforming what was once an ill-defined, residual space as a public place of social exchange.

View of main hall of the Haupthaus from the balconied corridor at the first floor
Nestled within the structural logic of the Haupthaus, a new vertical circulation core represents the functional link between Barth's project, the historic ancillary buildings, and the buried, lower level introduced by MoDusArchitects.

Main hall of the Haupthaus with the movable back wall closed and the chairs designed by Othmar Barth
The sleeping rooms hosting up to 96 guests are located on the upper floors of the Paul Norz Haus, the Mühlhaus and the Haupthaus’ flanking, long sides.
The 55 rooms of different sizes and capacities are distinguished by blue hues in the Paul Norz Haus, pistachio green in the Mühlhaus, whereas the Haupthausrooms highlight Othmar Barth’s original furnishings or variations thereof.

Main hall of the Haupthaus with the rear movable wall opening towards the conference room on the mezzanine floor
In the main building, the balconied corridors accessing the guest rooms look onto the main central hall and are bookended by the Chapel to the North and another large conference hall facing South whose split level position can be opened up via a movable partition wall to the central vaulted space.

The conference room on the mezzanine floor open to the main hall of the Haupthaus
The original Finn Juhl armchairs that Barth had chosen for the various common spaces throughout the building have been refurbished and re-introduced in the nooks and crannies of the building.
The spiritual quality of light given by the vaulted skylights can also be found in the chapel, a solemn space modified only by the artist Lois Anvidalferei’s solid stone Ambon positioned in front of the existing altar.

The conference room on the mezzanine floor closed
With a careful and tempered orchestration of a material, tectonic and technical palette of solutions, MoDusArchitects’ innumerable interventions oscillate between mimetic, reciprocal and carefully contrasting vocabularies.
What results is a shifting narrative between the old and the new that confounds the boundary between the two, offering the Cusanus Academy a contemporary and timeless architecture.

View of the main hall of the Haupthaus from the raised floor of the stage

Chapel at the first floor of the Haupthaus

Haupthaus: balconied corridor with the guest room doors and the exposed concrete vaults

One of the guest rooms of the Haupthaus with original chair designed by Othmar Barth

One of the basement floor conference room of the original project

The new modular conference room of the MoDusArchitects extension in the basement floor with the U-shaped skylight

Aerial view

Site plan

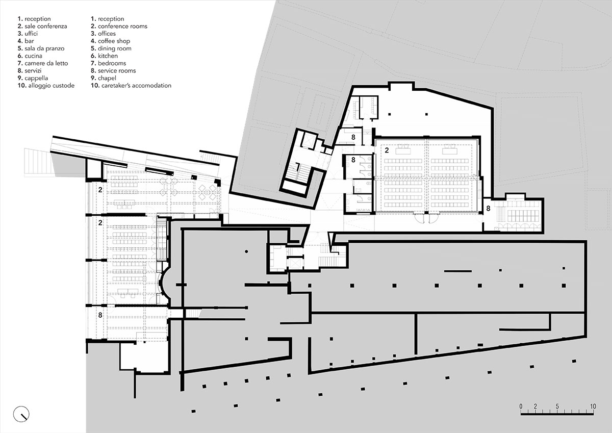
-1 floor plan

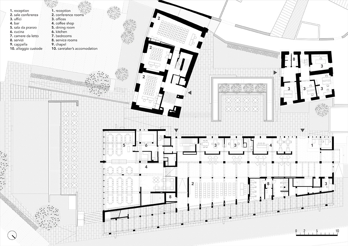
Ground floor plan

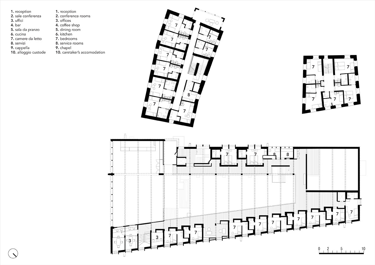
2nd floor plan

Cross-section

Main building. Section
Project facts
Project name: Cusanus Academy
Location: Via del Seminario 2, Bressanone, Bolzano (Italy)
Architect: MoDusArchitects (Sandy Attia, Matteo Scagnol)
Project team: Giorgio Cappellato, Miriam Pozzoli, Lavinia Antichi, Laura Spezzoni, Anna Valandro
Client: Kardinal Nikolaus Cusanus Akademie
Competition: 2017
Design phase: 2018
Construction phase: 2019—2020
Completion: September 2020
GFA: Haupthaus (3.640 sqm) + Paul Norz Haus (1.240 sqm) + Mühlhaus (5120 sqm) + underground addition (625 sqm)
Total costs: 11.300.000 €
Structural engineer: Roberto Ricci Maccarini (3M Engineering Srl)
Mechanical engineer: Michele Carlini (Studio Tecnico Ing. M.Carlini)
Electrical engineer: Andreas von Lutz (Von Lutz Studio Associato)
Safety engineer: Riccardo Mora (3M Engineering Srl)
Lighting consultant: Alexa von Lutz (Von Lutz Studio Associato)
Acoustics: Christina Niederstätter (Archacustica)
Geology consultant: Michael Jesacher (Jesacher Geologiebüro)
General contractor: CarronBau srl
Site work and excavation: Beton Eisack srl
Windows: Wolf Fenster SPA
Wooden carpentry: Martini Luciano SNC
Lighting: Xal GmbH, BEGA Leuchten KG
Restoration: Marson Srl
Custom-built furniture Haupthaus: Kofler Srl
Custom-built furniture Paul Norz Haus/Muhlhaus: Resch Möbel GMBH
Kitchen supplier: Winkler Gastro Solution
Standard furnishings: Trias OHG
Audio-video equipment: ACS Data System
Signage: Serima Srl
Landscaping: Kiener Gärtnerei & Gartenbau
Materials: Linoleum/Carpet flooring: Saxl Bodenbeläge SAS
Wood flooring (oak): Martini Luciano SNC
Stone flooring (porphyry): Porfido ed arte consorzio stabile
Tiles flooring: Consorzio Heraclia
Upholstery and Window coverings: Sedis GMBH
All images © Gustav Willeit
All drawings © MoDusArchitects
> via MoDusArchitects
