Submitted by WA Contents
Grey concrete villa by DF_DC is characterised with trapezoidal colonnaded terrace on Comano hills
Switzerland Architecture News - Feb 05, 2020 - 16:25 12190 views

London and Lugano-based architecture firm DF_DC has designed a grey concrete villa, featuring a trapezoidal colonnaded terrace adapted to the existing project site on the Comano hills, a small village north of Lugano in Switzerland.
Named Concrete Villa Comano, the villa acts like "an inhabited wall" that ensures privacy while creates generous open spaces for its users.
The 505-square-metre villa was built on a plot which was previously occupied by vineyards and characterised by an elongated trapezoid form, which determines the volume.

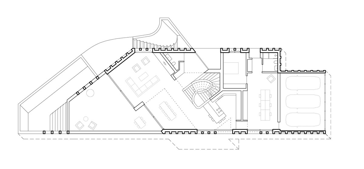
The two-storey villa, with small basement floor, was designed as open plan as possible in which extends its internal layout through an elongated and colonnaded outdoor space with the pool at the rear.

"With the interesting views towards the east and west, but with the constraint of having adjacent houses in close proximity toward the north and south, the house is conceived as in inhabited wall," said DF_DC in its project description.
"In order to avoid the effect of an excessively long and closed volume but also ensuring a level of privacy, the flank elevations are articulated by a series of deep rectangular fins."

In this house, the architects used grey reinforced concrete material, declined in various ways depending on the case. The in-situ cast fins are alternated with infill elements with the old technique of “strollato” used in Lombard villas: a mix of pebbles and cement handsplatted with a trowel and later sanded, thus combining old traditions and new construction techniques.

Image © Simone Bossi
On the ground floor, the architects designed common areas, including a reception, kitchen, workshop and guest accommodation (with separate access), garage, as well as an ample terrace conceived as an extension of the lounge, thus becoming an intermediate space between inside and out.

On the first floor, of smaller dimensions, contains the private quarters: three ensuite bedrooms and the children’s playroom.
"The asymmetrical position of this volume in respect of the ground floor makes the house to appear smaller from the street due to the perspective effect, whilst presenting the opposite effect from the pool at the rear," said the architects.

The basement floor contains the wine cellar, sauna, and gym. The three floors are linked by a scenic staircase at the centre of the living areas and as a focal point for the family.




Image © Simone Bossi





Site plan

Basement floor plan

Ground floor plan

First floor plan

Roof plan

Section
Project facts
Project name: Concrete Villa Comano
Architects: DF_DC
Size: 505m2
Location: Comano, Switzerland.
Date: 2018
All images © Giorgio Marafioti unless otherwise stated.
All drawings © DF_DC
> via DF_DC
