Submitted by WA Contents
Vaillo+Irigaray Architects' pavilion-like Psychiatric Center is dissolved within historic buildings
Spain Architecture News - Oct 25, 2019 - 15:46 11940 views

Spanish architecture practice Vaillo+Irigaray Architects has completed a pavilion-like psychiatric center in Pamplona, Spain, the new building aims to create a new kind of typology for a health center that keeps the traces of the past and reinterprets the essence of the space with clean and pure geometry.
Called Psychiatric Center, the 9,820-square-metre building was transformed and renovated from a 19th century building by adding new functions, in addition to complementing the structure to accommodate the new healthcare trends and channel and assimilate the new technologies.

The L-shaped building is subtle intervention to the city fabric but it complements the existing fabric in a modern and attractive way to revitalize it sown environment as well.
Its sand-colored outer skin and roof create a deep contrast between the old buildings - it is quite modest, simple and naive to create a curiosity to enter the building for visitors, even if it does not give the impression of a psychiatric center from afar.

"The project is a reflection on memory: the pass of time and the evolution of architecture," said Vaillo+Irigaray Architects.
"The proposal is a way to intervention in a 19th century building ... the traces of the past are engraved in the new buildings, like a memory of ancient geometries ... It is an unfinished architecture that the time will end up composing in the place."
"The proposal maintains and enhances the original values: pavilion typology in a 19th century building, pleasant scale in a landscaped surround, but neglected until now: interesting spaces between pavilions, suitable scale, well-proportioned patios: good connection between the patient and the concrete environment and environmental: perfect relationship between nature and architecture," continued the studio.

The aim is to enhance the original "hygienist spirit" and "therapeutic spirit" favouring occupational therapy and daily activities as fundamental treatments elements for good care of patients: therefore the relationship of architecture with the "domesticated" nature is re-focused, the exterior spaces and courtyards generated between the general circulations.

The architects described the process for the building as a "prosthetic strategy". The project aims to offer a hybrid between new and old buildings, trying to make the most of the values of the existing and making it possible thanks to new "dressings" that re-vitalize the desired function: as a functional "prosthesis".

"In the same way that prostheses help the original member to recover a lost function, in this case they reconfigure the space and make possible the new functions," added the studio.


Poetic relationship between the new and the old
It is intended to generate an "atmosphere" analogous to the existing one, through buildings of contemporary invoice, supported by current and flexible technological construction systems for their future use, and inspired by existing architectures, with which they should complement and mutually revalue.
It is a balanced proposal that follows the geometrical patterns of the old buildings but undertakes its design from its own functionality.
The buildings provide timeless gestures in their formal resolution: recovery of the geometry of the roofs; reuse of the geometries derived from the arch, rectilinear buildings, infinite distributors.


Construction in concrete
The entire building is constructed in structural architectural concrete - facades and roofs - so the entire construction acts as a large beam. The concrete is dyed in mass with the colour of the cement that joins the stones and the brick of the old buildings. In this way, it is intended to take the colour of the dominant atmosphere as a whole.
The geometries of the arches of the old buildings are engraved on the new facades, as a "memory" ... the memory of what was left ... with time, the building will blacken and take on the patina of the old buildings, depending on its orientation and dominant winds, and little by little the building will blend with the previous ones.






















Situation plan

Masterplan

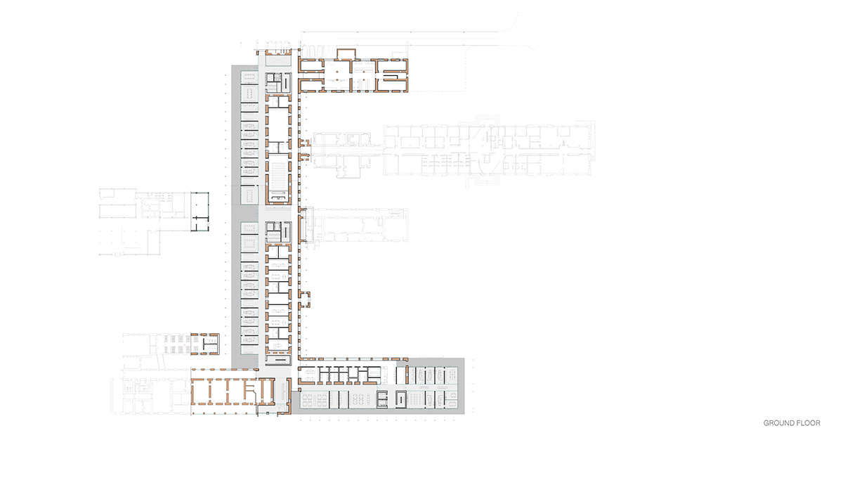
Ground floor plan

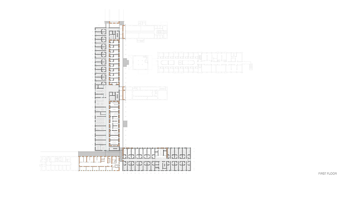
1st floor plan

Sections

Elevations
Project facts
Architects: Vaillo+Irigaray Architects
Project team: Antonio Vaíllo i Daniel, Juan L. Irigaray Huarte, Daniel Galar, Josecho Vélaz
Location: Pamplona, Navarra, Spain
Area: 9.820 m2
Project year: 2012
Client: Servicio Navarro de Salud - Osasunbidea
Structural Engineering: Raúl Escrivá – OPERA Ingeniería
Facilities Engineering: José Javier González – GE ingenieros
All images © Rubén P. Bescós
All drawings © Vaillo+Irigaray Architects
