Submitted by WA Contents
Bloc Architects completes low-rise office building with raw elements in South Africa
South Africa Architecture News - Dec 31, 2019 - 12:21 15228 views

South African architecture firm Bloc Architects has completed an office building with natural and raw materials in Dolphin Coast, South Africa.
Named The Gates, the 1,200-square-metre building offers a lifestyle that is rich in nature and embraces the true meaning of community, Elaleni Coastal Forest Estate is set to inspire sustainable living in the last indigenous coastal forests on the North Coast.

The approach to “The Gates”, is by means of an entrance causeway over an elegantly layered water feature, further emphasising the transition from the busy, fast paced outside world, to the tranquil, protected lush forest within.

Every aspect of The Gates incorporates natural or raw elements where possible, encouraging engagement with its forest context. Embracing an over-riding environmental conscience, the design utilises natural locally sourced material pallet of stone, timber, concrete and glass.

Carefully placed at a natural entryway to the forest estate, a simple form is arranged along the building’s axis. Using natural stone spine walls to support the vast cantilevered off shutter concrete green roof, this natural entrance portal and gateway to the estate is emphasized with natural indigenous greenery taking precedence over the architecture.

The indigenous naturally planted berms and roof plane set up the internal spaces along the building’s axis. “The Gates” building program consists of: Access Kiosks, Security control room, lettable offices, shared workspaces, home owners association offices and “The Hide” coffee shop and social pause area.

Elaleni residents and local community members are encouraged to engage with the features on offer, with many local design professionals relocating their offices to “The Gates”.









Site plan

Ground floor plan

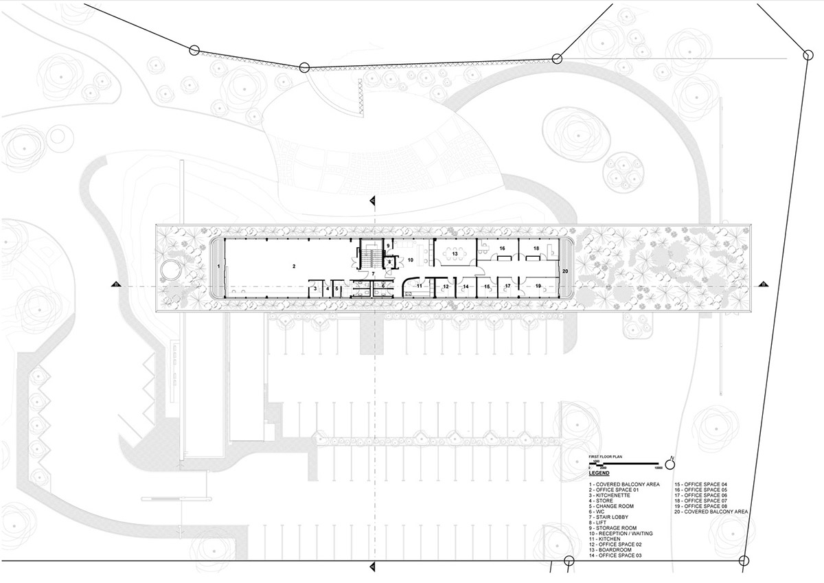
1st floor plan

Section

Section

Elevations
Project facts
Project name: The Gates
Architects: Bloc Architects
Size: 1200m2
Location: Dolphin Coast, South Africa
Date: 2019
Lead Architects: Bloc Architects
Contractor: North Global Group
Engineering: Escongweni BPH Engineers
Landscape: Uys & White Landscape Architects
Consultants: Kaljon, Ogilvie Engineering, Mvelo Air
All images © Chris Allan
> via Bloc Architects
