Submitted by WA Contents
Mecanoo completes cubic student housing wrapped in gold-tinted façade in Rotterdam
Netherlands Architecture News - May 03, 2019 - 02:12 15460 views

Mecanoo has completed a new student housing in the heart of the Erasmus University in Rotterdam. Mecanoo transformed a simple cubic volume into a vivid building by balancing between the glazed surfaces and façade configuration wrapped in gold-tinted aluminium.
Named Erasmus Campus Student Housing, the project was developed in response to a growing demand for student housing in Rotterdam. To address this shortage, Mecanoo was asked to design a student housing complex on a prominent location of the Erasmus campus: at the intersection of Abram van Rijckevorselweg and Burgemeester Oudlaan.

The prominent corner site, while offering an opportunity to strengthen the campus’s visual identity, also came with the challenges of a limited building envelope and noisy traffic.

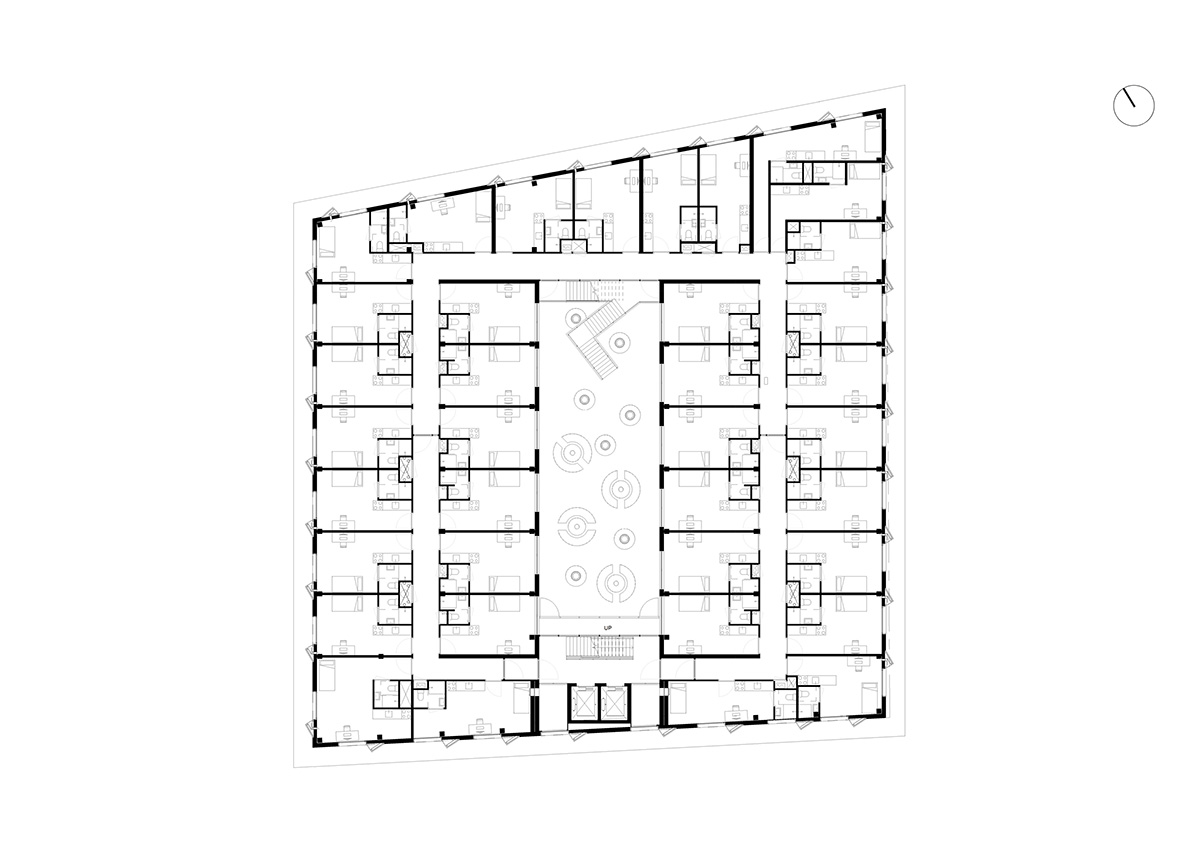
The eight-storey building accommodates 281 studio units for international students in which the building covers a total of 9,000-square-metre area. Mecanoo designed a central courtyard bringing light and air into the heart of the building and it extends as an internal street, connecting the complex with the campus’s street network.

"On both ends of the building, this central open space leads to a generous lobby. The courtyard also provides access to individual rooms, the collective study space, a launderette, the concierge’s office and bike parking," said Mecanoo.

The transparent plinth of the 25-metre-high building contains rooms with areas between 20 and 40 square metres. These units have four-metre-tall ceilings, allowing for the addition of a mezzanine-level sleeping space with a washroom and toilet underneath. The rooms on the upper storeys vary in size from 22 to 24 square metres.

They are arranged on either side of a looped corridor, which has a different colour pattern on each floor. The rooms can be accessed through a lift or through the staircase connected to the internal street.
On the roof, a collective terrace with a wooden deck and benches offers a meeting place with a generous view of the campus where students can enjoy a drink together, lay in the sun or organize a party.





Axonometric drawing

Ground floor plan

First floor plan
Project facts
Programme: 9,000 m2, 281-unit student housing varying from 20 to 40 m2, collective spaces and a rooftop terrace
Design: 2011-2016
Realisation: 2017-2018
Client: Cordeel Nederland BV, Zwijndrecht; Bond Development, The Hague
Developer: Cordeel Nederland BV, Zwijndrecht
Building owner/operator: Xior Student Housing, Eindhoven
Construction costs: €10 million
Structural engineer: IOB, Hellevoetsluis; CD20-Bouwsystemen, Arnhem
Mechanical and electrical consultant: Technisch Adviesbureau Maat B.V., Rotterdam
Acoustic, building physics, fire safety consultant: Nieman Raadgevende Ingenieurs B.V., Utrecht
Campus masterplan: Juurlink [+] Geluk, Rotterdam
All images © Mecanoo
> via Mecanoo
