Submitted by WA Contents
Richard Meier & Partners’ first residential tower features Bauhaus design principles of Tel Aviv
Israel Architecture News - Sep 07, 2017 - 17:55 21599 views

Richard Meier & Partners has completed its first international residential tower and its first project in Israel, which are inspired by the scale and Bauhaus design principles of its neighbors in Tel Aviv’s White City. Named Rothschild Tower, the 154-metre-high building comprises 147 apartments with retail spaces, and amenities including a pool, spa, wine cellar and lounges.
The building’s image elegantly presents lightness and transparency by being wrapped with a double layer façade. The facade of the tower is comprised of clear glass with a delicate white louver screen inspired by traditional Middle Eastern clothing and prominent corner balconies derived from the low to mid-rise neighboring buildings. The upper volume of the building features a large "urban window" framing the western views to the sea from the Penthouse terraces.

Image © Roland Halbe
The new residential tower is anchored to Rothschild Boulevard in the heart of Tel Aviv’s White City, a UNESCO World Heritage Site. The neighborhood is filled with thousands of Bauhaus buildings designed by German Jewish architects who began immigrating to Israel before WWII.
The city holds the world’s largest concentration of Bauhaus buildings, 4,000 in total, dating mostly from 1931 to 1956, but also encompassing subsequent designs that were built as a tribute to the style.

Image © Roland Halbe
"The great thing about the site is that it’s related to the whole city; it’s related to all of the wonderful buildings of the 1930s and to the historic buildings of Rothschild Boulevard. It makes me very happy to be in such company," said Richard Meier.
The Boulevard is a gracious civic and cultural promenade that cuts through the White City under an urban canopy of shade trees, and populated with a vibrant variety of restaurants, street cafes, and espresso pavilions.

Image © Roland Halbe
Insipired by Bauhaus principles set by German architect Walter Gropius, the Rothschild Tower introduces a very light structure that sits on a retail base. The light design scheme is based on functionality and a certain sparseness or economy of means using modern mass produced materials, and in this case a repetitive planning module.
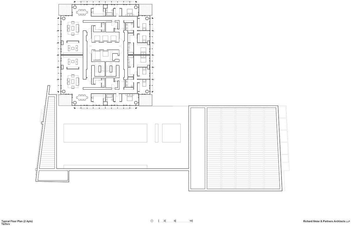
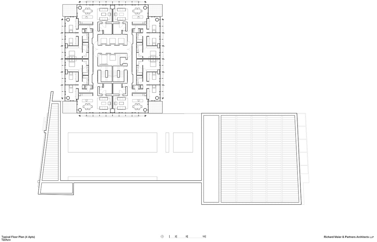
The fundamental considerations that shape the tower design are the quality of light in the plan, views to the city and sea, an efficient assembly of "served" and "service" spaces around the core, and the building’s relationship with the existing fabric and massing on Rothschild Boulevard.

Image © Roland Halbe
Lightness and transparency of the tower and base are defined as the major elements of design - they are not only used to reduce the apparent scale and mass in the context of the low to mid-rise neighborhood, or the scale-less reflective towers in the area, but to express the optimism, openness, and energy of the more secular modern character of Tel Aviv.
The studio uses an elegant white "veil" to the delicate louver screen of the tower, which is inspired by the ventilated protective layers of more traditional Middle Eastern clothing. It both defines and obscures the distinction between the public image of the building and the private realm within.

Image © Roland Halbe
The louver elements of the screen protect the delicate clear glass skin, and have local architectural precedents in the ubiquitous "treeseem", the sliding louver blinds enclosing open air porches or negative spaces so common in the existing neighborhood Bauhaus buildings.
"The tower and all its contents are designed to recognize a role as a citizen to the city, with gestures to different scales at the base, shaft, and top of the building," said Reynolds Logan, design partner-in-charge.

Image © Roland Halbe
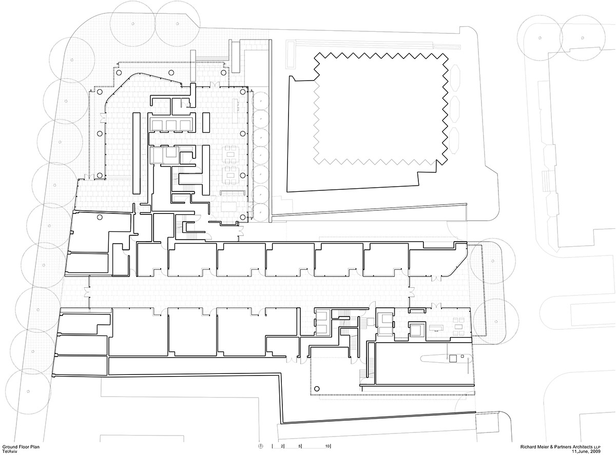
"The tower is deliberately lifted above the street on graceful piloti, with an undulating glass wall in deference to the importance of this important intersection of Rothschild and Allenby. The transparency and lofty openness of the ground floor lobby, garden, and retail spaces contribute to a vibrant streets cape," Mr. Logan added.
"Transparency and the related accessibility and connection issues merit respect for the circumstances of each project, especially in dense urban environments. We well recognize the paradoxical nature of balancing those issues, and at the Rothschild Tower the delicate louver screen is an elegant white veil inspired by the ventilated protective layers of more traditional Middle Eastern clothing. It is also a 'buffer' of sorts, and obscures the distinction between the public image of the building and the private realm within," continued Mr. Logan.

Image © Roland Halbe
The Lobby and Retail spaces are spare, lofty, and open to the surrounding streets and neighborhood. Behind the tower a former through-block retail arcade is being restored to its former glory to firmly embed the building and its residents in the pulse of the neighborhood.
At the larger scale of the city, the lightness and transparency of the tower will distinguish it dramatically among the glass and heavy neighboring towers, and perhaps inspire sustainable approaches to a more "accessible" character for large buildings in this climate in the future.

Image © Scott Frances
"The design of the buildings in the White City made a deep impression on me when I visited Israel many years ago, so to work in this context has been an aspiration of mine for a long time. It is my hope that inviting the timeless quality of this city’s light and views into an open layout for the residences, a design we haven’t seen much here, will bring together the existing elements with a fresh perspective," added Richard Meier.
"The lightness, transparency and elegance that the design of the Tower intends will integrate well with the lower scaled buildings in the area, and provide a new landmark which complements its Bauhaus predecessors," Meier added.

Image © Scott Frances

Image © Scott Frances

Site plan

First floor plan

Typical floor plan with 2 apartments

Typical floor plan with 4 apartments

Section North

Section South

East elevation

West elevation

North elevation

South elevation
Richard Meier & Partners has designed a number of new towers around the world including 1 Waterline Square and 685 First Avenue in New York City, the CDC Xin-Yi Residential Tower in Taipei, the Taichung Condominium Tower in Taichung and the Reforma Towers in Mexico City all currently under construction.
Project facts
Program: Apartments, retail spaces, and amenities including a pool, spa, wine cellar and lounges.
Floors: 42 floors above ground
Number of Units: 147 apartments
Ground Footprint: 2470 s.m. (26,586 SFT)
Net Floor Area (Typical floor): 750 s.m. (8,072 SFT)
Height of Building: 154 m (505 FT)
Design Principals: Richard Meier, FAIA, FRIBA, Reynolds Logan, FAIA
Project Architects: Thibaut Degryse and Ananth R. Sampathkumar
Collaborators: Gil Even-Tsur, John Jourden
Owner: Berggruen Residential ltd.
Associate Architects: BLK Architects and Town Planners
All drawings © Richard Meier & Partners
Top image © Roland Halbe
> via Richard Meier & Partners
