Submitted by WA Contents
He Wei converts old Chinese house into a youth hostel by adding portable and translucent rooms
China Architecture News - Aug 02, 2016 - 15:45 21892 views

Chinese architect He Wei converts inside of an old Keekwille-House in China into a youth hostel by using lightweight materials to be more practical. The architect's intention to make this old house make a usable space and restructure inside while retaining exterior of the building as the same.
The project is located in Pingtian village, Sidu Township, Songyang County, Lishui city, Zhejiang Province. The original building was an ordinary rammed earth dwelling with two floors in civil structure, covering a total of 270 square meters.

People generally call the place “Papa’s Home” since it belonged to the owner, the elderly Jiang Binlong. The goal of design is to renovate it into a place with new functions and spaces. The architect decided to put papa’s home with a young face - transforming it into a youth hostel with international standard after discussions with the owners and the local government.

To keep the overall style and features of the village, the exterior of papa’s home has been retained completely, almost unchanged. Only a window with a nice view is newly designed and installed on the second floor, where the sunshine, the air and beautiful scenery can be seen within the house.

Bold changes are adapted to the interior of the house, different from the prudent attitude to the exterior: the first floor, the clapboards in the original construction, dividing space from one to many, have been demolished, which turns space back into a whole. It will be a common place for youngsters to social and play. Meanwhile, tourists and villagers also could have a rest here.
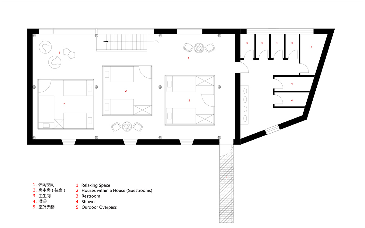
As for the second floor of the construction, the architect intends to keep the original characteristics of the spacious room, so the conventional method that using the fixed wall to divide the space is denied; several space elements with the concept of "houses within a house" are implanted into the original house.

They are made up of lightweight materials, which are dismountable, portable and translucent. The "houses within a house” are installed, which are gentle and light weighted compared to the original construction. The actual function of "houses within a house" is the living units of Papa’s Hostel; each unit can accommodate 4-6 people. The semi-hollow sheets as dividing walls are specially used to create a soft and blurred effect that highlights the construction character comparing to the original hard materials.

Different sizes of the holes are designed on the surface of the "houses within a house" to make a dramatic effect. These openings make the relatively single interface more active and provide the possibilities for people to "peek" each other. The "houses within a house" is the rooms that can "walk". There is a set of universal wheels under the structure plate, young people can move the mobile structures and reconstruct space.

Light is another important element in the design. Logic of lighting is derived from the space logic of "houses within a house", the logic sight line follows the logic of lighting: Transparent tiles on the roof and large side windows will let the natural light flow into the hollow sheet rooms during the day, from outside to inside, while habitant's sight will look out the mountains and villages through the cave entrances, form inside to outside; 3000k warm light illuminate the whole room through the translucent material reflection and refraction during the night, and overflow to the village, form inside to the outside, while the sight of habitant will finally focused on extremely contemporary light composition in the internal hollow sheet rooms, from outside to the inside.

Soft LED line light sources -warm white and color- are placed in the wooden framework of the "houses within a house", showing as natural lines, full of artistic expression in composition and light source can be look directly are correspond with the characteristics "young” of the youth hostel.

The position relationship between light and hollow sheet based on full scale model experiment, which has followed "the direction of the light is perpendicular to the hollow sheet cavity," illuminated hollow sheet rib forming the “grating", which superimposed on the original visual relationship, giving a brand-new translucent visual experience of living space.

Mostly the natural light and warm white light are reflected and refracted by the semi-transparent materials to light up the whole space. Changing shadows offer people a sweet, vague and illusive feeling. But in the certain period of time, colorful lights will be turned on, creating the space into a vibrant place.
















Floor plan-1

Floor plan-2

Section

Site plan
Project Facts
Project name: Papa’s Hostel
Location: Pingtian Village, Sidu Township, Songyang County, Lishui City, Zhejiang Province, China
Client: Jiang Bin-Long (a local villager from Pingtian village)
Principal architect: He Wei
Architectural design team: Chen Long, Li Qiang, Chen Huang-Jie, Cheuk Chun-Yung
Architectural design company: He Wei Studio/3andwich design
Lighting design team: Zhang Xin, Han Xiao-Wei, ZhouXuan-Yu
Design year: 2014-2015
Completion time: September, 2015
Area: 270 square meters
Cost of Construction: RMB 200, 000
All images © He Wei, Chen Long
> via He Wei
