Submitted by Berrin Chatzi Chousein
KAAN Architecten will design New Amsterdam Courthouse
Netherlands Architecture News - Jun 02, 2016 - 20:09 10591 views

KAAN Architecten has won the commission to design the New Amsterdam Courthouse. The building will be located at the intersection of the Zuidas and Parnassusweg, where the present judicial complex will be demolished. The new building is to be completed in 2020. In the meantime, the law courts will be temporarily housed elsewhere in the neighbourhood.
With a staff of 1.000, including 200 judges and 800 professionals, as well as many daily visitors and the processing of 150.000 cases a year, the Courthouse of Amsterdam is the largest in the Netherlands.

The preliminary design is a stately, open structure which offers both employees and visitors views over the city, and passers-by the opportunity to engage with the building. KAAN Architecten understands that justice is a public affair of the highest importance. This primary feature determines the building’s form, which means that it will be distinguished and accessible.

The courthouse building will be exemplary in its efficiency, like the organisation itself, and be part of the daily life surrounding it. Natural design consequences of this are the big windows at the ground floor as well as the entrance courtyard intended for public use.

Cafe & bar is set in an open space
The city’s streets merge with the layout of the building. The forecourt, the central hall and its foyers, and the waiting areas for visitors are an extension of urban space. Of course, the building’s users will not be ‘on display’. Visitors will find sheltered spots; judges, court clerks and ministerial representatives will have their own screened-off routes.

Inside, just off the central hall, the building will have two independent structures with 50 courtrooms and council chambers, all provided with daylight. The large ground-floor courtroom, for cases that attract a large number of visitors, has been designed with a direct access route that is separate from the central entranceway, so as not to disturb ongoing proceedings.

Conference hall with transparent inner court
The building will have several gardens. The central hall with escalator will border an enclosed garden, shielded by a glass wall. Vertical gardens will climb through the building among the offices. And in the western part, a sunken garden will supply daylight to the lower floor. A large terrace will also provide 50 workstations with connections.

Knowledge centre is seen from transparent library
KAAN Architecten is undertaking works for the New Amsterdam Courthouse as part of a consortium which includes Macquarie Capital, ABT, DVP, construction companies Heijmans and M.J. de Nijs & Zonen, and Facilicom. A 30-year Design Build Finance Maintain Operate (DBFMO) contract, established upon commission by the Rijksvastgoedbedrijf (Central Government Real Estate Agency), forms the basis of this public-private partnership (PPP).

Offices from the backyard


a view from the court room

Facade detail and materials

Foyer void view

Sculptural stairs taking place at the centre of floor with circular void

Areal view from the city

Partial view from the city

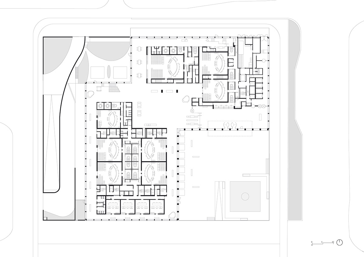
Level plan 00

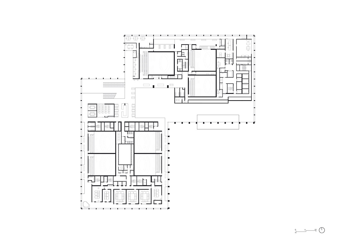
Level plan 01

Level plan 05

Level plan 08

section
Project Facts
Project name: New Amsterdam Courthouse
Location: Parnassusweg, Amsterdam (The Netherlands) client: Rijksvastgoedbedrijf
Programme: public square, foyer, 70 courtrooms, offices, lobby, restaurant, conference center and library annexed area
Architect: KAAN Architecten (Kees Kaan, Vincent Panhuysen, Dikkie Scipio)
Project team: Ana Rivero Esteban, Beatrice Bagnara, Dennis Bruijn, Sebastiaan Buitenhuis, Marten Dashorst, Sebastian van Damme, Cecilia Dobos, Paolo Faleschini, Raluca Firicel, Narine Gyulkhasyan, Moritz Kühl, Marco Lanna, Yinghao Lin, Marija Mateljan, Kevin Park
Design: 2014 - 2016
Start construction: august 2017 (expected) completion: september 2020 (expected) GFA: 47.257 m2
Contractor: consortium NACH: Macquarie Capital, ABT, DVP, KAAN Architecten, Heijmans, M.J. de Nijs & Zonen, Facilicom advisor construction: ABT
Advisor technical installations: ABT
Advisor fire control and acoustics: ABT
All visuals: Beauty & The Bit; KAAN Architecten
> via KAAN Architecten
