Submitted by WA Contents
Civic Architects and VDNDP carve out Geo-faculty of ITC with four atria taking landscape inside
Netherlands Architecture News - Oct 19, 2023 - 11:51 3354 views

Civic Architects and VDNDP have carved out the new ITC, the International Institute for Geo-Information Sciences with four atria taking landscape inside the building to provide a plenty of daylight and fresh air.
The new Geo-faculty of ITC is located in Enschede, the Netherlands and completed as a standout faculty within the University of Twente.
The faculty accommodates students pursuing Master's and PhD degrees, alongside researchers worldwide, gather in Enschede to explore sustainable solutions.
Civic Architects converted a former chemistry lab, known as Langezijds, built in 1972, into a new sustainable icon, incorporating four atria and three spectacular interior gardens. The design team preferred to use a substracton method rather than adding a new construction to the existing building.

Image © Stijn Bollaert
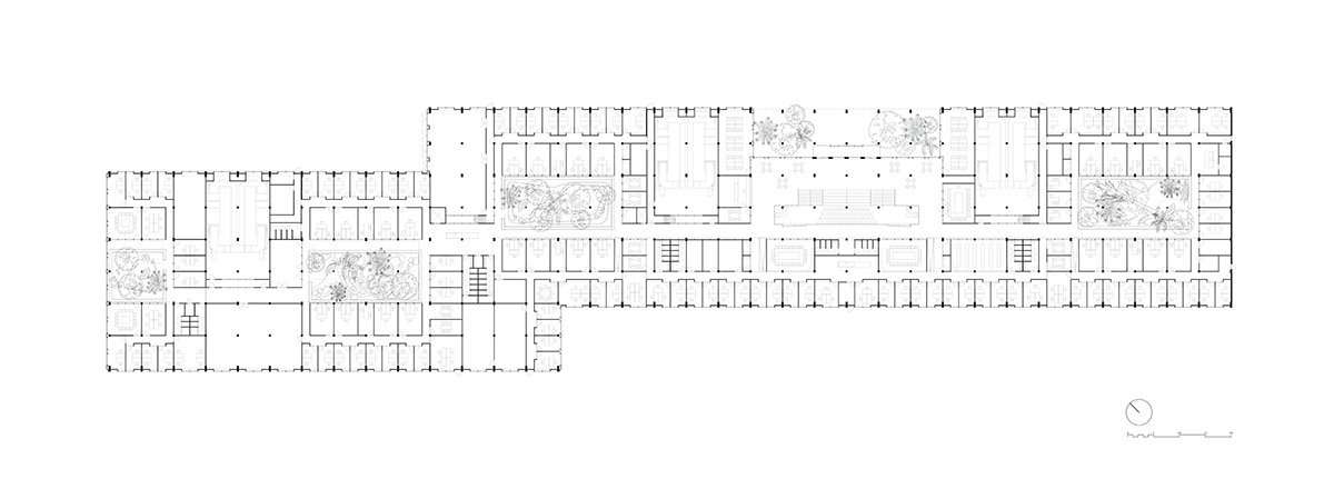
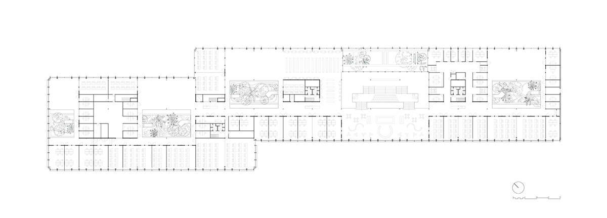
The new 13,605-square-metre faculty contains classrooms, labs, a study center, offices, a restaurant, and three courtyard gardens.
Langezijd is exceptionally long building reaching at 220 meters and 38 meters in depth. The building has a low-rise ground floor and a high upper floor, giving it a distinctive character "but rendering it unsuitable for modern education," according to Civic Architects.
Described as "a sustainable icon for an international scientific faculty", the faculty is clustered around three spectacular interior gardens: The Wood, Water, and Stone Garden - in which each have their unique character, adding color to the building.

Image © Stijn Bollaert
Interior designs were completed by Deventer-based Studio Groen+Schild, while landscape architecture was completed by DS Landscape architects.
"The new design focuses on creating space and light within these constraints, not by adding but by removing: Four atria carved out of the structure provide greenery, fresh air, and daylight, making the building suitable for its new purpose in a single intervention," said Civic Architects.
According to the studio, "University faculties often resemble generic office buildings, sharing same features; white stucco, suspended ceilings, neutrality is the magic word."

Image © Stijn Bollaert
On the other hand, the new ITC is just was conceived as flexible and functional as its counterparts but features a more specific architecture that embraces the imperfections of the existing building.
The building includes concrete ceiling, the brutalist structure including its blemishes and traces of use, remain visible. "Saw cuts reveal where floors once were, and old columns stand like overgrown ruins in the atria. Oak facades and bamboo floors introduce warmth."
"The materials are robust, the details refined, and no paint is used. Construction is finishing; that's the premise," said the office.

Image © Stijn Bollaert
Renewed functionalism
The architects call the design of the project "renewed functionalism", as the new design responds to the functionalist architecture of Langezijds.
The existing structure has been repaired, interpreted, dismantled, and complemented with architectural prosthetics, while some functionalist principles have been unmistakably continued.

Image © Stijn Bollaert
Other details like old and new, walls and stairs, fixtures and sprinklers were designed on a grid of 1550 milimetres.
Distinctive details embody the power of technology; the sprinkler system and all electrical elements on the upper floor have been carefully kept in sight.
The distinctive feature of the building is its facade; and it alternates between the original architecture with a concrete ground floor and a glass upper floor.
The low-rise façade features wooden frames clarify the building's new purpose. The raised floor at the facade simultaneously serves as a seating edge with views over the campus.

Image © Stijn Bollaert
Architecture of landscape
Langezijds is situated on the Drienerlo estate, a beautiful campus with standalone buildings in a green landscape. The design for ITC integrates landscape and architecture through the four atria.
They connect the interior with the outdoors, nature with technology. One of the atria serves as the new entrance in the center of the building. The facade steps back here, the landscape folds inward, and trees grow into the building, giving the faculty a recognizable address at the intersection of two urban axes.

Image © Stijn Bollaert
Drienerlo; laboratory of modern architectural history
Campus Drienerlo was designed in the 1960s by Willem van Tijen and Sam van Embden, who projected an abstract grid onto the organic landscape of the estate and introduced strict functional segregation.
The first buildings - the Main Building, the Hogekamp, and Langezijds - were "autonomous machines in the landscape." Later, a new generation of structuralist architects - Piet Blom, Herman Haan, Joop van Stigt - had the opportunity to work on the campus.
Their buildings created a more fluid relationship with the landscape, connecting indoor and outdoor through shifts and patios, and scaling down the architecture.

Image © Stijn Bollaert
The new ITC design takes the next step in the campus's architectural tradition. The basis is functional, the atria connect the building to the surroundings, and the architectural execution is rich and refined.

Image © Stijn Bollaert
Sustainable mission
The architecture symbolizes ITC's global sustainable mission. Architecture follows climate, with the preservation of the "brutalist" structure at its core.
Offices, with a stable temperature, are located on the cooler ground floor, and larger educational spaces are on the upper floor. Reused sunshades on the south side prevent overheating in the summer. Fresh air is naturally exhausted through the atria, which serve as the building's green lungs.

Image © Stijn Bollaert
The gardens of ITC
The atria serve as biotopes for flora and fauna, contributing to a stress-free work environment. Three gardens, called The Wood, Water, and Stone Garden, have their own character, adding color to the building.
The faculty building consists of a generous landscape with plants and trees rooted in over a meter of soil, providing an ideal environment for (sub)tropical vegetation. The V-shaped glass roofs are added to collect rainwater, visibly leading it into the gardens, where it infiltrates and is stored for plant irrigation.

Image © Stijn Bollaert
Flexible installation concept
The design bundles the installations for both floors into a single 'air plenum' in the raised floor.
This compact clustering of installations keeps the charactestic concrete ceilings in view and maximizes the free height of the ground floor without extra ductwork.
Fresh air is introduced at a low speed – and thus high comfort - from the floor, flows into the atria, and is naturally exhausted through the roof.

Image © Stijn Bollaert
Users can influence the climate directly by opening windows. For part of the year, the building is naturally ventilated. The 'plenum' in the raised floor has no air ducts but directs air directly into the space through floor grilles.
This allows for easy relocation of walls and spaces without changing or readjusting the installations. All other installations are accessible by simply lifting a floor tile.

Image © Mike Bink
Circularity
The studio paid attention to circularity principles in the project.
For example, the design focuses on reusing the existing structure with walls, stairs, facades, and the roof structure of the atria - all new elements are placed on or hung from the existing structure and foundation, saving a significant amount of material.

Image © Mike Bink
The studio chose new steel structural parts that are thermally galvanized and demountable. For new elements, they preferred to use circular systems and products. In addition, the interior facades and exterior ground floor facade are made of oak, and the raised floor is made of bamboo.
In the interior, the team used demountable steel system walls for partition walls to allow easy adaptation of the building. Partition walls have a material-specific bronze color.
The parts of the fixed and loose furnishings are detachable, while the materials have been used without paint. Moreover, the table bases are not powder-coated.

Image © Mike Bink
The faculty of the future; interaction
"ITC is one of the world's top academic institutes for earth observation and geo-information. Since 2010, the faculty has been part of the University of Twente, and the move to the campus marks the final step in this integration," said Civic Architects.
"The faculty is more than a place to study and work for many foreign students and researchers; ITC is a community, and the building is their home base."
"The new building accommodates the diverse cultures and practices of this academic community. The central concept is interaction - among departments, academics, and between research and education," the studio explained.

Image © Mike Bink
The entrance hall features a Social Heart, which is open everyone who wants to meets and dine together. "It's an open space with a tiered seating staircase leading to the restaurant and the 'study and learning center," the studio added.
The scientific departments are clustered around the atria, ensuring that all spaces in the building have a view of the landscape.
Education, offices, labs, and study areas alternate, allowing teachers, students, and researchers to meet in the inner courtyards connected by a wide internal street with pantries.

Image © Mike Bink
Buzz and tranquility
Each person has different needs and preferences, and the building offers various types of spaces, ranging from dynamic to quiet. The floor heights and the atmosphere of the existing building naturally determined the basic distribution.
Smaller offices are placed on the lower floor with a lower ceiling, while larger spaces such as education, the restaurant, the study and learning center are arranged on the upper floor.

Image © Mike Bink
Open study areas are located near the green atria. The contact with landscape, light, and air make these spaces ideal for collaboration and knowledge sharing.
Studying is also defined in enclosed spaces and rooms that prioritize privacy and concentration. A good room acoustic is guaranteed with an acoustic ceiling and upholstery in the interior.

Image © Mike Bink
Identity
ITC's people work worldwide to achieve the United Nations' Sustainable Development Goals. They work on projects related to food security, the energy transition, climate change, sustainable urban development, and smart cities, among others.
The new building provides ITC with a sustainable stage to showcase who they are and what they stand for - a sustainable, flexible, and future-proof building that connects nature and culture.

Image © Mike Bink

Image © Mike Bink

Image © Mike Bink

Image © Mike Bink

Situation plan

Ground floor plan

First floor plan

Section

Axonometric diagram
Civic Architects transformed an old industrial building into a new transparent public library in the city of Tilburg.
Civic Architects was founded in 2015 by Ingrid van der Heijden, Jan Lebbink, Gert Kwekkeboom and Rick ten Doeschate. The firm's design philosophy focuses on specificity of each project that has a positive public impact.
Project facts
Client: Universiteit Twente, Enschede
User: ITC Faculty of Geo-Information Science and Earth observation
Gross floor area: 13.605m2
Architect: Civic Architects & VDNDP
Interior architect: Studio Groen+Schild
Advisors: Arup (building physics), Valstar Simonis (installations), Schreuders bouwtechniek (structural engineering), DS Landschapsarchitecten (landscape design gardens), Flora Nova (execution gardens) Joost de Beij (light), Buro Loo (advisor sustainability UT)
Contractor: Dura Vermeer Bouw Hengelo/Trebbe (building) and Croonwolter&dros (installations)
Completion date: October 25th, 2023
Top image in the article © Stijn Bollaert.
All images © Stijn Bollaert & Mike Bink.
All images © Civic Architects.
> via Civic Architects
Civic Architects educational building university buildings VDNDP
