Submitted by WA Contents
BIG imagined the Robert Day Sciences Building like "a queen on the campus chessboard"
United States Architecture News - Oct 06, 2025 - 04:24 3480 views
![]()
BIG has completed a new science center at Claremont McKenna College (CMC) in California, United States. The building's volumetric relationships were imagined as "a queen on the campus chessboard."
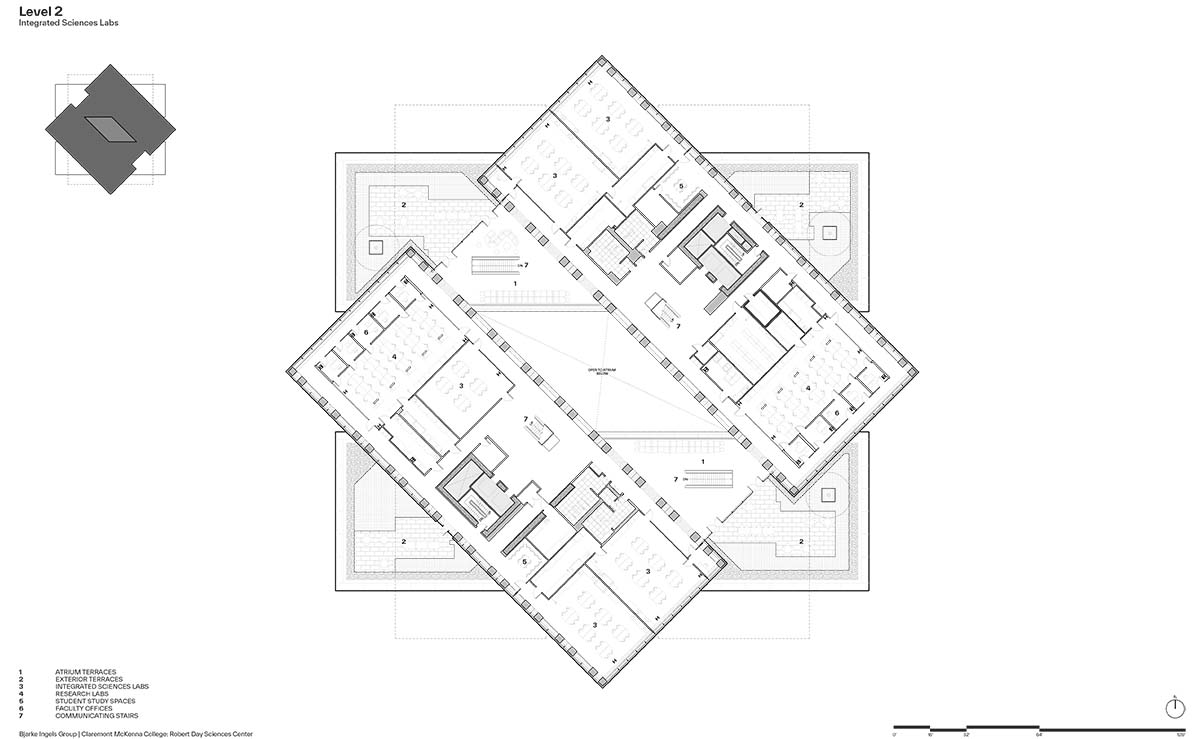
Named Claremont McKenna College Robert Day Sciences Center, each floor of the 135,000-square-foot (12,542-square-meter) Robert Day Sciences Center at Claremont McKenna College is oriented in a different direction, directing the flow of people and ideas between the labs, classrooms, and the surrounding campus to optimize multidisciplinary integration and interaction.
![]()
The Robert Day Sciences Center, which opened in 2020, provides services to 1,400 students.
The center is BIG's first Los Angeles project and the first completed structure in the BIG-designed Roberts Campus masterplan for CMC, which aims to create a more cohesive campus with a number of buildings extending the central mall and the nearby sports bowl that is now being developed.
![]()
IDS Real Estate Group served as the construction manager, KPRS Construction served as the general contractor, and Saiful Bouquet served as the structural engineer on the Sciences Center.
![]()
Situated on the eastern side of campus at the intersection of Ninth Street and Claremont Boulevard, the Robert Day Sciences Center offers vistas of Mount Baldy and serves as a new entrance to the school. It also strategically facilitates excellent links with other academic departments.
Students, faculty, staff, and visitors are welcomed by a striking 15-foot floating canopy that draws them into a multistory atrium that is bright with light and bustling with activity.
![]()
"A three-dimensional learning environment"
"The Robert Day Sciences Center brings together computer science, data science, and life sciences in one integrated environment. As the first completed building of our master plan for Claremont McKenna, it extends the north mall into a zigzag of malls, becoming a distributor of flows for the entire campus," said Bjarke Ingels, Founder & Creative Director, BIG.
"We imagined the Sciences Center as a series of parallel building volumes side by side - with a public space in between - that are rotated in all the same directions as the mall."
![]()
"Even though each of the individual building volumes are rational, flexible, and capable of being computer labs or wet labs, the open atrium in between becomes a Piranesian social space where you can see fellow students, faculty, colleagues, and professors from every level."
"So even if you spend most of your time in a wet lab, computer lab, or classroom, there will still be many opportunities for sparks to fly between you and your fellow students, stimulating the exchange of ideas across the traditional silos of knowledge."
"In that sense, the Robert Day Sciences Center becomes a crucible where all of the different kinds of knowledge and all of the different kinds of students and teachers come together in one complex, three-dimensional learning environment," Ingels explained.
![]()
Each pair of volumes in the building's construction is oriented 45 degrees from the floor below, forming a stack. The building's full-height atrium, which offers direct views into classrooms and research areas from every floor, is formed by the gaps of the rotating blocks.
The atrium's open areas, which reflect the center's architectural and instructional philosophy, encourage teamwork.
![]()
The exterior uses glass fiber reinforced concrete board-formed panels, which give the building a wood-like appearance and offer the fire protection and durability needed for a contemporary laboratory.
About 342 megawatt hours of energy are produced annually by the 11,000 square feet (1,022 square meters) of solar panels on the roof.
![]()
"This gorgeous architecture amplifies and elevates a revolutionary vision for higher learning at a critical moment in the well-being of our species, our brains, our planet. We can no longer rely on siloed disciplines within the sciences or between the sciences, social sciences, and the humanities to meet the challenges and opportunities of our time," said Hiram E. Chodosh, President, Claremont McKenna College.
"The Robert Day Sciences Center and Kravis Department of Integrated Sciences fuse facility and program, with multi-disciplinary expertise, problem-based learning, applied ethics, and higher human intelligence in an era of AI. Bjarke’s rotating stacks create opportunities to learn at the intersections."
"The wood fuels our social warmth. The glass cuts through the barriers. The beautiful finishes and spectacular public art inspire our humanism. This is a carved jewel for Claremont McKenna College. A gem for the ages," Chodosh explained.
![]()
Inside, triangular steel trusses covered in Douglas fir support each level as it bridges the level below. There is a smooth transition from the inside to the outside thanks to the trusses' texture, rhythm, and shape.
The atrium creates a bustling hub in the middle of the building with a café and an expansive stairway designed for socialization and relaxation.
![]()
Damien Ortega's Magnetic Field, a complex sculpture depicting Earth's magnetosphere made up of 1,476 colorful glass spheres and 18 metal rings, hovers in orbit while suspended 30 feet in the air.
Classrooms, research areas, dry and wet labs, the Quantum Library, and a maker's space are on the top levels, while the McElwee Forum, a sizable seminar space, and imaging suites are on the main floor.
![]()
The classrooms are arranged around the building's perimeter, providing scenic vistas while maintaining a clear separation from the social areas and atrium below.
The school's distinctive red and gold hues are used to highlight the concrete flooring and warm wood paneling throughout the structure. Future scientific innovation will be accommodated by the BIG-designed interiors, which include features like modular seating and classrooms that can be reconfigured.
![]()
On the corners of each "bar," there are eight external rooftop terraces that provide expansive 360-degree views of the sports bowl to the east, the campus to the west, and the mountains to the north.
These multipurpose areas are intended to serve as outdoor classrooms, study spaces, or gathering spots. They are landscaped with native plants. The goal of the Robert Day Sciences Center is LEED Gold.
![]()
"Like a well-placed queen on the chessboard"
"Like a well-placed queen on the chessboard, the Robert Day Sciences Building unlocks new moves for the campus - extending the north mall, initiating a diagonal mall, and opening access to the east sports campus," said Leon Rost, Partner, BIG.
"Growing in parallel with our Los Angeles office, it has become a shared milestone - an architectural cornerstone for the campus and a testament to our team’s evolution as California architects," Rost added.
![]()
The Robert Day Sciences Center becomes a beacon for the intersection of scientific imagination, research, and creativity when day yields way to night.
The center, which is illuminated against the San Gabriel Mountains, serves as both the focal point of CMC's eastern entrance and a dynamic, motivating hub for learning.
![]()
![]()
![]()
![]()
![]()
![]()
![]()
![]()
![]()
![]()
![]()
![]()
![]()
![]()
![]()
![]()
![]()
![]()
![]()
![]()
![]()
![]()
![]()
![]()
![]()
BIG recently revealed new images for the masterplan of Telosa City, focusing on "people-centric" design, developing a comprehensive framework for sustainable and equitable urban living. In addition, the firm revealed the design for a new Hungarian Natural History Museum in Debrecen, Hungary’s second-largest city.
Moroever, BIG envisioned Bhutan's new international airport with a diagrid structure adorned with painted carvings, blending Bhutan’s traditional craftsmanship with modern innovation.
Project facts
Name: Claremont McKenna College Robert Day Sciences Center
Size: 135,000 sq ft
Location: Claremont, California, United States
Client: Claremont McKenna College
Design Architect and Architect of Record: BIG
Collaborators: Saiful Bouquet, Acco Engineered Systems, Atlas Civil Design, MRY, Rosendin Electric, WSP USA, Jacobs, ARUP, KGM Architectural Lighting, Heintges, KOA, EWCG, KPRS, Herrick, Hortus Environmental Design, IDS Real Estate Group, Kleinfelder, Salamander, Code Consultants Inc.
BIG Team
Creative Director: Bjarke Ingels
Partner-in-Charge: Leon Rost
Project Manager: Aran Coakley
Technical Lead: Amir Mikhaeil
Project Leader: Lorenz Krisai
Team: Abigail Meyer, Ahmad Tabbakh, Alan Maedo, Ana Luisa Pedreira, Beat Schenk, Bernardo Schuhmacher, Bianca Blanari, Casey Tucker, David Holbrook, David Iseri, Dylan Hames, Gus Steyer, Hector Romero, Jan Leenknegt, Janie Louise Green, Joe Veliz, Kam Chi Cheng, Minjung Ku, Neha Sadruddin, Pooya AleDavood, Richard Cagasca, Ryan Duval, Seung Ho Shin, Sue Biolsi, Terrence Chew, Thomas Guerra, Thomas McMurtrie, Tracy Sodder, Vi Madrazo, Won Ryu, Yanan Ding, Yasamin Mayyas, Yen-Jung Alex Wu, Yiling Emily Chen.
All images © Laurian Ghinitolu.
All drawings © BIG.
> via BIG
