Submitted by WA Contents
Neri&Hu built residential apartment that adds "timeless aesthetic" to a Taipei neighborhood
Taiwan Architecture News - Jul 31, 2024 - 13:59 6070 views

Shanghai-based design and research office Neri&Hu has built a residential apartment that brings "a timeless aesthetic" to a Taipei neighborhood in Taiwan.
The 17-story structure is located in the culturally rich Zhishan neighborhood in the Tianmu district of Shilin. It served as a bridge to other cultures, and the majority of international schools are still situated in this neighborhood.

Neri&Hu designed a gridded skin with an inverted catenary arch-shaped screens that enables to preserve a human scale and sense of community of the neighborhood.
The studio addresses the cross-cultural identity and slow-living lifestyle of the low-rise 1970s houses with inverted catenary arch-shaped screens on the façades. This approach also contrasts with a glassy, tall, and new construction.

Because of the subtropical climate in the area, lush greenery is able to flourish and spread throughout the urban landscape, according to Neri&Hu.
"Residents of Tianmu are proud of this cross-cultural identity and enjoy a slow-living lifestyle that is removed from the bustle of more commercial areas in the city," said Neri&Hu.
"In this context of Taipei and Zhishan, our design intent for a high-end residential building was to embody a timeless aesthetic through the use of tectonic forms and tactile materials," the firm added.

The building massing strategy took setbacks into account and maintained a strong, squared edge on the north corner to maintain a bold presence along the street, while the building's saw-toothed footprint softened the south side.
A grid of tastefully proportioned columns and beams covered in light gray stone makes up the elevation's straightforward expression.An open corner detail adds some lightness to the structural framing's expression.

An inverted catenary arch screen made of copper-toned metal is inserted into each grid frame to enclose balconies and add another layer of glazing over the glazing below.
Inspired by the numerous "flower grid" screens that are commonly found in Taiwan on top of windows in historic buildings, the studio reimagines this iconic element using an opulent material and a sophisticated pattern on a larger scale.

In order to achieve a delicate balance between masculine and feminine, historic and modern, cool and warm, rational and expressive, the two opposing elements of structure and screen are working in harmony.
The firm has continued to use rich materials and archetypal forms in their interior space design. Warm gray terrazzo, which is used throughout the double-height arched entryway, mailbox area, elevator lobby, and lounge area—which is accentuated by a hand-blown glass and bronze pendant installation—is the first thing one sees upon entering.

Neutral textiles and bronze accents accentuate black walnut timber furniture pieces.
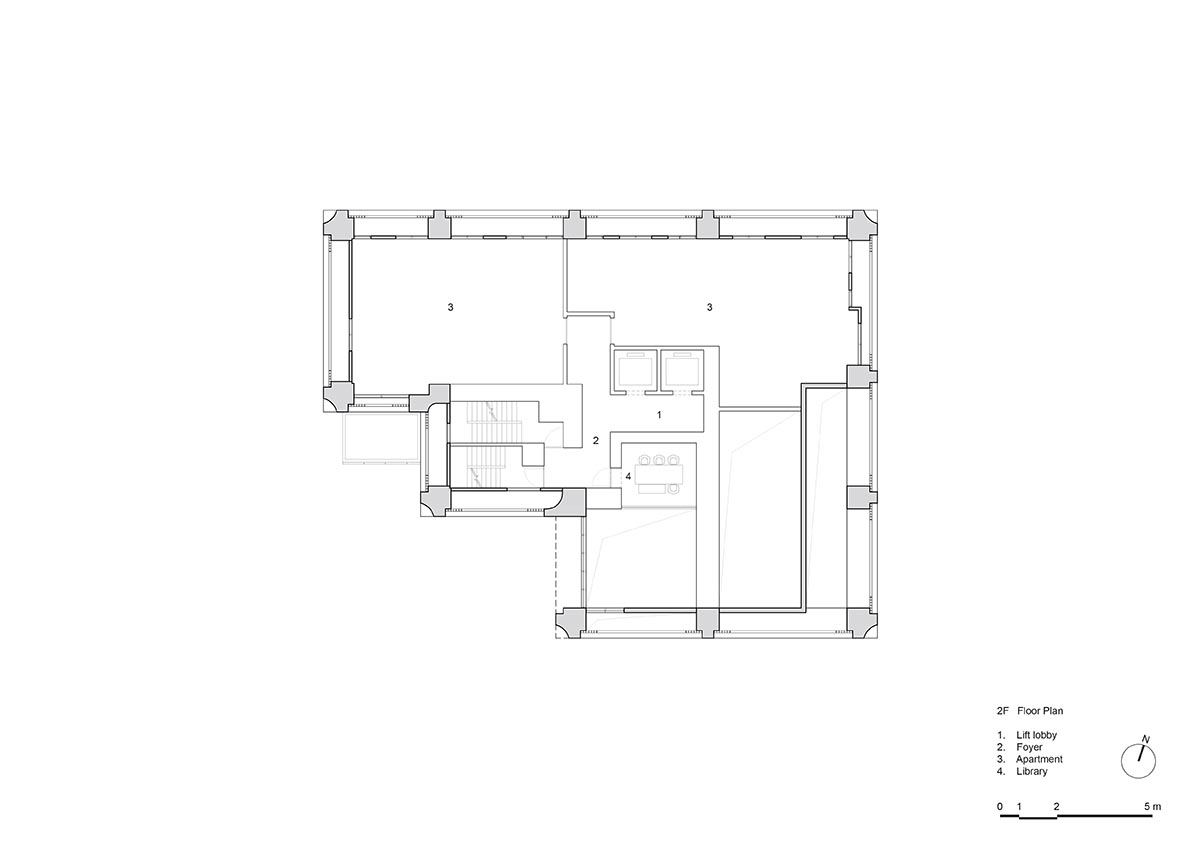
A tiny library with a broad arching proportion that is evocative of the arcades found in historic buildings is situated on the second floor and looks out over the lounge.

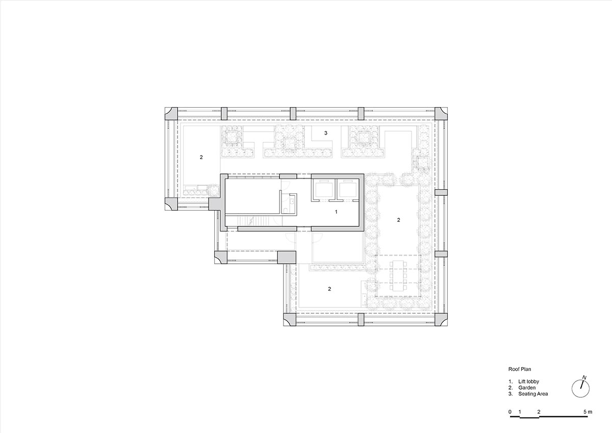
A gym and a number of outdoor areas, including a pet area, a yoga platform, a small seating area, and an outdoor kitchenette and events area are among the rooftop features.
These areas are all surrounded by lush vegetation and offer views of the majestic Yangming mountain and beyond.




Site plan

First floor plan

Second floor plan

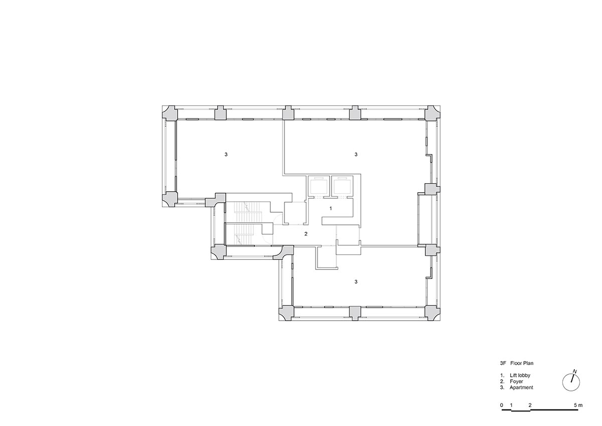
Third floor plan

Roof floor plan

Section AA

East elevation

West elevation

North elevation

South elevation
Neri&Hu created a cafe in Shanghai that evokes the feeling of a home for coffee roaster brand Blue Bottle Coffee. In addition, the firm designed a pair of stores that feature a wooden house and a concrete dwelling inside the structures.
Project facts
Project name: The Lattice, Zhishan Residences
Architecture Design: Neri&Hu Design and Research Office
Interior Design: Neri&Hu Design and Research Office
Location: 200 East Dexing Road, Shilin District, Taipei
Date of Completion: December 2023
Client: Continental Development Corporation
Project Type: Architecture, Interior Design, Furniture
Site Area: 1,309m2
Gross Area: 8,485m2
Partners-in-charge: Lyndon Neri, Rossana Hu
Associate Director-in-charge: Nellie Yang
Design Team: Michael Yang, Rosie Tseng, Yin Sheng, Greg Wu, Ellen Chen, Jerry Guo, Chaofu Yeh, Lili Cheng, Becky Zhang
Consultants and Suppliers
Art: The Artling
FFE: Design Republic
Local Architect of Record: C.T. Chen & Partners
Construction: Continental Engineering Corporation
All images © Studio Millspace.
All drawings © Neri&Hu Design and Research Office.
