Submitted by WA Contents
Soar Design Studio adds greenery and smooth surfaces to chocolate store offering garden-like space
Taiwan Architecture News - Apr 26, 2021 - 14:01 5061 views

Taiwanese architecture firm Soar Design Studio has added a plenty of greenery and landscape to the interior of a chocolate specialty store in Taipei City, Taiwan.
Named Terra Bean to Bar, the 120-square-metre store also features fixtures and displaying shelves made of smooth surfaces, the space pretends a feeling like walking in mini garden.
Presenting a cozy and intimate atmosphere, for this project, the studio converted the first floor of a 30-year-old apartment building for this project, the building is located at the corner of the old community with the main concepts of "nature invading the indoors" and "BAR in the rainforest", combining various natural characteristics and elements to present the overall space.

"The chef travels around the world to search for all kinds of cocoa beans, from South America, India to Asia and other places," said the architects.
According to the studio, "From bean to bar" was a key design component for the brand in this project to allow "customers to taste the most original flavor of cocoa at the beginning, and to enjoy its derivative desserts and drinks or chocolate liquor and other products."

"Dismantling and exploring the essence of chocolate desserts and drinks is actually "experiencing nature". We turn cocoa beans, the fruit of nature, into various foods."
"The taste of the fruits produced in different countries and regions vary, reflecting the difference in climate and soil, sunshine and other natural factors. In addition, in the interview with the owner, the owner reflected his experience in the agricultural technology teaching group in Central and South America and living in the forest."
"These all induced our hope that the design of this room can be more "natural", added the studio.

For the project, the architects recessed the original indoor area by 1.5 to 2 meters and piled up mounds, planted plants, by using soft design techniques to create a garden-like space on the ground floor of the old apartment.
"We intend to reshape the image of the corner space and be friendlier to the community," said the architects.
"By adding more greenery and landscape, and even leaving the front yard entry for community residents to stop and rest, this allows the new brand to commingle with the community through an inviting image and spatial style, giving the commercial space a much warmer sense of community and locality."

The architects wanted to let the commercial space be more integrated into the local community.
Inside, the recess space becomes an outdoor dining area, but plants and mounds act as boundaries, allowing users to experience the feeling of being surrounded by nature, but not excessively dividing the overall space, just the feeling of being in nature.

Although the space seems to have boundaries, but they are connected to each other. Thanks to these retracted surrounding corridors, light and wind can easily enter the ground floor.

The sunlight enters freely into the space through branches and airflow, as the team explians, this creates a more comfortable base microclimate and allows users to be surrounded by plants and enjoy meal time.
The store's theme is described as "Nature Invading the Indoors" as much of greenery runs through the entire space. "We let the outdoor plants and mounds extend into the interior, and the "Natural Spread" design technique makes the indoor atmosphere more natural and blurs the boundary between indoor and outdoor," said the studio.

"This extends the sense of vision and creates the feeling of "plants and nature spreading from the outside to the inside" and "being surrounded by nature" for indoor users."
"Through radioactive graphic design techniques, the planting mounds, display racks, etc. are all directed to the indoor bar, which can also be understood as diverging from the bar as the center."

"This design technique allows the visual sense of the indoor users to extend outward, resulting in visual fluidity, magnifying the space experience and making the mood more free; while for the outdoor personnel, it creates a visual attraction effect like a single point of elimination, increasing the curiosity of passersby," continued the architects.
The studio also created the moving lines in the form of twists and turns like the "rainforest" path in the natural environment, and the whole scheme is envisioned as a combination of several circulating moving lines.

Aiming to offer some surprising spaces for customers, the architects created a nonlinear walking path in the space which makes people unable to directly feel the extent of the space.
As the team highlights, the walking experience inside is more natural and interesting, and it also makes the space more fluid.
For material choice, for the exterior wall the team used the transparent glass to strengthen the design intent since it aims to blur boundary between the interior and the exterior.

While the solid wood frames and the transparent display shelf symbolize the visual sense of the natural forest, the curved glass exterior wall reflects the fluidity of the space.
The overall color plan of the interior is derived from "soil", echoing the theme of natural fruits, and used cocoa bean fruit to design display stands, cake cabinets and bar counters."

"The bar counter is also made using the ground fruits and shells of cocoa beans as paint, which we invited the chef to paint with us by hand, creating more natural texture and adhering to the natural theme."

To extending the concept of the brand "Bean to bar", the studio used "from nature to space" to develop a variety of design techniques, from creating a friendly community space, an overall natural atmosphere, to a better base micro-climate, hoping to bring more possibilities to the space and the community.












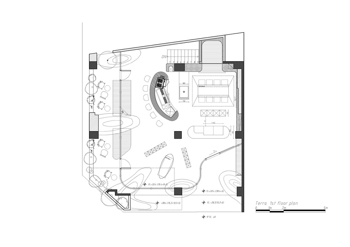
Floor plan. Image © Soar Design Studio
Project facts
Project name: Terra Bean to Bar
Architects: Soar Design Studio
Location: Taipei City, Taiwan.
Size: 120m2
Date: 2021
All images © Hey! Cheese
> via Soar Design Studio
