Submitted by WA Contents
ADEPT selected to transform former Karstadt warehouse into a cultural hub in Braunschweig
Germany Architecture News - May 22, 2025 - 14:57 5714 views

Copenhagen and Hamburg-based architecture office ADEPT has won an international competition to transform a former Karstadt warehouse in a historic area of Braunschweig (DE) into the "Haus der Musik".
Called Haus der Musik, the 18,000-square-metre cultural hub will house a new concert hall, a public music school, and other community-oriented programs.
The winning project is founded on adaptive reuse principles rather than demolishing the current structure. The old building's architectural rhythm and load-bearing structure are preserved and reactivated.
On top of the existing volume is a brand-new, precisely calibrated performance hall, and street level provides direct access to music school activities. From a commercial hub to a cultural hub, the design embodies a daring urban metamorphosis grounded on continuity.

"The Haus der Musik is a dream project – not just because of its scale, but because it allows us to bring together everything we care about: transformation, sustainability, as well as social and urban social value," said Martin Krogh, founding partner at ADEPT.
"This is the largest project in our studio’s history, and undoubtedly one of the most meaningful," Krogh added.
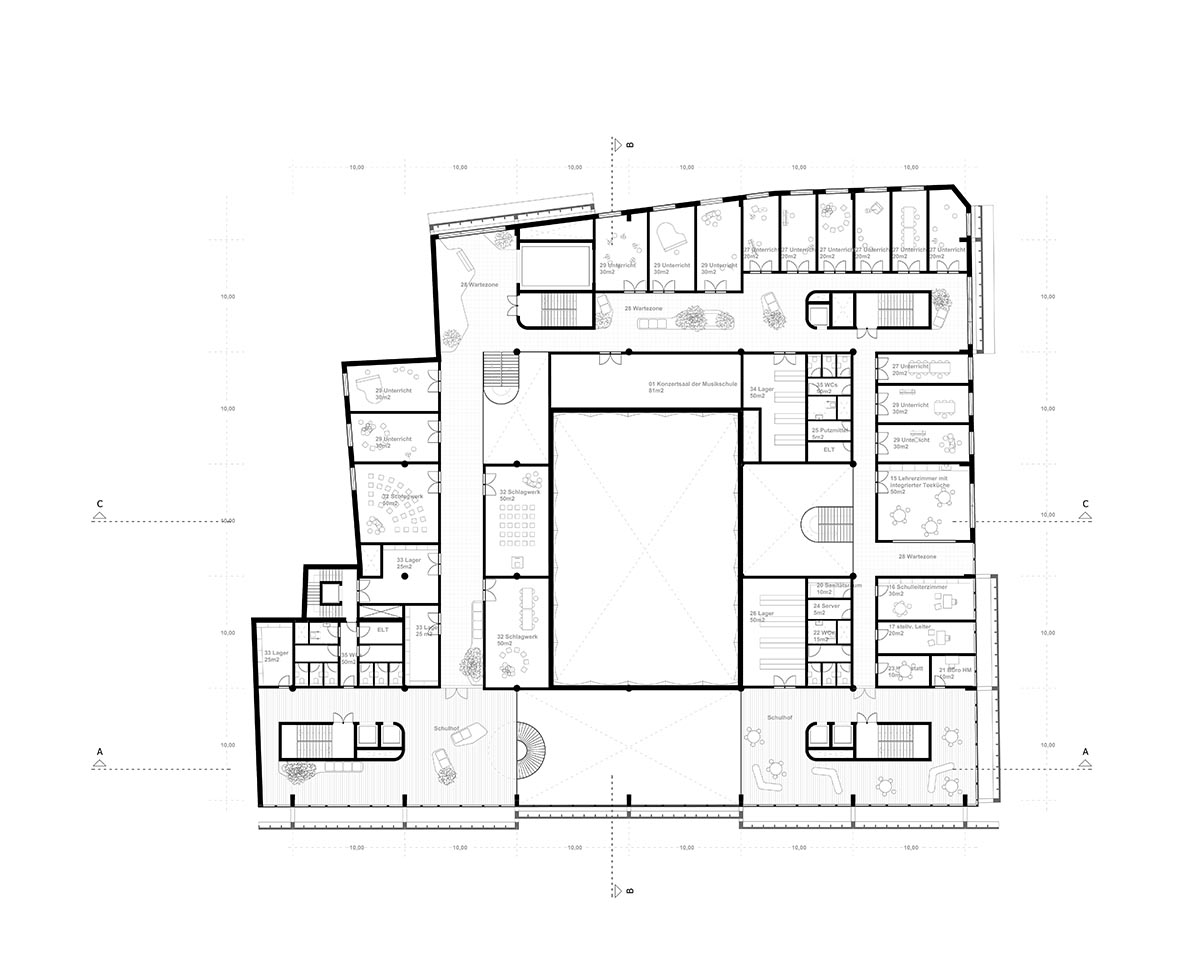
The "Third Place"—that vague, largely unplanned area between activities that creates a vast possibility for a new identity emerging from the neighborhood—is the focal point of the transformation. Arrival, music school, and concert hall are all connected by this multi-layered social landscape of performance, instruction, and gathering.
Because the music school is integrated into the existing framework, it fosters a vibrant, all-day rhythm of instruction, practice, and casual conversation. Below it, the Klangkeller provides an unpolished and adaptable platform for underground scenes and experimental music.
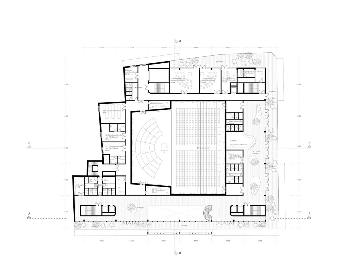
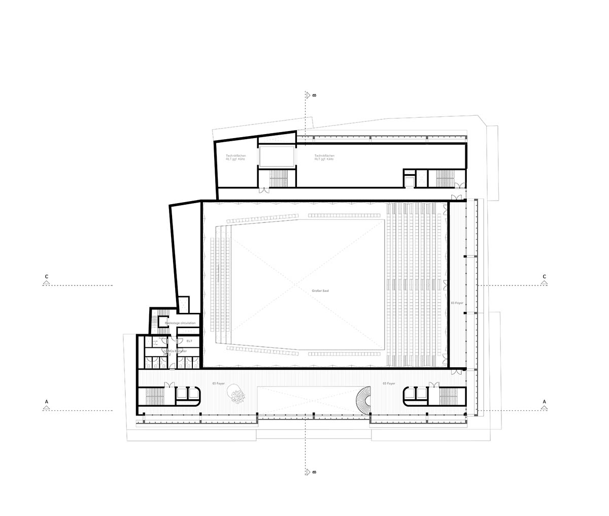
With meticulous consideration for acoustic clarity and spatial intimacy, the new music hall is built as a traditional shoebox typology and is situated in the top levels of the building to retain as much of the old structure as possible. Adjustable ceiling components enable custom tuning based on the performance situation, including organ music and amplified events, while sound-reflective wall and ceiling panels distribute sound uniformly around the room.

Both the main floor and the upper balconies provide direct sightlines and engulfing sound to the audience. Rehearsal rooms and backstage areas flank the hall, facilitating a smooth transition between rehearsal and performance. The music hall is further reinforced as a municipal venue by the 270-degree panoramic terrace that encircles the foyer and provides public views of the city.
"With equal measures of caution and courage, the winning proposal transforms the existing building through adaptive reuse into an important component for Braunschweig's city centre, as well as for the city’s musical landscape," the jury stated.
"The difficult balancing act between preservation, transformation and innovation has been convincingly achieved."
"Even if the interpretation and conceptual reuse may seem surprising at first glance, the contextual integration is comprehensible, sensitive and convincing," the jury added.

Site plan
Urban Presence: A Cultural Link Within the Historic City
The Haus der Musik acts as an essential urban connection between Altstadtmarkt and Kohlmarkt, two important public squares in Braunschweig, and is located along one of the city's main pedestrian thoroughfares.
The project creates a new cultural hub in the urban fabric by reactivating the ground floor with a completely transparent façade and opening up to the city through spacious patios and foyers. It extends beyond its plot to create sightlines, pathways, and gathering spots across the city.
The design adds a new public vitality that enhances the old town's civic life while honoring the scale and rhythm of its historic surroundings.

Ground floor plan
The building's articulated façade and stepped form blend in with Braunschweig's urban profile while quietly indicating its new function as a gathering place for people to enjoy music and social interaction.

First floor plan
Using a Modern Language to Interpret the Past
Redesigning the facade as a reinterpretation of the current building while honoring the historic setting and its distinctive buildings to create a new identity is a crucial architectural gesture. The new facade reworks the original's modular rhythm to create a tactile, sculptured enclosure.
Views into the activity within the building are made possible by the dynamic interplay of light and shadow created by the cascading pieces. The ground floor's transparency invites the public in by blurring the lines between the interior and the city.

Second floor plan
Warm timber interiors frame the building's social center, while the structured facade echoes Braunschweig's medieval roofscapes.
Materiality is crucial in defining atmosphere and character. In order to preserve important sightlines and blend in with the surrounding urban fabric, the new volume gently recedes from the original cornice lines.

Third floor plan
Building on What Already Exists
In this initiative, sustainability starts with what currently exists. By preserving and reusing the Karstadt building's structural grid and core, demolition and the resulting carbon effect are avoided.
With little alteration to the existing foundations, a lightweight music hall made of steel and wood is constructed above. Cross-laminated wood (CLT) components that are prefabricated enable low-emission and rapid installation.

Fifth floor plan
By incorporating rooftop photovoltaics and utilizing Braunschweig's low-emission district heating network, the building runs with exceptional energy efficiency.
Comfort is maintained while energy consumption is reduced through the use of passive cooling techniques and intelligent ventilation. Demand is further decreased by localized heating systems and water-saving devices.

Basement floor plan
The result is not merely a monument for music and culture – but a showcase of how architecture can be both ambitious and responsible, rooted in the past and ready for the future.

Elevation Brabandstraße

Elevation Jakobstraße

Elevation Poststraße

Facade section existing

Facade section ADEPT

Section AA

Section BB

Section CC

Axonometric drawing

Concept, existing as starting point

Concept, community functions as connectors

Concept, concert hall in new construction

Concept, concert hall construction
ADEPT and LYTT Architecture completed visitor points reframing largest landscape park in Copenhagen, Denmark. In addition, ADEPT and Karres en Brands revealed plans for a new masterplan, called WoodHood – Garden City 2.0, in Köln, Germany.
Project facts
Project name: Haus der Musik
Architect: ADEPT
Client: Friedrich Georg Knapp w. Stadt Braunschweig
Engineers: Assmann Beraten und Planen, Corall Ingenieure, Avissplan
Address: Poststraße Braunschweig, DE
Size: 15,000m2 + 3,000 under ground
All images © Aesthetica Studio.
All drawings © ADEPT.
> via ADEPT
