Submitted by WA Contents
David Chipperfield Architects releases new images for Edingburgh Music Venue
United Kingdom Architecture News - Aug 28, 2018 - 06:03 18189 views

David Chipperfield Architects has released updated images for Edingburgh's new Music Venue, as the firm has recently submitted its planning application to the city council.
Called Edinburgh music venue or The IMPACT Centre, the new music venue will be a new home for the Scottish Chamber Orchestra, with its 1,000-seat auditorium and a 200-seat studio for performance, recording and rehearsals, as well as an educational outreach programme.
Commissioned by the IMPACT Scotland, Chipperfield's studio first unveiled preliminary design earlier this year, but now the new renderings show a more temple-like concert venue featuring variations of sandstone colors on its façade.

Upon completion in 2021, it will be Edinburgh’s first dedicated new space for music and the performing arts in 100 years.
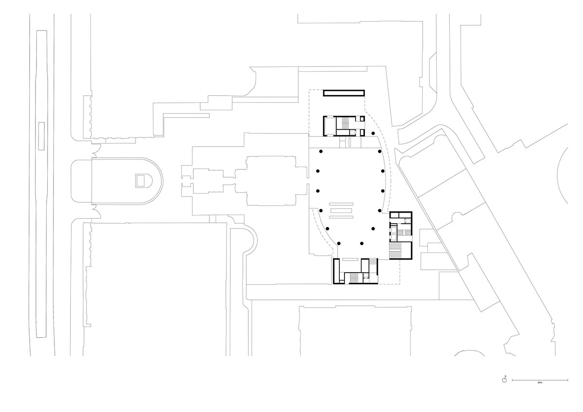
Located within Edinburgh’s UNESCO World Heritage Site at the eastern end of its Georgian New Town, the new venue will be replaced with an unremarkable office building and abut the rear of the Grade-A listed Dundas House (1771) on St. Andrew Square.

The building seeks to do two things on an urban level: it will resolve the immediate urban conditions of the site, which is relatively concealed and at the intersection of several distinct neighbourhoods; and provide a fitting terminus at the end of George Street, the New Town’s principal axis, in a position where a grand public building was originally intended to be built.

The studio scatters the building’s functions within three simple, compact and intersecting volumes. Described as "a pure oval volume", its shape and scale are arranged by the acoustic requirements.
"Its elliptical form is topped by a shallow dome – an urban gesture which terminates the axial view west along George Street, with Dundas House prominently in the foreground. The venue’s overlapping lower volumes are orthogonal in form and house its ancillary and public functions," said David Chipperfield Architects in a project description.
"These help to reduce the overall mass of the building and anchor it within the scale, geometry and atmosphere of the surrounding streets and neighbouring buildings. Overall, the venue seeks to form an urban composition centred around Dundas House, in balance with the prominent civic structures at the opposite end of George Street."

The architects aim to related the façades of the new venue to the architecture of the New Town in both their order and materiality. The expression of a base, middle and top, found on other neoclassical buildings, is picked up by the composition of the venue’s massing while the texture and tone of its concrete picks up the various sandstones found in the New Town. The metal-clad dome completes the crown of the building, announcing its public nature and aligning with the other civic buildings across the city.

"In vertical arrangement, the main concert hall is lifted above the ground, freeing the entire entrance level for an open foyer with three entrances addressing the different approaches. This continuous ground plane increases permeability across the previously closed off site and seamlessly unites the venue with the diverse urban conditions that surround it," added the studio.

"The foyer will be a new public room for the city, open outside of performance hours. It encompasses all the main public functions of the venue: information, ticketing, cloakroom and café, and can host informal performances, exhibitions and events. A fourth entrance, directly from the grand domed banking hall of Dundas House can be used for special gatherings or ceremonial openings."

From the foyer staircases lead up to the main concert hall or down to the studio at basement level. Corridors wrap around the main auditorium at each level, providing access, acoustic isolation and break-out space.
Around the upper level, a colonnaded promenade directly below the dome offers visitors a meeting space with 360 degree views of the city. Terraces to the north and south, on the roofs of the secondary volumes provide open-air gathering spaces.




David Chipperfield Architects designed the Nobel Center in Stocholm but the project has recently been halted by a Swedish Court as the project could "cause significant damage" to the preservation of Blasieholmen's cultural heritage and environment.
The studio also released new design to expand Turner Contemporary Art Gallery with new hostel in Kent.
Project facts
Project start: 2017
Completion due: 2021
Gross floor area: 10,000m2
Client: IMPACT Scotland
Architect: David Chipperfield Architects London
All images © Hayes Davidson
