Submitted by WA Contents
Koichi Takada Architects creates a sculpted form made of hand-brick material for new tower in Sydney
Australia Architecture News - Feb 06, 2019 - 06:27 29167 views

Sydney and Doha-based architecture firm Koichi Takada Architects has completed a new mixed-use tower in the center of Sydney, the buildings are made of a sculpted form of a hand-made brick materials that expands historic buildings in the streetscape.
Called Arc, the project was designed for Crown Group, a reputation for building high quality luxury apartments in Australia. The project provides an iconic and innovative ‘archway’ to the western fringe of Sydney’s CBD.

Image © Tom Ferguson
Located in a key heritage precinct in Sydney’s CBD, the architects designed the building to reactivate its surroundings and extend to the broader urban context, ultimately reshaping and softening the city’s skyline.
The building, encompassing a total of 17,400-square-metre area, comprises 135 apartments, 86 ‘Skye Suites’ boutique hotel rooms, 8 retail units and F&B outlets.

Image © Tom Ferguson
The architects were inspired by the masonry character of significant heritage buildings and their characteristic arches, a duality is introduced to the façade, represented by the varied aesthetics of the podium and tower.
Informed by the curvilinear nature of Australia and the brickwork in neighboring buildings, the materials and details of Arc by Crown Group have a level of intricacy and authenticity that enrich and invite a heritage appearance.

Image © Martin Siegner
"Everything you see in Sydney is very feminine, very curvilinear. So beautiful. We should be connecting to that. It became a conscious decision to crown the building with an architectural feature that relates to how people perceive Sydney," sayid Koichi Takada.
"We have taken a risk, and hope others will read this as a message to take one too."
Responding to a challenging brief, Koichi Takada was able to compose a structure of balanced confronting forms and materiality. The tower, when viewed from within the through-site link and surrounding vantage points, sculpts the city skyline.

Image © Martin Siegner
Offering multilevel experiences, the residential lobby is decorated with reference to the rooftop arches. The glass lifts are south-facing towards the bottom of the tower then swaps and reveals unframed views of the north towards the top, while offering further connection with the surrounding landscape and city.
The architects used the rich-red, earthy, textural tones of the exterior to be complemented by smooth greys, mirrored surfaces and white within the interiors. Throughout, materials are honest and emphasize the skill of passionate and experienced craftsmen.

Image © Tom Ferguson
The through-site link comprises an 8 story atrium and is designed to enrich and regenerate public amenity in this area of the CBD. The sculptural tower element floats above the podium, shaping the skyline with a gentle and organic form.

Image © Martin Siegner
Organizing a total of 220 Apartments (including 42 serviced apartments), the architects' scheme focuses on a design that enhances both public and residential amenity.
A ground plan opens to Kent and Clarence St, with an arcade activated by retail and commercial uses. The apartments on the lower levels are protected by recessed balconies, defining a visual and spatial identity similar to a New York loft.

Image © Tom Ferguson
"The design is exciting, innovative and unique and is intended to set a new benchmark for architectural design in the western skyline of Sydney’s CBD. It represents a shared outcome that captures the objectives of the council controls while allowing an imaginatively refined design," added the firm.

Image © Martin Siegner

Image © Tom Ferguson

Image © Tom Ferguson

Image © Martin Siegner

Image © Martin Siegner

Image © Tom Ferguson

Image © Tom Ferguson

Image © Tom Ferguson

Site plan

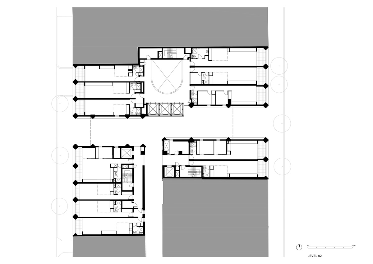
Second level plan

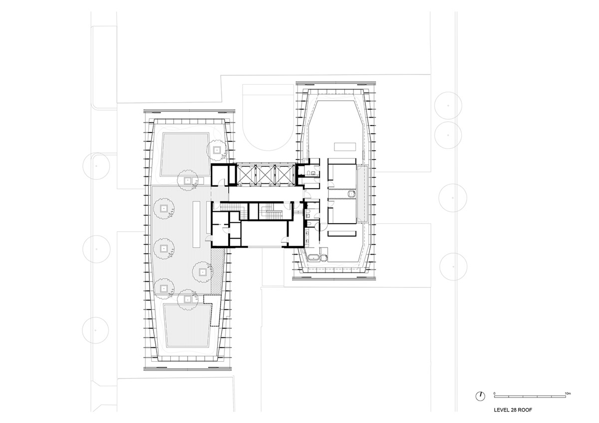
Twenty-eight level plan

Section-1

Section-2

Rooftop arch detail

Project facts
Project name: ‘Arc’ by crown group
Project location: Sydney, Australia
Architect: Koichi Takada Architects
Top image © Tom Ferguson
> via Koichi Takada Architects
