Submitted by Sophia T
GFD from China Introduced Aesthetics Inherited from Song Dynasty into an Experience Center
China Architecture News - Dec 14, 2018 - 05:49 19188 views

Jiuxi, a scenic spot on the west side of West Lake in Hangzhou, boasts fantastic natural landscape and cultural relics, and presents a poetic lifestyle. Connecting Qiantang River and West Lake, it integrates picturesque mountains and rivers with the aesthetics inherited from Song Dynasty. The name of the project is derived from the Jiuxi Scenic Spot. Based on the local environment and culture, GFD, an interior design firm based in Hangzhou, China, designed a multifuncational space that displays Oriental charm in contemporary context.




The courtyard features a mirror-like pool, a tree and a rock-shaped sculpture. With simple lines and well-arranged structure, it shows a minimalist style in design, presents a fascinating view similar to the West Lake, and generates a tranquil and elegant environment.
The pool, constructed with black granite tiles, adds peacefulness to the space and reflects the landscape surrounding it. People can have a different view at each step. The grotesque sculpture, resembling a rock, is made of stainless steel with mirror finish. It faces a century-old myrtle tree, behind which is a row of glass grille that forms the wall, with both contemporary and traditional characteristics.


The giant arc-shaped glass wall is a very eye-catching part in the courtyard, and also the window to look out from the interior space. Without any frame or column, the magnificent glass wall interacts with the reflecting pool and results in a transparent space.






Life experience club:
The space is dominated by light gray color, embellished with white and gold elements. The clear layering and grain in the space are highlights of the overall spatial design, together generating a calm and restrained atmosphere.
Four screens with ink and wash painting form a cuboid structure that hangs from the ceiling, which improves the artistic quality of the space and also shows the beauty of "blanking leaving" in Chinese paintings. Besides, marble-made end tables and square tables and other ornaments in the space all have the ink and wash grain.


The Neo-Chinese-Style artworks add traditional charm to the space.






Front desk & display space:
The dark wooden grille is perfectly matched with large areas of gold, silver, and gray within the space. Gray marble was used as the flooring material. Orderly arranged thin metal bars, combined with Neo-Chinese-Style artworks, make the space classic yet modern. The area for displaying the property model is also filled with an elegant atmosphere.




Underground spaces:
The underground floor consists of many amazing spaces with multiple functions, including reception room, gym, private dining space, chess & card room and more. The overall design follows the style of the ground floor space, full of serenity and elegance.
And the roof of the indoor heated swimming pool was designed by drawing inspiration from the dome of the Cathedral of Brasília, which can produce mysterious and visually pleasing lights and shadows.


This project well integrates Oriental aesthetics with contemporary context, incorporates the spirit of Zen, and shows an ideal life style in harmony with nature.

Elevation

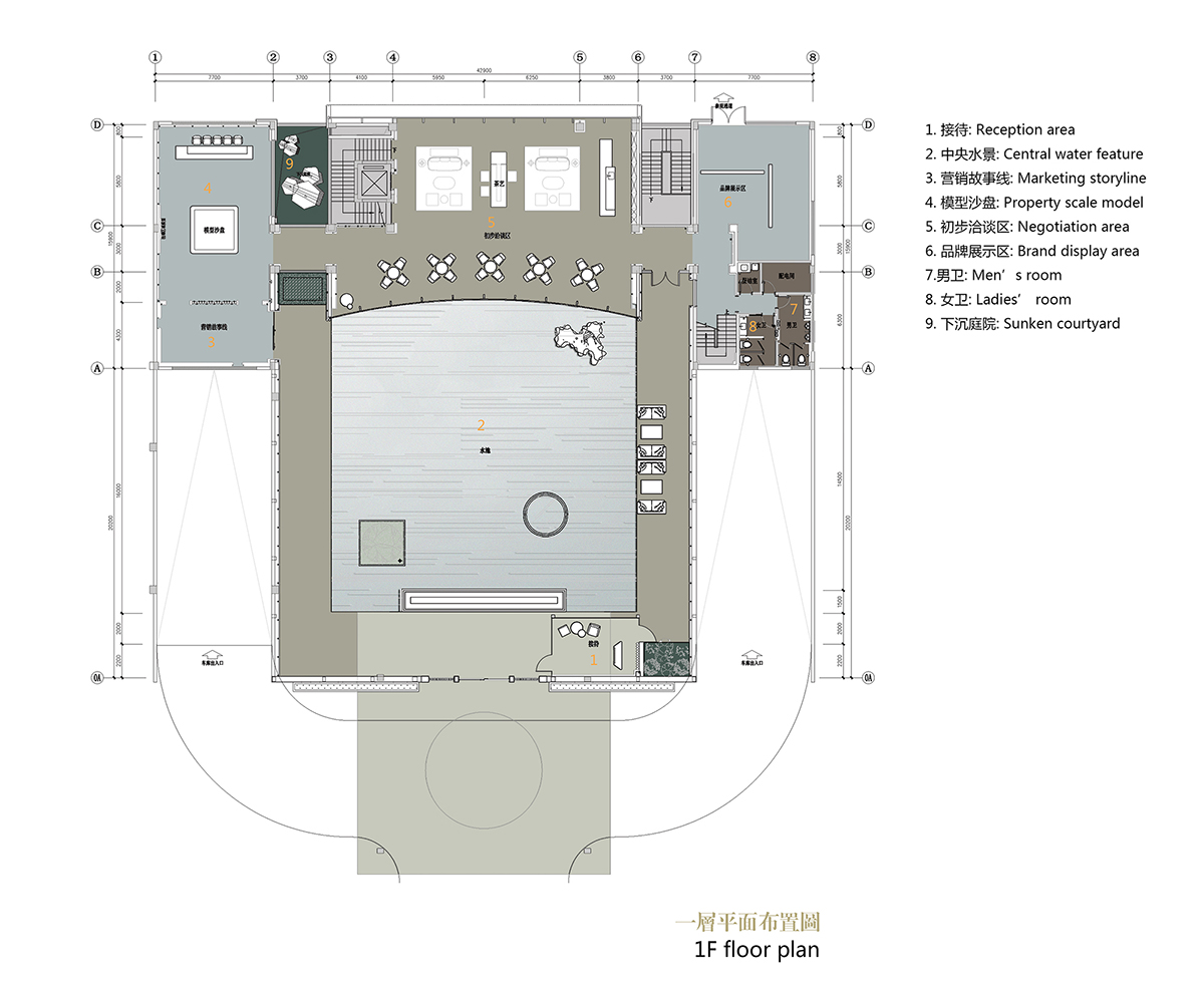
1F floor plan

-1F floor plan
Project facts:
Project name: DOTHINK · JIUXI ELEGANT MANSION Life Experience Center
Project category: Sales centre and property owners' club
Project location: Zhuantang Sub-district, Xihu District, Hangzhou City, Zhejiang Province, China
Client: Zhejiang DEHONG Real Estate Co., Ltd.
Interior design: GFD
Interior design supervisor: Ye Fei
Chief interior designer: Chen Chengxi
Interior design assistant: Meng Lanying
Architectural design: DOSYSTEM
Landscape design: DAHD Pty Limited
Area: 1500 m2
Completion time: October 2018
Main materials: Dora cloud gray marble, Moca Creme, Bronze, Italy paint
Photographer: Liu Gangqiang
Text: Tang Zi
Disclaimer: Interior decoration of the project was entrusted to other parties by the client.
All photos © Liu Gangqiang
> via GFD
