Submitted by WA Contents
BIG creates "wooden hillside" for new housing in Stockholm
Sweden Architecture News - Nov 09, 2018 - 04:02 22253 views

Bjarke Ingels' firm BIG has completed a new housing in Stockholm, Sweden, pretending like it is ascending from the gound with recessed wooden volumes.
Called 79&Park, the 25,000-square-metre building is located on the edge of Gärdet, a treasured national park. "Kullen makes conscious decisions to provide a sensitive, respectful form while allowing the same choices to simultaneously manifest as exceptional residences with spectacular views," stated the architects.

To give a direct response to the context, the architects explained that the northwest and southeast corners take the heights of their immediate neighbors; while the northeast corner, farthest from the park and nominally with the worst view. The building is pulled upwards to grant it the most spectacular views of park and port.

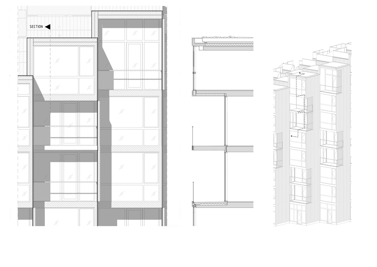
The apartment building is comprised of a series of wooden volumes recessed towards back, creating a zigzag appearance in total. The southwest point of the building extends farthest into Gärdet; and to create a humane edge between building and nature, is pushed down to the lowest profile, transforming it into a public platform with a 270 degree view of parkscape and simultaneously freeing the majority of the residential units to views of the park.

The same move also ensures that the central courtyard will always receive copious amounts of sunlight. In further deference to Gärdet, the massing is visually reduced through a language of pixels, scaled to the human form.

"79&Park is conceived as an inhabitable landscape of cascading residences that combine the splendors of a suburban home with the qualities of urban living: the homes have private outdoor gardens and penthouse views of the city and Gärdet," said Bjarke Ingels, Founding Partner, BIG.
"The communal intimacy of the central urban oasis offers peace and tranquility while also giving the residents a feeling of belonging in the larger community of 79&Park," he added.
"Seen from a distance, 79&Park appears like a manmade hillside in the center of Stockholm."

This manipulation of the volumes not only allows for a more organic expression, perfectly reflecting the surrounding landscape, but also provides a way to accomplish the building topography in a controlled and inexpensive way through the use of prefabricated units of standardized sizes.























Project facts
Project name: 79&Park
Architects: BIG
Location: Ladugårdsgärdet, Stockholm, Sweden
Partners in Charge: Bjarke Ingels, Jakob Lange, Finn Nørkjær
Project manager: Per Bo Madsen
Project Leader: Cat Huang
Area: 25000.0 m2
Year: 2018
All images © Laurian Ghinitoiu
All drawings © BIG
> via BIG
