Submitted by WA Contents
Lafayette and KCAP win competition to transform military land into green masterplan in France
France Architecture News - Feb 02, 2022 - 12:57 1862 views

Paris-based architecture and urban design practice Lafayette and leading international architecture firm KCAP have won a competition to transform an existing military land into a green masterplan in France.
Dubbed Tours Nord, the 700-hectare masterplan, led by Lafayette, in collaboration with KCAP, is designed with teams Etablissement, Elioth, Suez, Ville en Œuvre, Mint and E.Co.
Launched by Tours Métropole, the new masterplan consists of a design of an inter-communal site surrounding the area around Tours Val de Loire Airport which serves as a passenger hub and until 2021 also as a military base.

The overhaul plans include the transfer of aeronautical activities from the base and the return of 200-hectares of military land to the community.
With the new masterplan, Tours Métropole intends to rethink the entire airport area, and to include it in the urban renewal process yet under way in the north-east of the city.
The masterplan will tackle with a number of issues currently affecting the area. While the new masterplan proposes new forms of urban development that accommodate a more natural use of land, it aims to "transform monofunctional industrial sites and wants to shed new light on mobility at the edges of the urban fabric, and looks to enhance the ecological continuity and biodiversity."

Tours Nord is derived from the juxtaposition of large monofunctional, economic, commercial and residential areas and infrastructural divisions, typical incorporating features of 20th century planning.
It will include a new tramway line which has already initiated a partial regeneration of the urban fabric, but it is said that "it cannot succeed to improve the cohesion and sustainability of the area on its own."
According to the team, Tours Nord needed a new urban model, based on the site's intrinsic qualities.

As part of the masterplan, the plans revives part of the air base’s tarmac into a large park, which is aimed to reinforce the existing green and blue network and revitalise the neighbourhoods around the site.
"The availability of land offers an unprecedented opportunity to develop a vast public space for current and future users," said KCAP in a project description.
"This unique park, based on the existing airport elements, will bring the city of Tours back to its historical garden tradition," the office added.
Meanwhile, the park will act as a catalyst for new programs in its surroundings, meeting both the needs of the inhabitants and the military.

Masterplan
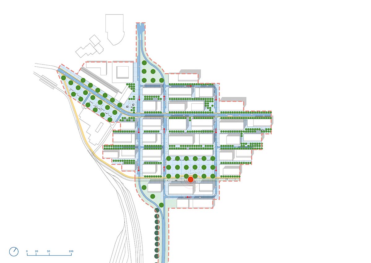
The plans will contain a mixed-use district that crosses the road infrastructure and links the airport area to the Hauts de Sainte-Radegonde neighbourhood. The redesigned airport parvis faces the park and offers new life for the historic aircraft hangars.
The design team designs a new residential district, served by public transport, complements the restructured military base.
A new industrial research centre is proposed on the brownfield site along the runway, while the new centre will be connected to a photovoltaic production network. "This centre has the potential to become a privileged location for the regional green hydrogen S2E2 sector," according to the team.

Plan 1.2000, quartier 1
The park is conceived as part of a productive landscape “loop” around the airport.
The existing agricultural land is known as a precious reserve, and intended to contribute to Tours Métropole’s objectives for food autonomy and carbon neutrality by 2040.

Plan 1.2000, PEM
The urban plan preserves these fields in their entirety, guides them towards a transition of the current agricultural model and makes them accessible to the inhabitants of the city.
Innovative green spaces will be the driving force behind the renewal of the airport area, improving the quality of life for the citizens of Tours Métropole.

Plan 1.2000, quartier 2

Plan 1.2000, pole-recherche
Project facts
Project name: Tours Nord
Location: France
Design Team
Lafayette, Paris (urban planning and urban design, leading architect)
KCAP, Zurich (urban planning and urban design)
Etablissement, Paris (landscape architect)
Elioth, Paris (environmental engineering)
Mint, Mechelen (mobility and transport planning)
Suez Consulting (infrastructure engineering)
Ville en Œuvre (real estate strategy)
eCo (urban strategy)
Client: Tours Métropole
Program: Strategic masterplan for the redevelopment of the Tours Val de Loire airport sector
All visuals © Filippo Bolognese Images – Lafayette.
All diagrams and drawings © Lafayette.
> via KCAP
