Submitted by WA Contents
IARA rediscovers community with the Rural Memory Museum in Fengwu Village
China Architecture News - Jul 14, 2025 - 10:22 2585 views

Beijing-based architecture studio IARA Design and Research Office has built a community museum with whitewashed high walls that blend into the village texture in Yixian, Huangshan City, China.
Named FW JI· The Rural Memory Museum, the project is situated in Huangshan City's Fengwu Village, Biyang Town, Yixian County. Yixian County, which includes the well-known old villages of Xidi and Hongcun, is known for its rich natural landscapes and cultural legacy, making it one of the best-preserved regions of traditional villages in southern Anhui.

Bird's eye view. Image © Yi Huang
Despite its picturesque setting, Fengwu Village lacks the preservation of many of its historic structures and faces issues that many rural communities face, including population decline, aging populations, inadequate public infrastructure, and a dearth of cultural events.
The project creates a contrast to other cultural villages in the county. How can a typical community like this be made more lively through design? "Fengwu JI" was introduced in 2023 as an initiative for rural rehabilitation.
The initiative uses spatial design to bring together people and stakeholders from all sectors by fusing a global viewpoint with local context.

View of the building from the River. Image © Yi Huang
The project was designed to improve the lives of villagers, boost their well-being, and restore rural life through micro-renovations and cultural projects. Under this effort, the "Rural Memory Museum" is a significant subproject.
The location is in the center of the village, where a structure known as "Yingfengli" originally stood but eventually vanished, leaving only a small square with public exercise equipment.

View of the building from the village alley. Image © Yi Huang
However, in the hot and humid local climate, the area was largely used for drying clothing and meat because it was unsheltered. The objective is to use careful design to turn this abandoned location into a lively public area.
Utilizing local materials and modern design, the new building respects the village's heritage by covering the existing structure's footprint and blending in with the surrounding landscape.
In addition to being a site for tourists, the museum also acts as a hub for villager gatherings and spirituality. It serves as a sort of "new ancestral hall" for the modern rural community.

View of the building from the Rive. Image © Huien Song
The bottom level has been mainly left open as a semi-outdoor area for gatherings that are protected from the rain and shaded by the design, which moves the museum to the second story.
The building's J-shaped arrangement, which encloses a courtyard in conjunction with the nearby local clinic and northern dwellings, is inspired by the courtyard traditions of southern Anhui homes.
A reworking of the local vernacular, the elevated ground floor and open design create tiered, outward-oriented public areas by reversing the spatial relationship of typical inward-facing courtyards.

Espace public au rez-de-chaussée. Image © Yi Huang
While the inner courtyard has lightweight wooden walls, the building's façade includes whitewashed high walls that mix in with the local texture. Conventional elements, such as timber structure, white walls, and grey tiles, are employed but creatively modified.
The walls are made of local river sand, cement, and lime that have been hand-finished to resemble natural aging, drawing inspiration from the worn textures of old village structures and carbonized wood from years of exposure.
The carbonized layer produced by burning the wood panels adds resilience and evokes a sense of time.

Espace public au rez-de-chaussée. Image © Yi Huang
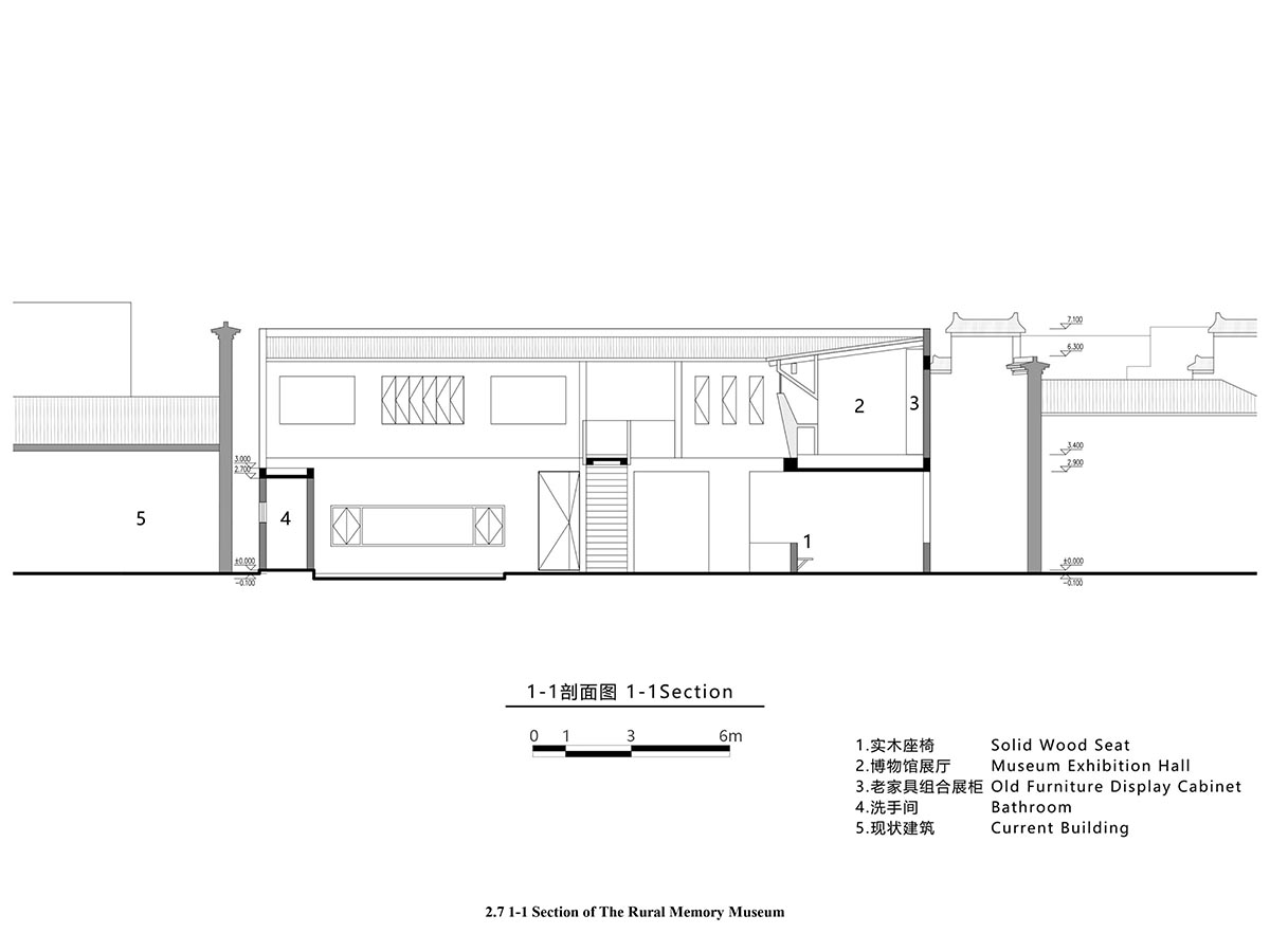
The "Rural Memory Hall," the "Future of the Village Hall," and a "Village Documentary Screening Room" are located on the second floor. The Memory Hall faces inward and has a calm mood thanks to its sturdy walls, wooden shutters, and concealed skylights that let light into the room through openings in the thick wall.
In contrast, the Future Hall has a lot of glass windows that let in the countryside.

Ground floor village daily life. Image © Yi Huang
The “Time Box,” a small 10-square-meter screening room, is completely covered in burned wood, and a solitary dangling lightbulb represents the village’s spiritual center.
The "Rural Memory Hall" features exhibitions that center on the "Poetry of Life," with personal tales and feelings serving as a common subject. The three segments of the exhibition—"Birth," "Growth," and "Inheritance"—which are based on the collection of treasured objects from the villagers—tell the story of life's journey from childhood to family life and, ultimately, to death.
Individual recollections are turned into a collective rural culture through this reenactment of the village's past, which also arouses memories and cultivates a sense of identity.

Ground floor village daily life. Image © Yi Huang
The Rural Memory Museum does not exalt static artifacts or great tales like traditional museum structures do. Rather, it honors common people with humane attention. It also serves as a location for festivals, weddings, funerals, and everyday pleasure.
The villagers spontaneously held two communal feasts on the bottom level even before construction was finished, which was precisely the result we wanted to see.

Ground floor village daily life. Image © Yi Huang
At the official opening of the museum, all locals were invited to join in another village feast. Here, new lives are born and old memories are preserved. Fengwu Village's new spiritual center is the Rural Memory Museum.

Ground floor village feast in the evening. Image © Team of Yizhe Zhang

The building at night. Image © Yi Huang

Bird's eye village feast in the evening. Image © Huien Song

Second Floor Rural Memory Hall Poetry of Life Exhibition. Image © Yi Huang

Second Floor Rural Memory Hall Poetry of Life Exhibition. Image © Yi Huang

Second Floor Rural Memory Hall Poetry of Life Exhibition. Image © Yi Huang

Second Floor Rural Memory Hall Poetry of Life Exhibition. Image © Yi Huang

Second Floor Rural Memory Hall Poetry of Life Exhibition. Image © Yi Huang

Second Floor Rural Memory Hall Poetry of Life Exhibition Detail. Image © Yi Huang

Second Floor Future of the Village Hall. Image © Ziyi Liu

Second Floor Corridor. Image © Yi Huang

Site plan, before after

Site plan

First floor plan

Second floor plan

Axonometric drawing

Exploded axonometry

Detail drawing

Section

Section

West elevation

South elevation

South elevation
IARA is an international team that combines design, research, teaching, planning, organization, and operations. It was co-founded in Beijing by Jingqiu Zhang and Lubin Liu.
Project facts
Project name: FW JI· The Rural Memory Museum
Location: Fengwu Village, Yixian, Huangshan, China
Owner: Biyang Township People's Government, Yixian Agricultural and Water Resources Bureau
Design Institute: IARA
Principal Architect: Lubin Liu, Jingqiu Zhang
Team members: Qinming Luo, Li Li, Yarong Zhang, Hui Wang, Yi Huang, Yue Wang
Exhibition and Visual Design: IARA Rural Revitalization
Lead Designers: Jingqiu Zhang, Lubin Liu, Sitian Zhang
Curatorial Team: Qinming Luo, Jiawei Song, Yuling Liu, Jiaxin Bao
Curatorial Text: Jingqiu Zhang, Lubin Liu, Jiawei Song, Taotao Zhou
Exhibition Visual Design: Jian Wang
Landscape Design: Wenjing Fang
Constructor: Huangshan Dehong Construction Engineering Co.
Construction size: 272.1 square metres
Structure Type: Reinforced Concrete Structure, Wooden Structure
Design time: 2023
Completion date: 2024
The top image in the article: Bird's eye village feast in the evening © Huien Song.
All images © Huien Song, Ziyi Liu, Yi Huang, Jingqiu Zhang, Team of Yizhe Zhang.
All drawings © IARA.
> via IARA
