Submitted by WA Contents
noa* converts 18th century hotel in Paris into an apartment with curved lines and scent of wood
France Architecture News - Jan 27, 2022 - 11:15 3786 views

noa* network of architecture has converted a 18th century hotel building in Paris into an apartment, featuring a warm atmosphere with curved lines and the scent of wood, where you feel immediately at home.
Named Nicolai Paris, the 168-square-metre space was transformed from an old hotel dating back to 18th century and was designed for a young Italian family in the heart of Paris, France.

Located in the 4th arrondissement of Paris, the apartment comprises warm tones and color palette, which makes its users feel like a home.
All materials and colors flow smoothly in the interior space, while keeping historical memories for its users.

The client asked the studio to design the interiors and help recreate the feeling of being at home. It was an exciting task for the studio, which deals with sensations, images and memories.
"Among the many facets with which Paris has established itself in the collective imagination, one cannot overlook the noble hôtel particulier, elegant family palaces dating back to the 18th century which rise proudly alone amid the urban fabric," said noa*.

One such building, the hôtel Nicolai, was the reason for noa*'s first site inspection in the Ville Lumière. The assignment was based on the renovation of a flat occupying part of the second floor and the attic to make it the new home of a young family.
Following the design philosophy that has always marked noa*’s approach, the interior designers began with a phase of research and intense dialogue with the client to ensure that the flat would tell their story in the best possible way.

The result was the outlining of a "nomadic spirit" of the owners as well as the recall during the first talks to an object which, for those who describe themselves as citizens of the world, has a strong symbolic meaning: the logarithmic spiral shell of the Nautilus: "The Nautilus is among the rare creatures to have survived the Cretaceous period," said the studio.
"This is said to be due to the shape of its shell, which allowed it to feel at home all the time - a shell designed so well it has made possible for a hermit crab to survive from the time of the dinosaurs to the present day."

The house was conceived as a shell, symbolizing domestic comfort, the studio brought together with Parisian inspirations and defined the project's refined and timeless character.
In the heart of the apartment, the curved line becomes the stylistic signature of the house: this undulating movement is also present in the spatial distribution, as the different functions of living naturally succeed one another.
The studio applied a tailored design to create a compact visual character, while remembering the building's past.

In choosing the fittings and designing the oak furniture, noa* wanted to convey the elegance of the Marais district, where the property is located, into the flat.
The colour of the blue-grey marble, the fabrics of the cushions and upholstery, the choice of materials and colours for the floors, ceilings and walls are all inspired by the roofs of Paris.

The ground floor has a service and guest entrance. From both perspectives, the chromatic and material division of the floor stands out: the living area is in bleached oak parquet in a French herringbone pattern, while the circulation corridor is in terrazzo.
This runway seems to divide the floor into two islands: on one side, a niche overlooking the Seine, where people can read or chat, furnished with oak seating and black leather cushions.

On the other side, the kitchen and living room area, where the gaze rests on the elegant grey- blue marble “Bardiglio Imperiale”, used for the fireplace cladding and the kitchen top. The Chester sofa and a cosy dining area with a bench complete the furnishings.
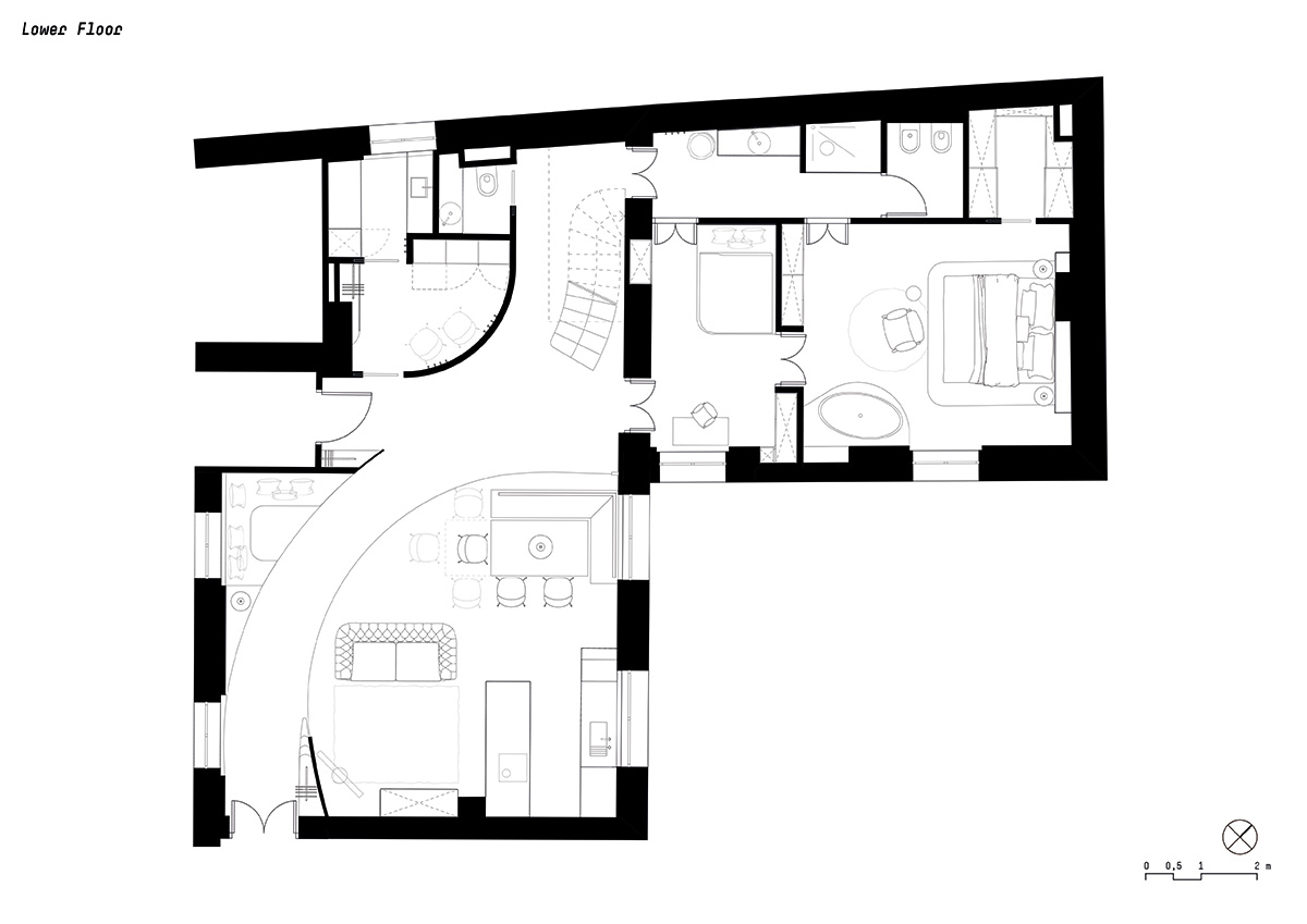
The focal point of the design was the connection between the lower and upper floors: a sinuous, organically shaped staircase visually extends the terrazzo corridor.

The service area, including laundry, toilet, walk-in wardrobe, follows the course of the stairs and is enclosed by a curved wall. Also on the lower floor are two bedrooms and a bathroom.
The master bedroom is furnished with a freestanding bathtub, carved from a single block of “Botticino Fiorito” marble. The washbasins and shower surfaces are made of the same material.

Distributing the loads created by the bathtub so that the old load-bearing structure could support them was one of the most demanding challenges in the project.
The upper floor houses a multifunctional room equipped for home cinema and a guest room with bathroom. The project provides a serene, calm, and welcoming atmosphere for its users.











Lower floor plan

Upper floor plan
noa* network of architecture recently completed a boutique hotel and wellness in a 550-year-old farm in Soprabolzano, South Tyrol, Italy. The studio also transformed an old monastery into a hotel in Arco, Italy.
Project facts
Project name: Nicolai Paris
Interior design: noa* network of architecture
Location: Paris, IV arrondissement
Completion: April 2021
Size: 168 m2
All images © Antoine Huot
All drawings © noa* network of architecture
