Submitted by Sarbjit Bahga
Form Follows Sun, Space & Verdure: Architect Dalbir Singh's Own House At Amritsar
India Architecture News - Apr 07, 2020 - 09:19 13555 views

Most of the architects who design individual houses often feel constrained for not been able to demonstrate their full creative potential due to whimsical interference by their clients. But when they got an opportunity to design their own houses, they are left with no such excuses and thus, their creations are bound to reflect their personality, nature, thinking and lifestyle. At times, such houses do not fit-in the set norms of any particular style of architecture. An architect's creativity thus can be well judged by the design of his/her own house.


To substantiate the above narration an effort has been made to feature this house - designed and owned by an Amritsar-based architect Dalbir Singh. The architect is an ardent nature-lover, poet, artist, painter, and an introvert person. The design concept of this house revolves around the traits of his personality and the outcome is a truthful depiction of these salient features.
While designing the house, a conscious effort has been made to subdue the impact of the built-up bulk, and let nature - the plants, shrubberies, flowers, creepers and grass -overpower it. Introvert nature of the architect has been translated into a unique built form which is blank and closed from outside and opens out either inwards or towards the rear lawn enclosed by high walls of the neighbouring locality. Abstract and rhythmic play of architectural elements portrays the artistic and poetic nature of the architect.


The house is located on a plot of 687 square metres abutting the busy National Highway-1 which runs on its north-west. The site is surrounded by a small street on the south side, an industrial building on its west and a residential building on its east. The challenges for the architect were the irregular shape of the plot; the unplanned and unpleasant surroundings due to the mixed land-use development around; the noise, smoke and dust pollution from the highway; and the harsh climate of Amritsar with temperature varying from -1°C in winters to 45°C in summers.


The obvious goals were to make a comfortable house for all seasons; to achieve complete privacy; protection from noise and air pollution of traffic on the highway; to make an energy-efficient building, and to give a unique identity to the house in consonance with the architect/owner's personality.
To achieve the above goals, maximum use has been made of the natural gifts given to mankind i.e., the sun, the wind, and the greenery. The privacy is achieved by keeping the house with no windows above the boundary wall towards the main road. Thick plantation between the house and the main road also helps in keeping off the noise and air pollution of traffic and providing the much-desired privacy to the inhabitants. To give a unique identity to the house, a sculptural form which is free-from-time and any ism has been created. It echoes the architect's love for painting, sculpture and poetry.


To cope with harsh winters, the house is planned in such a way that every room gets the winter sun in. This makes the house warm, even the rooms situated in the north, i.e., the children's room and the formal sitting room get the south sun through void above the family lounge. Like the sun, the east-west wind too has free access in all areas thus, making them well ventilated and comfortable for living.


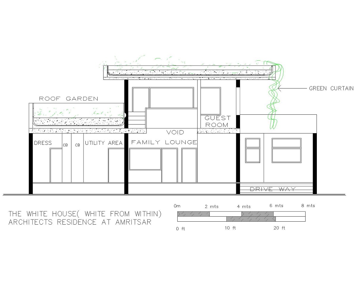
Large terrace garden has been provided on the roof which provides soothing views from all internal areas on the upper floor, and thermal insulation to the rooms below. A special room has been created on the upper floor for family sitting. It has windows on the south, east and west sides. In winters, the sun penetrates throughout the day. In summers, the high sun is cut off by the roof overhangs. It is an ideal room both for the summers as well as winters. In summer, the east-west breeze comes in unobstructed.



A green curtain of plants hanging from the topmost roof has been created on the west side of the house. It gives a very pleasant view to the guest rooms on the upper floor and cuts off the harsh west sun and unpleasant views. All the rooms on the ground floor and upper floor get a spectacular view of the greenery around. This gives a cool and pleasant feeling and a sense of belonging to nature. One feels like living in a farmhouse, whereas in fact, the house is in the centre of an unplanned urban area.


Contrary to the rustic and natural outlook of the house from the outside, all the interiors have been kept in white. This gives a spacious and cool feeling and improves the efficiency of natural light in the interiors. The house has thus been named "The White House (White from Within)".





All these factors result in a wonderful house which is so close to nature; so comfortable to live in all seasons; cool in summers and warm in winters; so private; so energy efficient, and so unique in form.







All images courtesy of architect Dalbir Singh.
> via inputs from Dalbir Singh and Associates.
