Submitted by WA Contents
KAAN Architecten completes a compact mixed-use building with a domestic vibe in Nantes, France
France Architecture News - Feb 18, 2020 - 15:07 10974 views

KAAN Architecten has completed a multi-use development designed within the new district of Bottière Chénaie in the North-Eastern area of Nantes, France.
Completed as the winning entry of an international competition held in 2013, this project is part of a wider urban development plan conceived by urban planner Jean-Pierre Pranlas Descours in collaboration with landscape firm Atelier Bruel-Delmar.
Named Bottière Chénaie, the complex was designed as compact as possible, the project features a multifunctional plinth, composed of commercial spaces, a supermarket and a car park.

Above this base rise two 5-storey residential blocks comprising 172 apartments in total. The first volume is dedicated to market-rate housing, while the second hosts a social housing complex.

Encircled by existing infrastructures such as a tramway, an old railway line and the major artery of Route de Sainte Luce, the site initially appears isolated from its surroundings.
By proposing a balanced composition of volumes and bringing together mixed-use programmes and public spaces, KAAN Architecten creates a second urban focal point, along with the Place du Commandant Cousteau, in a mainly residential neighbourhood.

To the North-West, the larger housing volume unfolds around a spacious courtyard planted with trees, where external walkways overlooking the green surroundings provide access to the dual aspect apartments.
Inspired by the Dutch residential architecture tradition, this circulation solution is adapted to its context and minimizes vertical connections, allowing diverse configurations to the housing units – from private outdoor spaces to loggias with living areas. Moreover, these orientational anomalies are flanked by light-wells spreading natural daylight to the lower floors: a vertical rupture that generates informal spaces to foster residents’ socialization.

To the east, the second volume accommodates 39 social housing apartments, which, according to their position, benefit from a double orientation, different typology of loggias and look out over the trees or towards the city.
Lastly, to the south-west, the office block, organized around a central core, reinforces the volume juxtaposition and completes the new urban landscape.

"Monumental in its consistency, the simple massing of Bottière Chénaie is accompanied by a cohesive repertoire of surfaces," said KAAN Architecten.
"Monolithic at first glance, the project is enriched by high-quality facades composed of a regular 60 x 60cm post-and-beam structure in precast concrete that generates large transparent surfaces and singular fully glazed corners."
"The project’s compactness allowed the optimization of economic standards and environmental recommendations throughout the whole building process," the firm added.

The facades provide abundant daylight to the interiors and naturally link them to the city, both during the day and at night. Towards the courtyards and walkways, the vertical surfaces are cladded in grey stained timber giving them a characteristic domestic feel and reinforcing the duality between exterior and interior while elevating the inner public space as the beating heart of the project.

Thanks to a meticulous choice of materials, a balanced colour tuning, functional design and attention to details, KAAN Architecten shapes the new neighbourhood identity with an elegant intervention, transforming it into an attractive centre that blends impeccably into Nantes’ growing suburbs.















Site plan

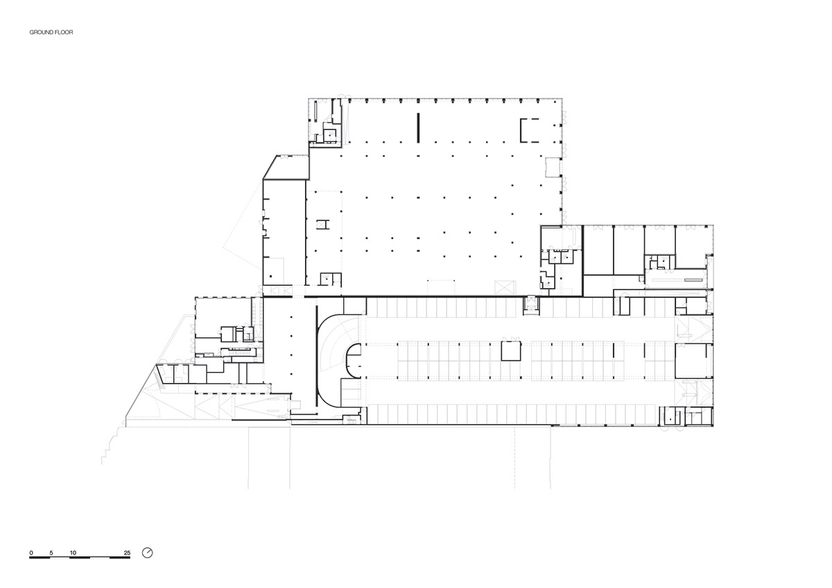
Level 0 plan

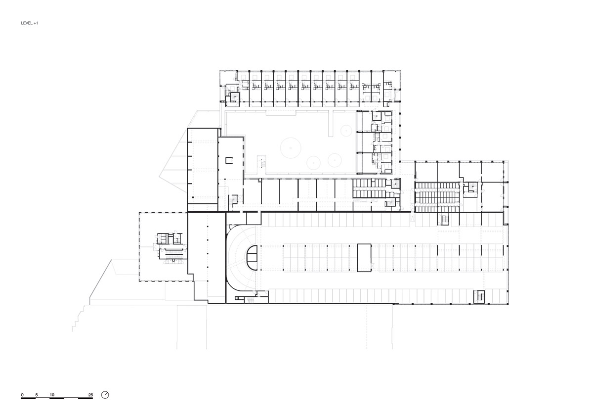
Level 1 plan

East facade

Section

Section
KAAN Architecten was founded by Kees Kaan, Vincent Panhuysen and Dikkie Scipio in 2014.
KAAN Architecten is a Rotterdam, São Paulo and Paris based architectural firm that operates in a global context while merging practical and academic expertise within the fields of architecture, urbanism, and research on the built environment.
Project facts
Location: 190 Route de Sainte Luce, 44300 Nantes, France
Architect: KAAN Architecten (Kees Kaan, Vincent Panhuysen, Dikkie Scipio)
Project team: Dante Borgo, Sebastiaan Buitenhuis, Marc Coma, Sebastian van Damme, Paolo Faleschini, Marylène Gallon, Renata Gilio, Narine Gyulkhasyan, Sophie Ize, Jan Teunis ten Kate, Wouter Langeveld, Julie Le Baud, Yinghao Lin, Aimee Mackenzie, Elsa Marchal, Ismael Planelles Naya, Ana Rivero Esteban, Cécile Sanchez, Yannick Signani, Christian Sluijmer, Joeri Spijkers
Local architect: Atelier Forny, Nantes
Urban planning: Pranlas-Descours Architect & Associates, Atelier Bruel Delmar
Client: OCDL – Groupe Giboire
Programme: 172 Apartments (133 market-rate housing + 39 social housing), offices, commercial spaces, public squares and car park
Competition: 2012—2013
Design phase: July 2014 – October 2016
Completion: December 2019
GFA: 17.200 sqm
Budget: 22.000.000 Euro
Main contractor: Angevin Entreprise Générale, Rennes
Construction advisor, Finance advisor, Constructor W+E installations, structural engineering: AIA Ingenierie, Nantes
Fire control: Socotec, Nantes
Technical installations advisor, Acoustics: SerdB - Groupe Gamba, Saint Sébastien-sur-Loire
Sub–contractors
Structure: Ouest Structure, Rennes
Site work: Charrier TP SUD, Bouguenais
Groundwork preparation: Angevin SAS, Rennes; Guillerm, Plouvorn (prefab elements)
Green areas: Jaulin, Carquefou
Waterproofing: SMAC, Coueron
Facade cladding: Diagonal Façades, Chelles; Engie Axima, Bouguenais
Exterior fixtures: Alu Rennais, La Chapelle Des Fourgeretz; Filmatec, Saint Jacques de La Lande
Metal works: SABM, Guichen; AFC, La Jumellière
Wooden doors and windows: Dupré, Chaze-Henry
Interior walls: AB Cloisons, Grandchamp-Des-Fontaines
PVC floor: Danjou, Chartres-De-Bretagne
Wall tiling: Rossi, Saint-Herblain
Parquet floor: Art Co Parquet, Cholet
Acoustic external floors: Atlantic Sol, Saint-Nazaire
Ceilings: C.R.L.C, Rennes
Painting and wall coverings: Styl’deco, Bouaye; Goni, Chantepie; DBL, Coueron
Elevators: Schindler, Velizy Villacoublay
Plumbing, ventilation and heating: Mahey, Saint-Malo
Electricity: SATI, La Meziere
All images © Sebastian van Damme
> via KAAN Architecten
