Submitted by WA Contents
Quaranta & Coraglio Arquitectos completes Casa 40 Building in Cordoba
Argentina Architecture News - Nov 18, 2019 - 13:00 11374 views

Quaranta & Coraglio Arquitectos has completed a new apartment in Cordoba, Argentina. Named CASA 40 Building, the building is a five-floor condominium located between the traditional neighbourhoods of Alta Córdoba and Cofico.
The building is located where existing neighbourhoods are largely made up of modern houses from the 19th and early 20th centuries. The owners typically live an urban agenda, meaning they spend the majority of their days outside of the house and on returning value a space that’s generous, cozy and well illuminated. This inspired the studio's design premise of wide-open communal spaces that promote better community living.

The access to the building is pedestrian only and is by way of a metal enclosure folded in a “Z” shape. This structure beams two different colours depending on the direction from which it is approached, yellow or black, giving it a playful and dynamic character.
On the other side the studio finds an expansive ground floor area that gives onto a central atrium of walkways that includes the building’s “vedette”, a striking open-air yellow stairway.

The resulting effect is for an original open space that explodes in multiple directions, which can be glimpsed from the outside and suggests a habitational ensemble that aspires to be a high-rise neighbourhood.

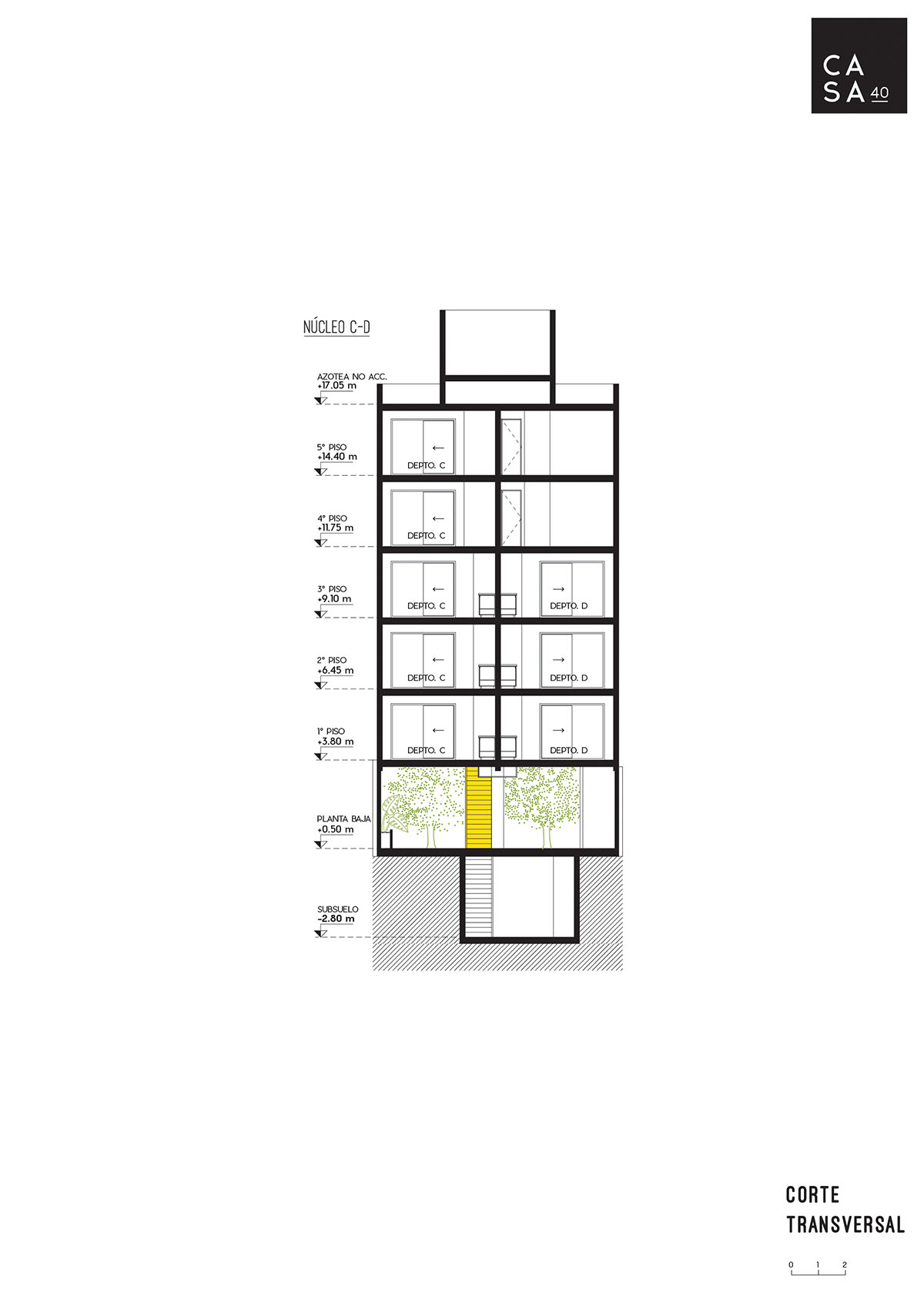
This internal nucleus unites two separate bodies via an interior courtyard, organising the structure whose totality emerges from a 9 x41m plot. The lower three floors are a matrix of single-bedroom apartments while the upper two consist of two-bedroom apartments which, by retreating six metres, incorporate urban terraces, a traditional feature of the neighbourhood.

Additionally, the building retreats by three metres so that the central garden can conjoin with neighbouring gardens, offering differing views from each floor and ventilating the entire condo from the interior. The apartment entrances are by way of balconies, transitions between the public and private, which add a layer of intimacy.

Finally, the selection of materials and colours respond to the search for visual harmony. As such concrete was chosen for the lift, black aluminium for the carpentry, smoothed cement for the floors, a textured look for the wall facings, as well as metallic contours, melon-seed metal and black-concrete brick.















Ground floor plan

First, second and third floor plan

Fourth and fifth floor plan

Facade

Longitudinal selction

Cross section

Axonometric drawing
Project facts
Project Name: CASA 40 Building
Name Office of Architecture: Quaranta & Coraglio Arquitectos
Architects authors of the work: Juan Carlos Quaranta - Marisa Quaranta - Valeria Quaranta
Location: Cordoba, Argentina.
Construction term year: January 2019
Constructed area: (m2) 1,109
Construction: EMPRA s.r.l.
Design Team: Javier Gomez Rojas - Maria José Cordón Vieyra - Javier Rojas
Structural Calculation: Alejandro Fernandez
Blacksmithing: Hernan Batiston.
All images © Gonzalo Viramonte
All drawings © Quaranta & Coraglio Arquitectos
