Submitted by WA Contents
Carlo Ratti Associati designs moveable intensive care units for coronavirus patients
Italy Architecture News - Mar 25, 2020 - 12:26 14920 views

Italian architecture studio Carlo Ratti Associati, in collaboration with Italo Rota, has designed intensive care units to provide enough and extra spaces to be used for the treatment of coronavirus patients around the world.
Named CURA - Connected Units for Respiratory Ailments, CURA project aims to convert shipping containers into plug-in intensive-care pods for the Covid-19 pandemic.
The units will be as fast to mount as a hospital tent, but as safe as an isolation ward, thanks to biocontainment with negative pressure.
The first unit – whose open-source design has been initiated by an international task force of architects, engineers, doctors, military experts and NGOs and is open to further contributions.
The first prototype of CURA, whose name stands for Connected Units for Respiratory Ailments (and also “cure” in Latin), is currently being built in Milan, Italy, with the sponsorship of UniCredit.
CURA uses repurposed shipping containers to create plug-in biocontainment pods that can be quickly deployed in cities around the world, promptly responding to the shortage of ICU space in hospitals and the spread of the disease.

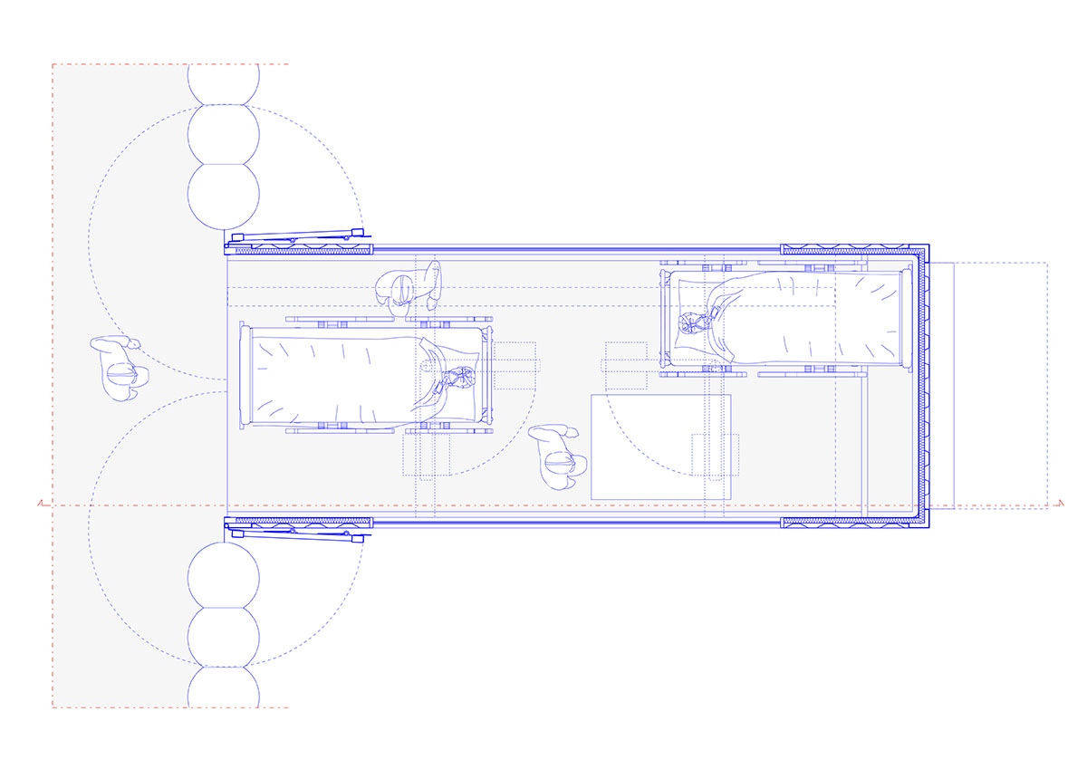
CURA is a compact Intensive-Care pod for patients with respiratory infections, hosted in a 20-foot intermodal container with biocontainment (thanks to negative pressure).
Each unit works autonomously and can be shipped anywhere. Individual pods are connected by an inflatable structure to create multiple modular configurations (from 4 beds to over 40), which can be deployed in just a few hours.

Some pods can be placed in proximity to a hospital (e.g. in parking lots) to expand the ICU capacity, while others could be used to create self-standing field hospitals of varying sizes.
"CURA aims to improve the efficiency of existing solutions in the design of field hospitals, tailoring them to the current pandemic. In the last weeks, hospitals in the countries most affected by COVID-19, from China to Italy, Spain to the USA, have been struggling to increase their ICU capacity to admit a growing number of patients with severe respiratory diseases, in need of ventilators," said CRA.
"Whatever the evolution of this pandemic, it is expected that more ICUs will be needed internationally in the next few months."

The response to the emergency in China and Italy so far has been to set up makeshift emergency hospitals such as tents, or build new prefabricated wards with biocontainment.
While the latter option is time and resource-intensive, the former one exposes medical professionals to a higher risk of contamination and adds operational strain, especially in the long run.

Learning from both approaches, CURA strives to be as fast to mount as a hospital tent, but as safe as a hospital’s isolation ward to work in, thanks to biocontainment (an extractor creates indoor negative pressure, complying with the standards of Airborne Infection Isolation Rooms AIIRs). It follows the standards for Covid-19 hospitals issued by the Chinese authorities, while speeding up execution.
Each CURA pod would contain all the medical equipment needed for two Covid-19 intensive-care patients – including ventilators and intravenous fluids stands. All units can be connected by an inflatable corridor. The first CURA pod is being built for test at a hospital in Milan, Italy.

CURA pods are being conceived as a ready-to-use solution. Shipping containers can easily be moved through different modes of transport - from ship to rail to truck - and re-used in different parts of the world, adapting to the needs and capacity of the local healthcare infrastructure.

CURA is developed in an open-source, non-for-profit framework and solicits suggestions and improvements. More information can be found on this website.
Project facts
Project name: CURA-Connected Units for Respiratory Ailments
The first prototype of CURA, to be developed in Milan, Italy, is sponsored by UniCredit.
List of people and organizations who have contributed thus far to CURA (in chronological order):
CRA-Carlo Ratti Associati with Italo Rota (Design and Innovation), Humanitas Research Hospital (Medical Engineering), Policlinico di Milano (Medical Consultancy), Jacobs (Alberto Riva - Master Planning, design, construction and logistics support services), studio FM milano (Visual identity & graphic design), Squint/opera (Digital media), Alex Neame of Team Rubicon UK (Logistics), Ivan Pavanello of Projema (MEP Engineering), Dr. Maurizio Lanfranco of Ospedale Cottolengo (Medical Consultancy)
With the support of the World Economic Forum: COVID-19 Action Platform, and Cities, Infrastructure and Urban Services Platform
CURA is an open-source project.
All images courtesy of CRA
> via CRA
