Submitted by WA Contents
Mobius Architekci completes NEMO House in Poland
Poland Architecture News - Jan 20, 2020 - 14:42 11340 views

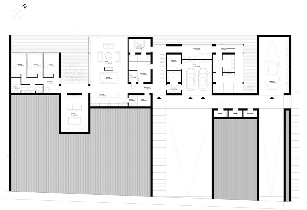
Mobius Architekci has completed NEMO House in Poland. The architecture of the building is subordinated to the vicinity of the Masurian lake, over which the house was built. The buildings did not disturb the landscape by opening the interior transparently to the beauty of the landscape.
The house was designed in a rectangular plan with a length of 50m, using practically the whole building plot. The structure is adapted to the slope of the area. The building remains enigmatic from the access road and entrance. In addition to the glass entrance and the window lighting the kitchen does not have windows, only entry gates for cars and boats. The roof leveled with the ground level is covered with gravel and partly with grass (in the original assumptions it was water).

Nemo House is a one-story building. Entry from the street level takes place through gradual lowering of the area with entry in the form of a falling platform from a granite cube.
All main functions of the building are laid out in a linear arrangement parallel to the demarcation line of the lake. Additional functions arranged in the second line of the building do not interfere with viewing openings.

Along the main façade, the building has two semi-open atria - one narrower from the night side, the other in the living room section is its extension and the main relaxation area with a view of the lake.

The reduction of the differences in the area has eased the descent along the wharf, thanks to which users have gained the freedom to use the proximity of the lake. From this space come the main stairs that lead to a small pier by the private beach where the boat is moored.

The house grew with the landscape. The author of the project, Przemek Olczyk, the owner of the Mobius Architects studio, proved the superiority of the environment over the form in a place that required special sensitivity to its beauty.
The architect realized his own ambitions and expectations of the investor in a restrained project that raises the aesthetic value of the place where it was created.














Ground floor plan

Section

Elevation North-East

Elevation North-West

Elevation South-East

Elevation South-West
Project facts
Project: NEMO house
Architects: Mobius Architekci Przemek Olczyk
Building area: 500m2
Realizacja: 2014
All images © Paweł Ulatowski
> via Mobius Architekci
