Submitted by WA Contents
YTAA converts old villa into a museum with irregular dark surfaces and glazed base in Bucharest
Romania Architecture News - Dec 27, 2019 - 15:51 12287 views

Beirut-based architecture firm YTAA - Youssef Tohme Architects and Associates has transformed a 1930s villa into a new contemporary art museum, featuring irregular dark surfaces and glazed base in Bucharest, Romania.

Called MARe - The Museum of Recent Art, the 1,580-square-metre museum is situated on a corner plot - and from far away, it is perceived like a small apartment but when you come closer, its irregular facade gives an intimate feeling to enter the building.

To form its concept, the studio benefitted from this question: "How to produce architecture in a city described by its destructions, where the population has so long been diminished in its power of memory and its individuality?"
In this situation of discontinuity, it is a question of awakening the gaze: Convene history as topical news. It's a strong act, a political act that the French - Lebanese architecture firm YTAA proposes to question.

The project, led by the architect Youssef Tohme, focused not only the architectural function but the symbolic and urban function as well. The building is erected on a glazed base, and is opened to the public, the reproduced house simultaneously becomes a museum piece and a shout to the city, to confrontation, to culture.


Radical and risky, this response permits the escape from binary opposition between an earlier and new situation by building a third way: that of the transformation of the historical archetype of the villa imagined as a ghostly figure generating continuity and questioning.
By building this explicit device of a physical uprising of highlighting the model, the architect raises awareness on this polycentric city which is full of qualities in terms of juxtaposition and intermingling eras, irregularity and durability.

"In addition to expressing a form of resistance to the tabula rasa and the globalization that particularly affects young democracies, the preservation and reinterpretation of this familiar morphology to house a museum makes it possible to introduce another very important dimension of the project: the space of everyday life, of the individual, of subjectivity," said YTAA.
"With a relatively small surface area for an institution, MARe grows according to a logic of multiplication and amplification of spaces both horizontally and vertically."

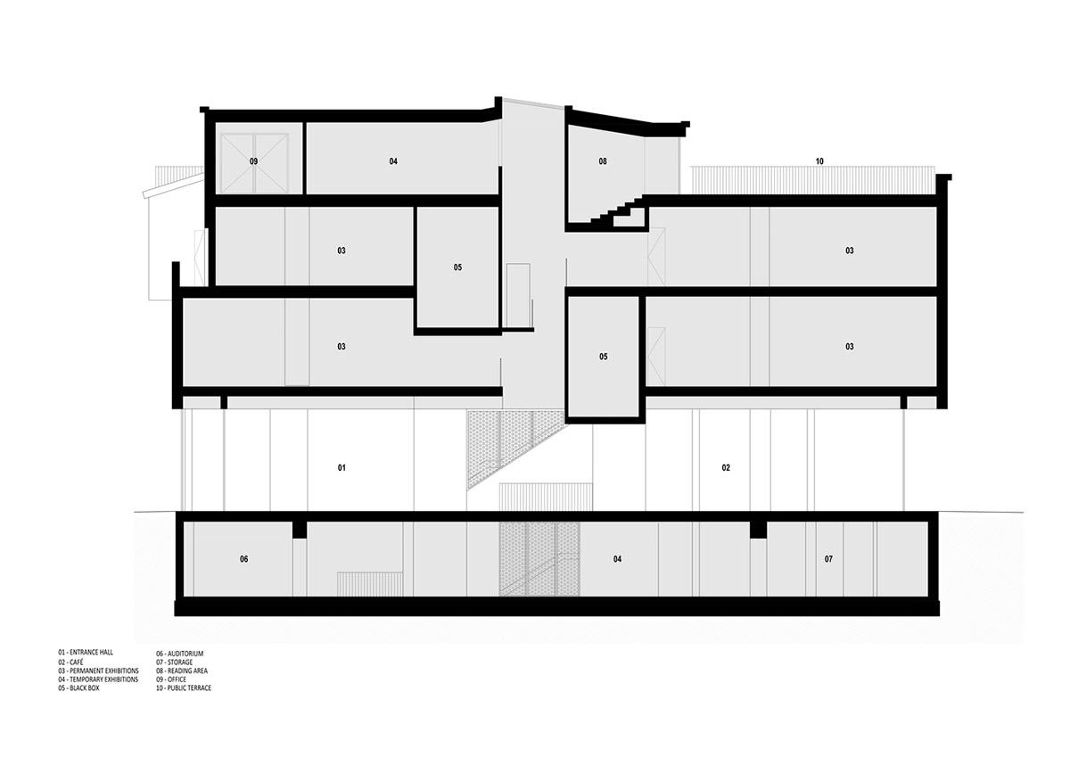
In the basement floor, as in the attic, there are temporary collective exhibition spaces, while at the first and second floors feature the permanent collections.

This simple distribution is disturbed by a central atrium containing two staircases. Instead of clarifying the visit and reassuring the visitor, this intermediate void - by the gaps it creates, the views it hides, the friction situations it induces - disturbs the movements.

Two black boxes lodged in half-levels in this bright-dark split participate in this interference and display works of international artists. This unsystematic disposition of the circulation spaces is for the author, favorable to human confrontations, situations of intimacy as well as a push towards encounters.



"During the years of dictatorship, the inhabitants of Bucharest were forced to find and invent their own spaces for exchanges and freedom in order to survive and exist as individuals," said Youssef Tohme, Founder of YTAA.
"It is a characteristic of the vision and practice of space within the city. MARe speaks about Romanian society and how people envision their future," added the architect.

Thus, in this museum the social space, the individual’s space and artwork are merged. This is a very specific situation, a rich fate of the gaze as a way to place the artworks in the context of the passionate Bucharest of today.








Image © Toufic Dagher

Image © Toufic Dagher

Basement floor plan

Ground floor plan

Attic floor plan

1st floor plan

2nd floor plan

Transverse section

Longitudinal section
Project facts
Type: Museum
Consulting Structural Engineer: Ductil Tech
Curator: Erwin Kessler
Built Area: 1,580 sqm
Project Manager: Antoine Touma
Local Architect: PZP Architectura
Consulting Mechanical Engineer: Wissam Tawil & Associates / MEP engineers S.A.L
Consulting Electrical Engineer: Wissam Tawil & Associates / MEP engineers S.A.L
Consulting Landscape Architect: Ana Marti Baron
General Concrete Contractor: Colina Development SRL
General Finishing Contractor: Colina Development SRL
Client: Private
All images © Cosmin Dragomir unless otherwise stated.
All drawings © YTAA
> via YTAA
