Submitted by WA Contents
JKMM wins competition to design new extension of National Museum of Finland
Finland Architecture News - Dec 09, 2019 - 18:06 14004 views

Helsinki-based architecture firm JKMM has won an international design competition to design the new extension of National Museum of Finland.
Organised by The Finnish Heritage Agency, the National Museum of Finland and Senate Properties, JKMM was announced as the winner of the competition on December 5th 2019 in the ceremony held at National Museum of Helsinki.
JKMM's design proposal, named Atlas, was selected from a total of 185 entries which included large number of proposals from outside Finland.

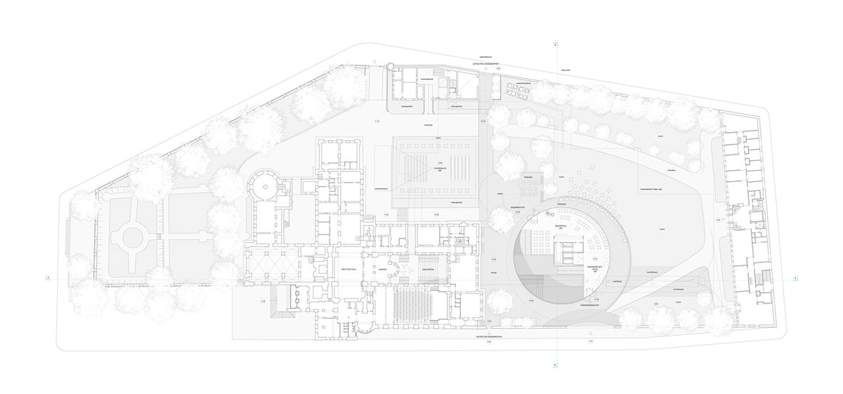
The new building will cover a 4,975-square-metre area for the new extension. The 2019 "New National" competition brief focussed on offering: additional exhibition space; workshops; a new restaurant in the museum’s underused enclosed garden; and improved access including an inviting new entrance for the Museum.

"It was also important that the new Museum extension will support a dynamic programme of events whilst working in tandem with the existing building," stated the architects.
The National Museum of Finland is located in central Helsinki along the city’s main street called Mannerheimintie, opposite Alvar Aalto’s Finlandia Hall and its parkland setting.

The Museum opened to the public in 1916, a year before Finland became an independent country. The existing museum building is by the celebrated studio Herman Gesellius, Armas Lindgren, Eliel Saarinen and is a major landmark in Helsinki and one of Finland’s finest examples of National Romantic architecture.
"For us, it was important that the new addition to the Museum is independent of the original building and that it respects the historic garden designed by Lindgren," added JKMM.
JKMM designed a pavilion-like structure showing a freestanding sculptural quality of the building, addressing the traditional building types found in park-like settings.

The distinctive round disc-shaped white 1,320-square-metre concrete roof within the stone walled garden of the Museum is, in fact, so simple, geometric and even primeval in its form that it has an instantly universal appeal.
Underneath the cantilevered 2000 ton concrete roof, the new ground floor restaurant will face the sunniest aspect of the garden and can be used independently of the rest of the Museum, as suggested in the brief.
Its walls are made of structural glass that curve around the extension creating a sense of a floating roof as well as introducing natural light to the floors below, where a generous protected stepped “public square” welcomes visitors and leads them to the new exhibition galleries and other spaces.

The abundance of light plays an important role in the design and highlights the materiality and three dimensional qualities of the architecture, both in keeping with those of the original museum building.
"The white colour of “Atlas” is a nod to Alvar Aalto’s Finlandia Hall just visible from the site. It is also a way to introduce light into the streetscape particularly amidst the darkness of Finnish winter," added the architects.
"The new arched point of entry piercing the original museum’s garden wall facing Mannerheimintie has been designed to attract visitors, yet it retains and plays on the mystery associated with what many describe as The National Museum’s secret garden."
Passers-by will see the new building beckoning them behind the Museum’s garden’s stone wall giving it a subtle yet welcoming presence in the city.

For the building's name, the name "Atlas" refers to the idea of city's history and culture. The suspended concrete roof clad in ceramic tiles has a celestial quality but it is also a metaphor for the world or the city's shared legacy.
"For us, it was important to find a solution that addresses the more figurative traditions of the Gesellius, Lindgren, Saarinen design and did so in a way that is contemporary, focussing more on the power of scale and materiality rather than the labour intensive crafted construction methods of the past; or didactic art historical references that informed the early nineteenth century design," added the firm.












All images courtesy of JKMM Architects
> via JKMM Architects
