Submitted by WA Contents
Carolina Vago Arquitectura's weekend house in Argentina integrates rustic and modern elements
Argentina Architecture News - Dec 02, 2019 - 12:26 13139 views

Carolina Vago Arquitectura has completed a weekend house that combines rustic and modern elements in Salta Capital, Argentina. Named "The Stables “Las Caballerizas", the two-storey weekend house was built from the recycling of old stables.
In this work the initial plans were only a starting point to start dreaming. The design, construction, re-construction and re-functionalization process was artisanal work, where everyone who participated helped build the spirit of this work, defined details and corners.

"Build a ranch" where you can spend a weekend with all your children and grandchildren was the client's request. Recover this place where he had spent his childhood. The premise was to restore the original stone construction and maintain it, despite the poor condition it was in. Recycle and re-functionalize while maintaining its essence and spirit.

Implanted in a place where the landscape is the protagonist, it was another condition to take into account. How to integrate the landscape and nature into the life of the ranch? How to make them participate in the social life that I was going to have, without losing the sense of shelter that their wide stone walls transmitted?
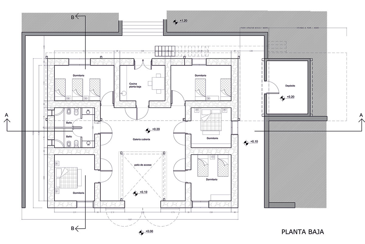
With the horses as witnesses to the process, the project was taking shape. It was decided to use each of the boxes as bedrooms, bathrooms and a small living area. Respecting the original materials on the ground floor and their disposition, retaining even the drinking fountains of the horses. The original central courtyard scheme was maintained.

The social sector was located in a metallic pavilion on the top floor taking advantage of the uneven terrain. Constituted by a large kitchen, living room, dining room and gallery that opens outwards through large windows and is linked to the land by means of a painted sheet bridge, which is integrated with a stone terrace with a grill and clay oven under the shade of trees.

This new volume built with metal structure and glass rests on the original construction marking two different functions and two very different times of construction. Past and present coexist in harmony, together with the landscape and the family of three generations that fill all spaces with laughter and encounters.

As for the materials used, for the metallic volume upstairs, it was thought of materials of easy maintenance, as well as the possibility of being able to close the whole house during the days that it is not used. With respect to the existing ground floor and the whole, it was sought to maintain the spirit of the original construction and the place through materials, details and equipment that transmit it and are consistent with it.























Ground floor plan

First floor plan

Section-1

Section-2

Elevation

Elevation
Project facts
Project Name: The Stables “Las Caballerizas”
Name Office of Architecture: Carolina Vago Arquitectura
Architects authors of the work: Achitect Carolina Vago
Location: Province Salta , Salta Capital, Argentina country
Construction term year: 2019
Constructed area: 200 m2
Other Participants:
Construction: Metal structures: Engineer Santiago Esquiu
Structural Calculation: Engineer Maria Marta Alemán
Design Team: architects Camila Cornejo & Lucia Spatafora
All images © Gonzalo Viramonte
All drawings © Carolina Vago Arquitectura
