Submitted by WA Contents
Curvaceous bamboo element changes the soul of this private residence designed by Wallmakers in India
India Architecture News - May 16, 2019 - 07:32 15151 views

A curvaceous bamboo element that makes this family residence authentic, calm and distinguished in the busy city of Thiruvananthapuram, India.
The residence was designed by Kerala-based architecture practice Wallmakers, who have devoted themselves to the cause of using mud and waste as the chief components, to make structures that are both, utilitarian and alluring.
Their latest project is called IHA Residence and was designed for a couple Mrs. Tara Pillai and Mr. Sreekumar, based in Delhi. They only wanted an eco-friendly house that also retains the peace and quiet in the busy city of Trivandrum.

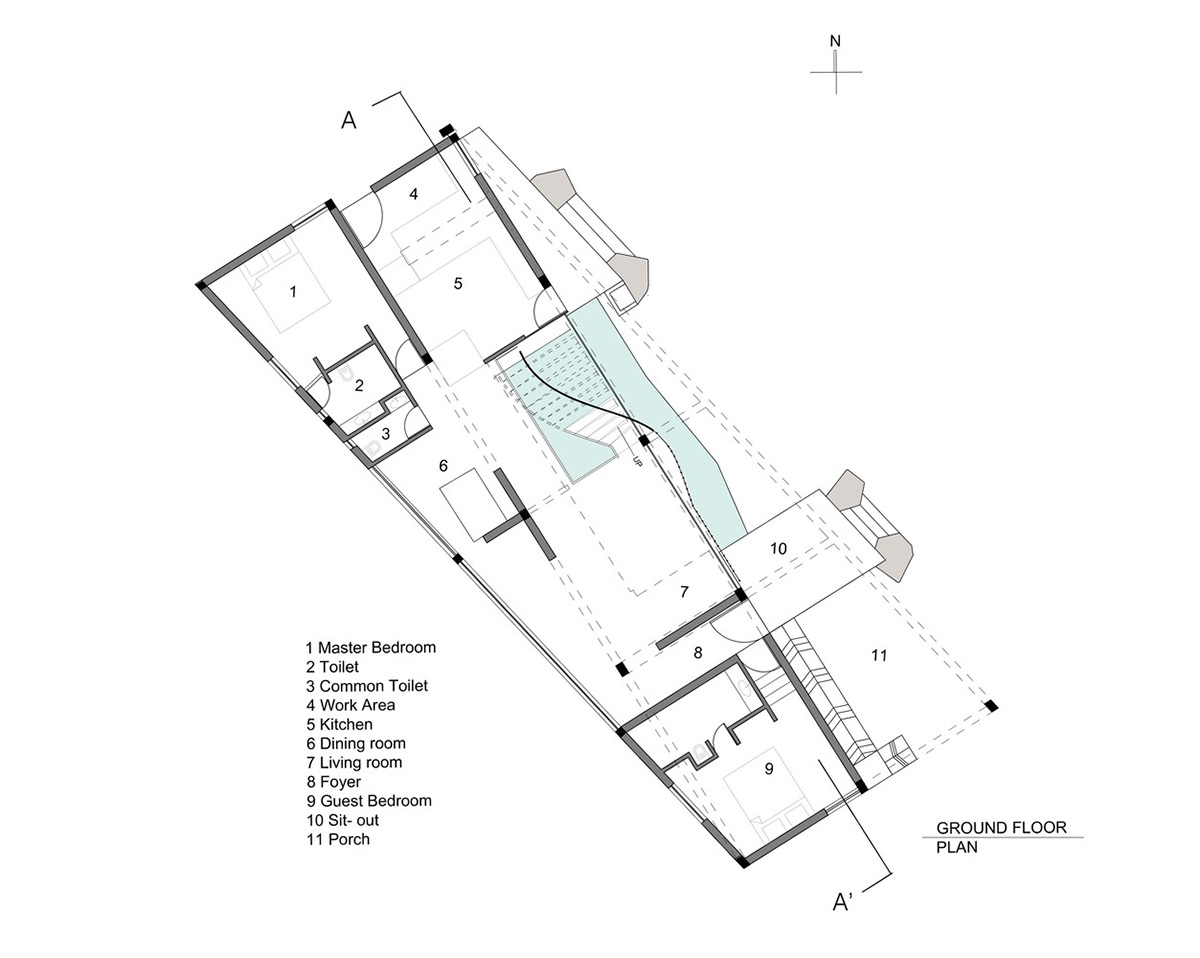
The architects' innovative approach made this residence unique and more authentic by using local craftsmanship and materials, as well as its rustic atmosphere in the interior. By adding a sinuous bamboo element to the façade, it is not designed as an attractive addition to be perceived as natural beauty, it is quite functional and creates an interface area to sit, relax and a naive staircase in its own scale.

"The design of this residence breaks the shackles of a lot of generic ideas. The main concern while designing was to avoid creating an environmental imbalance in the area as it was a low-lying region," said Wallmakers.
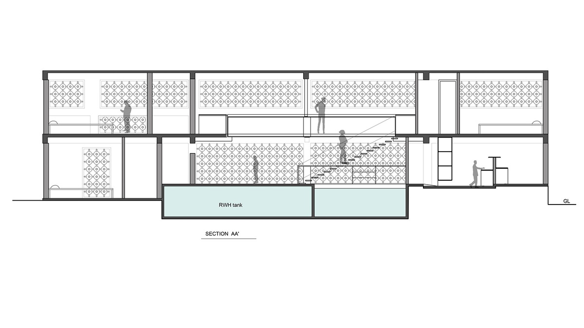
The architects said: the idea was to raise the building from the ground, consequently forming a pond at the lowest point in the site which edges into the house with a staircase dangling over it.

The project site was situated on a low-lying terrain with issues of water-logging, which was the primary obstacle the architects had to tackle.
"The primary idea was to ensure that the building wasn’t creating a hindrance in the flow of water. Being in a state like Kerala, where rains are frequent, we had to ensure that the water percolates into the ground and that it could be harvested," the firm added.

The architects had to come up with an alternative and sustainable solution which could also enhance the spatial quality- a pond in the lowest point of the site so that water is retained in the site as well as, adding to the veristic vibe of the residence.

Using bamboo for the façade had a downside to it – which is that it is precarious and cannot support an entire edifice of an enormous size. This is the barrier that was demolished and proved wrong by dint of this project. The bamboo façade is created and conserved in a stable position by reinforcing the bamboo with steel rods.

The continuous string of bamboos hand you the front elevation to the residence supporting the staircase that hangs from it, also creating a semi-open place for your quit thoughts.

The distinctive form of CSEB bricks (Compressed Stabilized Earth Blocks) has been used to create a rotating Jali work to impart privacy to the bedrooms. Apart from the marvel,the light creates; the consecutive polar arrangement allows uninterrupted flow of air allowing ample ventilation.

The use of the base plate of Washing Machines as scrap grills instead of fresh factory made ones is an imperative part of the residence. Use of such grills instead of fresh ones propagates the idea of up-cycling as well as serves as a medium of income for labourers who part their sweat to create exquisite pieces of art.

"We have tried to bring small changes in the usual routine of wastage by inculcating something we regularly see in junkyards. The use of washing machine motor base plates, welded together not only encourages sustainable living and reuse but also adds to the beauty of the residence. Utilizing scrap material and turn it into something spectacular is made possible," added the architects.

In the interior, Wallmakers uses a simplistic and minimalist rustic interior for the residence. The architects make use of uprooted trees and waste wood from saw mills as the furniture for the residence.

The structure connects closely to nature in terms of terrain, design and materials alike. The residence hugs and stays close to the environment of peace around it and the outgoing and cordial vibe within the four walls of the residence.










Concept-1

Ground floor plan

First floor plan

Section

Elevation
Project facts
Architects: Wallmakers
Project name: IHA Residence
Location: Thiruvananthapuram, India
Team members: Srivarshini J.M. ,Oshin Varughese, Shreyas Unni, Pushkar Sharma, Udit Mittal, Gayathri Maithani, Saatvika Pancholi, Shekizzar, Shyamala Baskaran, U.S. Ananditha, Tushar Sharma, Vineeth A.C. , Aparna Renu, Dhawal Dasari, Jemy Joy, SankarNath, Apoorva Goutham, Sagar Kudtarkar.
Area: 3100.0 ft2
Project year: 2018
All images © Anand Jaju
> via Wallmakers
