Submitted by WA Contents
WGNB uses achromatic color of black for partly triangular-designed fashion store in Seoul
Korea, South Architecture News - Jul 09, 2019 - 01:11 18585 views

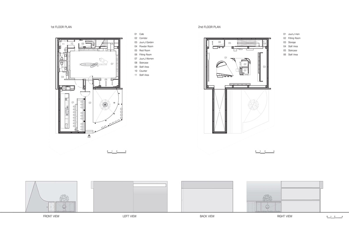
Seoul-based architecture firm WGNB has designed a fashion store with variations of black volumes to assign different functions in Seoul, South Korea. Named Juun.J Flagship Store, the two-story store was designed for a fashion brand Juun.J.
The most iconic part of the building is the triangular volume that serves for a cafe. The circular volume leading the entrance serves as a big garden that lightens the building.

The square-shaped volume is designed for garments of women and it acts just like a big hall. Other functions such as powder room, staff room, rest area, fitting room and counter are arranged into the walls wrap the main display area. In the second floor, visitors are welcomed with another display area for men’s wear, with storage, fitting room and staff area.
"Black is a color symbolic of Juun.J and the most beautiful shadow out of the shapeless existences is also black," said the architects. It’s the first flagship store of the fashion brand of Juun.J.

The architects used natural elements such as light and shadow in order to express darkness within space using black – identity color of Juun.J brand.
The shape of the architecture was initiated from geometry that is the basic form in all designs. Juun.J’s flagship store surely has a certain form but in the shape like a shadow without exact shape, which is similar to Juun.J as it invites endless curiosity to people.

"If we look at the traditional house structure in the East, large roof files are put above the house basically and the whole structure is absorbed into within the deep and wide shade generated by the awning," added the studio.
"Deep darkness below the awning is shadow as well as black within the space. In an attempt to turn black into space, we organized space by either hanging plenty of objet or separating them and generating shadows."

All spaces except white part for women’s wear on the first floor are composed of varied densities of darkness. While the first floor has contrasts with some white part, clothes here are also hung in darkness.

The space of cafe generates various darknesses due to natural light dramatically penetrating from the ceiling. And eaves spreading forward work as an awning and make visitors feel natural light coming as a result of reflection on the garden. They can see the garden from within the space and find another shadow as a tree is floating in the garden.

The shape of the architecture is composed of circle, quadrangle and triangle, basic forms in all designs and the architecture is designed with the concept of dark matters of the universe.

Especially, the circle-shaped garden, which is a space drawing natural light, plays an important role in making this dark matter a striking contrast. This architecture and space started very much from the oriental way of thinking, and the structure of space and formative approach were complete based on the Western style.

The architects expressed achromatic color of black as darkness within the space instead of a simple painting and, as far as the used materials are concerned, the studio diversely applied materials that black has intrinsically instead of painting them in black.












All images © Yongjoon Choi
> via WGNB
