Submitted by WA Contents
Mole Architects’ The Houseboat wins the 2017 Stephen Lawrence Prize for its "low construction budget"
United Kingdom Architecture News - Nov 01, 2017 - 17:17 14416 views

Cambridge-based Mole Architects' The Houseboat has been awarded the 2017 Stephen Lawrence Prize by The Royal Institute of British Architects (RIBA) for having a good representation of a low construction budget of less than £1 million in the UK. Celebrating its 20th year at the RIBA Awards, the prize, supported by the Marco Goldschmied Foundation, is given to an experimental architectural talent, celebrating and rewarding projects with a construction budget of less than £1 million.
The Stephen Lawrence Prize was first awarded in 1998 in memory of Stephen Lawrence, who was taking steps to become an architect before his untimely death in 1993.

Mole Architects designed a spectacular home, comprising of two volumes coated by back stained timber larch exterior, resembles two upturned hulls propped together, with breath-taking spaces facing the sea over Poole Harbour. The seaside retreat sits comfortably next to the owner's other residence, known as The Boat House.
Developed for an architect and developer Roger Zogolovitch, founder of Solidspace, he wanted a quiet and comfortable space as an addition to his main 'Boat House', which was created as a reverse version of the existing house called 'The Houseboat'.

"This is a 1930's modernist design, uniquely fitted out internally with second hand salvaged ship lounge joinery; and the skill of the architects behind The Houseboat lies in their refusal to challenge the existing building," said RIBA.
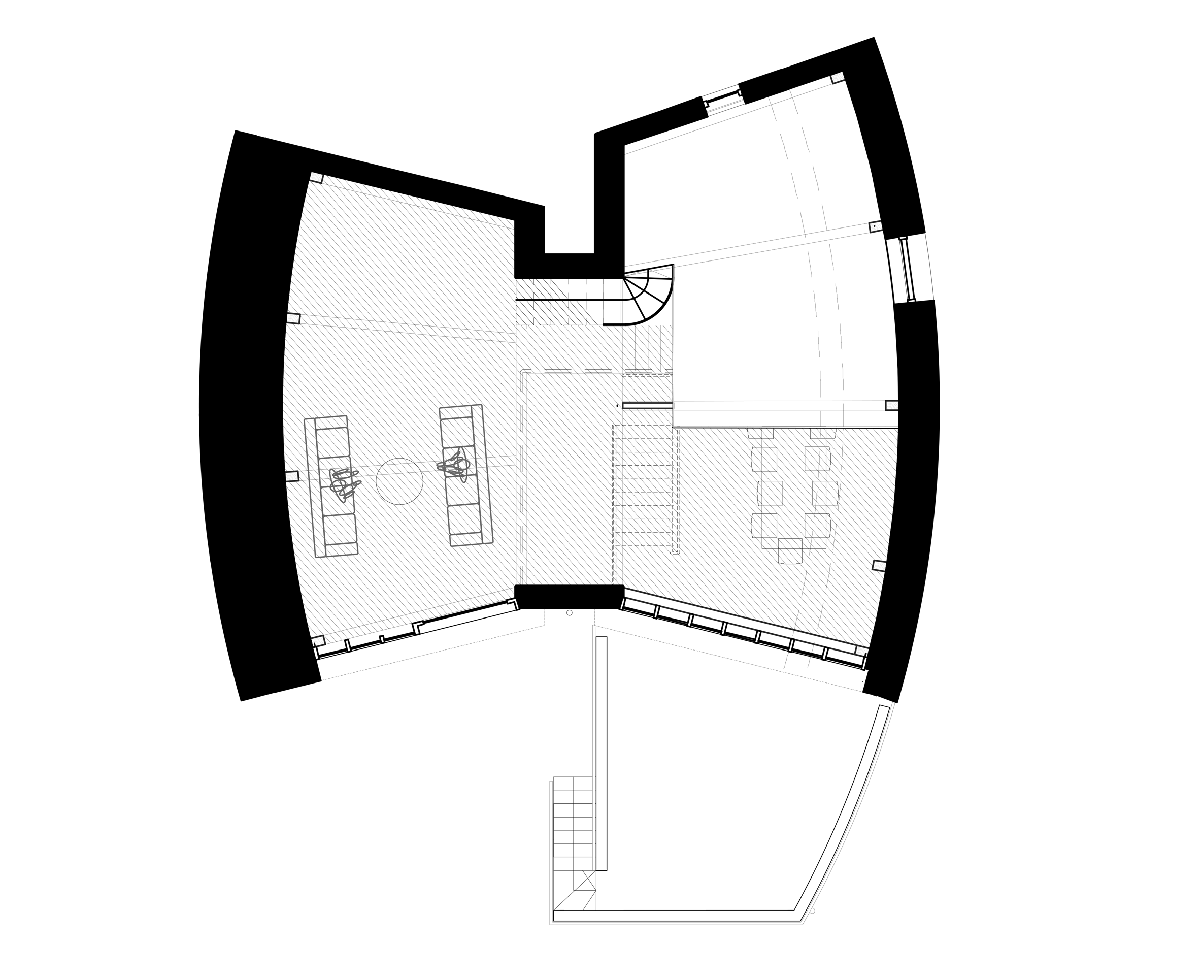
Completed in 2015, the building is based upon a staggered section with a half-basement; this configuration enables an open staircase which allows a house of interconnected volumes rather than rooms- a section that Solidspace explores in all their homes. The house is approached through the trees, and the curved form minimises the actual volume of the house.

Inspired by its coastal context, flows seamlessly from aesthetics to experience, the house was built on a concrete base - clearly exemplifies two overturned hulls and echoes the sea to the front. Once inside the space soars above, with living spaces perched within the two curved spaces, looking out to sea. It’s a breath-taking series of spaces.
Internal materials are made of exposed concrete, timber, encaustic tiles and steel. Externally the black-stained timber larch boards sit above the exposed concrete base. The organic form of the house, together with the staggered section and spectacular site, create a house of originality and delight.

The architects use meticulous detailing and crafting that permeate both internally and externally, from the grooves of the MDF wall lining, to the bespoke copper glazing on the rear facade which seeks to record the effects of weathering.

"One of the client's requirements was for split levels connecting living, eating and working spaces under one large roof profile, an environment suited to a holiday home. The single roof is lifted with the concrete inverted keel and a single volume space is achieved. The split levels are connected by three stairs of concrete, wood and steel finishes, which give each space a personal quality," stated in a project description.
"Multiple ideas are developed, distilled and precisely integrated throughout the house; ideas that have clearly developed through the successful relationship between the architect and client."

"In an age where detail design and carefully crafted construction are all too often sacrificed to meet short term deadlines, the Houseboat is a welcome exception. Its split-level geometry and use of disparate materials and ad-hoc elements have been seamlessly assembled into a surprisingly harmonious and entertaining whole," said Stephen Lawrence Prize founder Marco Goldschmied.
"A new house that feels like a lived-in home from the outset is a rare achievement. Congratulations to the architects and clients for their patient dedication in bringing it to fruition," added Goldschmied.

"The Houseboat is a great expression of context inspired concepts, experimentation and finely tuned craftsmanship," said Taro Tsuruta and Stephanie Edwards, speaking on behalf of the Stephen Lawrence Prize judges.











The judges for the 2017 Stephen Lawrence Prize included; Baroness Lawrence of Clarendon, Doreen Lawrence CBE, the mother of Stephen Lawrence, Marco Goldschmied, RIBA Past President and Founder of the Marco Goldschmied Foundation, which established the Stephen Lawrence Prize in 1998, Taro Tsuruta, Tsuruta Architects, who won the 2016 Stephen Lawrence Prize and Stephen Lawrence Scholarship recipient Stephanie Edwards, Barton Willmore.
Last year, Tsuruta Architects' House of Trace was awarded the 2016 Stephen Lawrence Prize. The Fishing Hut by Niall McLaughlin Architects won the 2015 Stephen Lawrence Prize.
All images © Rory Gardiner
> via RIBA
