Submitted by WA Contents
Kengo Kuma and Associates completes ’wooden frame’ Iiyama Cultural Hall Nachura in Japan
Japan Architecture News - Apr 05, 2016 - 10:57 11869 views

Kengo Kuma and Associates completed Iiyama Cultural Hall Nachura in Japan, which is comproside of wood, steel and glass. The Iiyama Cultural Hall Nachura is located in a snowy region of Japan that makes the structure more proctected and rigid with the cascading form of the whole building. The amorph form of the structure reflects the local assets of Nagano, which refers to its strong materiality and traditional craftsmenship.
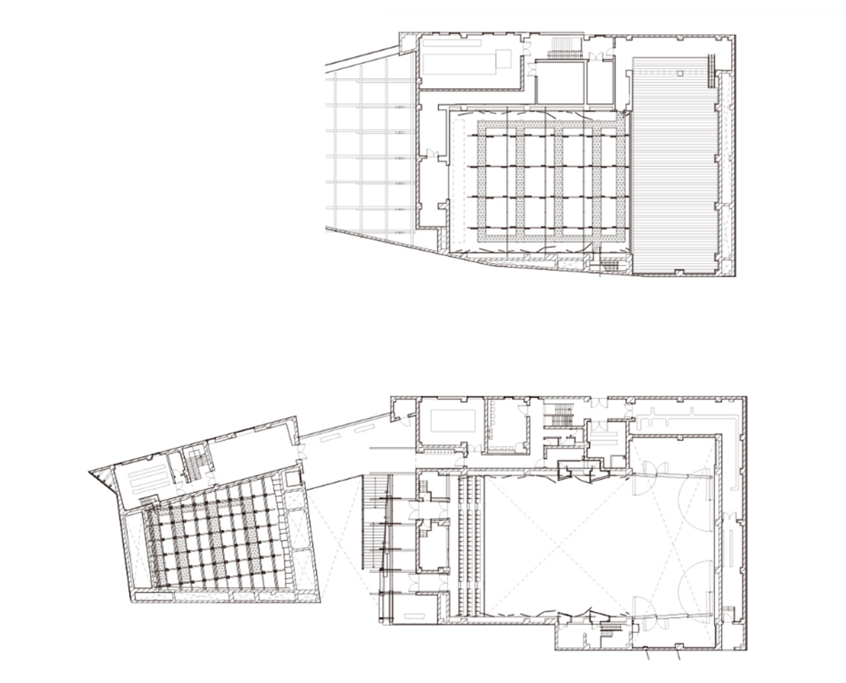
The town of Iiyama is located in Nagano prefecture, whose Japan Railway station lies on the Hokuriku Shinkansen line, which started its service in 2015. The project is a cultural complex of two halls and a community center, and we connected the spaces with an interiorized passage which is called Nakamichi.

image © Fujitsuka Mitsumasa
The design studio is inspired from a hint from roofed arcades called “Gangi,” which can be found in snowy regions in Japan. Its intimate space formed by a wooden frame and “doma (earth floor)” was revived here as a modern version of Gangi. The roof of Nakamichi is supported by mixed structure of wood and steel.

image © Fujitsuka Mitsumasa
The entire space is made of such elements as locally produced timber, soft and moist floor like natural earth, washi paper made by local craftsmen, and creates an atmosphere that could not be felt in a typical publicly-funded facility often described as a closed box. The whole building is shaped like a hill and covered with a facade of cor-ten and Japanese larch, morphing into the green rise at the back, making a contrast with the trains running nearby.

image © Fujitsuka Mitsumasa

image © Fujitsuka Mitsumasa

image © Fujitsuka Mitsumasa

image © Fujimaki Photo Creative

image © Kengo Kuma and Associates

image © Kengo Kuma and Associates

image © Kengo Kuma and Associates

image © Kengo Kuma and Associates

image © Kengo Kuma and Associates
Top Image © Fujitsuka Mitsumasa
Project Facts
Location: Nagano, Japan
Date: 2012.4-2015.12
Service: Hall, Cafe
Area: 3,888.21m2
