Submitted by WA Contents
MVRDV transforms disused urban factory building into "creative factory" in Shenzhen
China Architecture News - Aug 18, 2020 - 16:56 6358 views

MVRDV has revealed design to transform a disused urban factory building into "creative factory" in one of Shenzhen’s most historic districts.
Called If Factory, the new building, covering a total of 11,000-square-metre area, will house a mixture of offices for the Bureau of Public works of Shenzhen Municipality Nanshan district and real estate company Vanke in Nantou, Shenzhen.
Rather than demolish and rebuild, the design sustainably renovates a disused factory building to form a "creative factory", containing a mixture of offices for the Urban Research Institute of China Vanke and offices for rent.

At the heart of the design, there is a public stairway, providing visitors with a view into the activities within and leading to a landscaped public roof terrace known as "The Green House".
"Nantou is an ancient historic town but is now an urban village of Shenzhen, dwarfed by the skyscrapers that surround it," said MVRDV in its project description.
"Recently attempts have been made to develop Nantou as a cultural and creative hub – the town hosted the 2017 Bi-City Biennale of Urbanism and Architecture, for example – and MVRDV’s renovation project is the largest in a number of renovations proposed by Vanke, all with designs by nationally and internationally renowned architects."
The main intervention is a simple cleaning and renovation of the old. With new transparent painting techniques, the old structure will be treated to resist aging.

This preserves the traces of the building’s history, keeping the concrete frame that is now exposed due to the building’s dilapidated state – in line with principles of sustainability and the circular economy.
The exterior walls of the new offices are set back from this frame to create perimeter balconies that allow for circulation and chance encounters with colleagues. The walls are glass, while the floors of these balconies include glass blocks that mark the entrances to the building.

The most notable new addition in MVRDV’s design is a large public staircase, clad in wood to distinguish it from the concrete and glass that characterise the rest of the design. This staircase carves its way through the building from the ground floor to the roof, at one point protruding from the façade on the fourth floor.
Windows built into the staircase provide glimpses into the work being done in the offices, ensuring that this creative hub acts with transparency and remains connected to the community life of Nantou. Inside the staircase, mirrored glass and vibrant neon signage offer an aesthetic reminder of the early days of Shenzhen’s urbanisation.

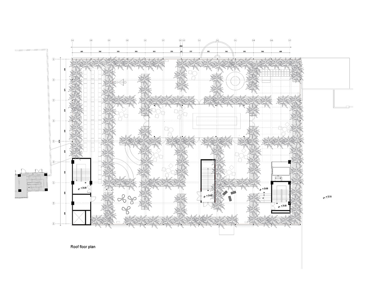
The third intervention is the “The Green House” on the roof. Upon exiting the staircase, visitors are greeted with a green bamboo landscape packed with amenities and activities.
This is arranged to form a bamboo “maze” that divides the rooftop into different rooms, The Green Rooms, each containing a different activity, including a dance room, a dining room, a reading room, and many other themes for relaxation and gathering.

Temporary facade
"Nantou is a special and fascinating place. It is very important for Shenzhen. It’s really rewarding to return to this building after we exhibited here during the Shenzhen Biennale in 2017 with our ‘Vertical Villages’ and ideas for the future of cities," said MVRDV founding partner Winy Maas.
"Our proposal draws on that ambition to make this part of Shenzhen a creative force, but it also remains in touch with the people of Nantou, their needs, and the history of the place."
MVRDV has also designed a temporary canvas façade for the building to be used during the construction process. The temporary façade shows an image of how the building will look once complete, punctuated by large zips which open up the canvas to provide access to the ground floor, which currently hosts an exhibition for Shenzhen’s 40th Anniversary about the history and development of the Pearl River.
Once it is no longer needed, this canvas will be recycled into tote bags, making this temporary intervention another element in the circular economy thinking that underpins the project.

Temporary facade
MVRDV also worked with Studio Boris Maas to develop “Nantou Odyssey”, a special stool design used in a related exhibition being held in the Nantou Re-gallery.
MVRDV designed the If Factory for the Shenzhen Nanshan District Bureau of Public Works and Shenzhen Vanke Development. The design was completed in collaboration with the Urban Research Institute of Vanke, vaLue Design, and the Shenzhen Bowan Architecture Design Institute.

Nantou Factory - Roof diagram

Nantou Factory - Step diagram

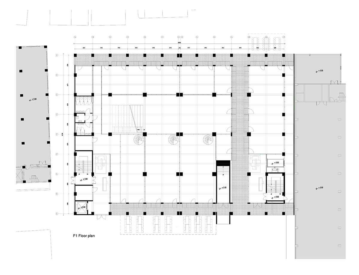
Ground floor plan

Roof plan

Section
Elevation
Project facts
Project name: If Factory
Location: Shenzhen, China
Year: 2020
Client: Bureau of Public Works of Shenzhen Municipality Nanshan District; Shenzhen Vanke Development Ltd.
Size and Programme: 11,000m2 Office
Architect: MVRDV
Founding Partner in charge: Winy Maas
Partner: Wenchian Shi
Design Team: Lorenzo Mattozzi, Guang Ruey Tan, Peter Chang, Cai Zheli, Echo Zhai, Pim Bangert, Elien Deceuninck, Daehee Suk, Monika Wiecha, Alberto Menozzi, Alexis Lode, Anamarija Vrzina, Enrica Perrot, Luca Beltrame, Michele Tavola, Hengwei Ji
Visualisations: Antonio Coco, Pavlos Ventouris
Director MVRDV Asia: Steven Smit
Strategy and Development: Jammy Zhu
Copyright: MVRDV 2020 – (Winy Maas, Jacob van Rijs, Nathalie de Vries, Frans de Witte, Fokke Moerel, Wenchian Shi, Jan Knikker)
Project planning and design management: Urban Research Institute of China Vanke; vaLue Design
Co-architect: Shenzhen Bowan Architecture Design Institute
Landscape architect: Yuanye Landscape Design
Lighting designer: GD-Lighting Design
Façade Consultant: PAG
Local Interior architect: Biaogao Design
Images © MVRDV
> via MVRDV
