Submitted by WA Contents
Issam Fares Institute for Public Policy and International Affairs at AUB
United Kingdom Architecture News - Jun 12, 2014 - 12:32 12045 views

image © hufton + crow
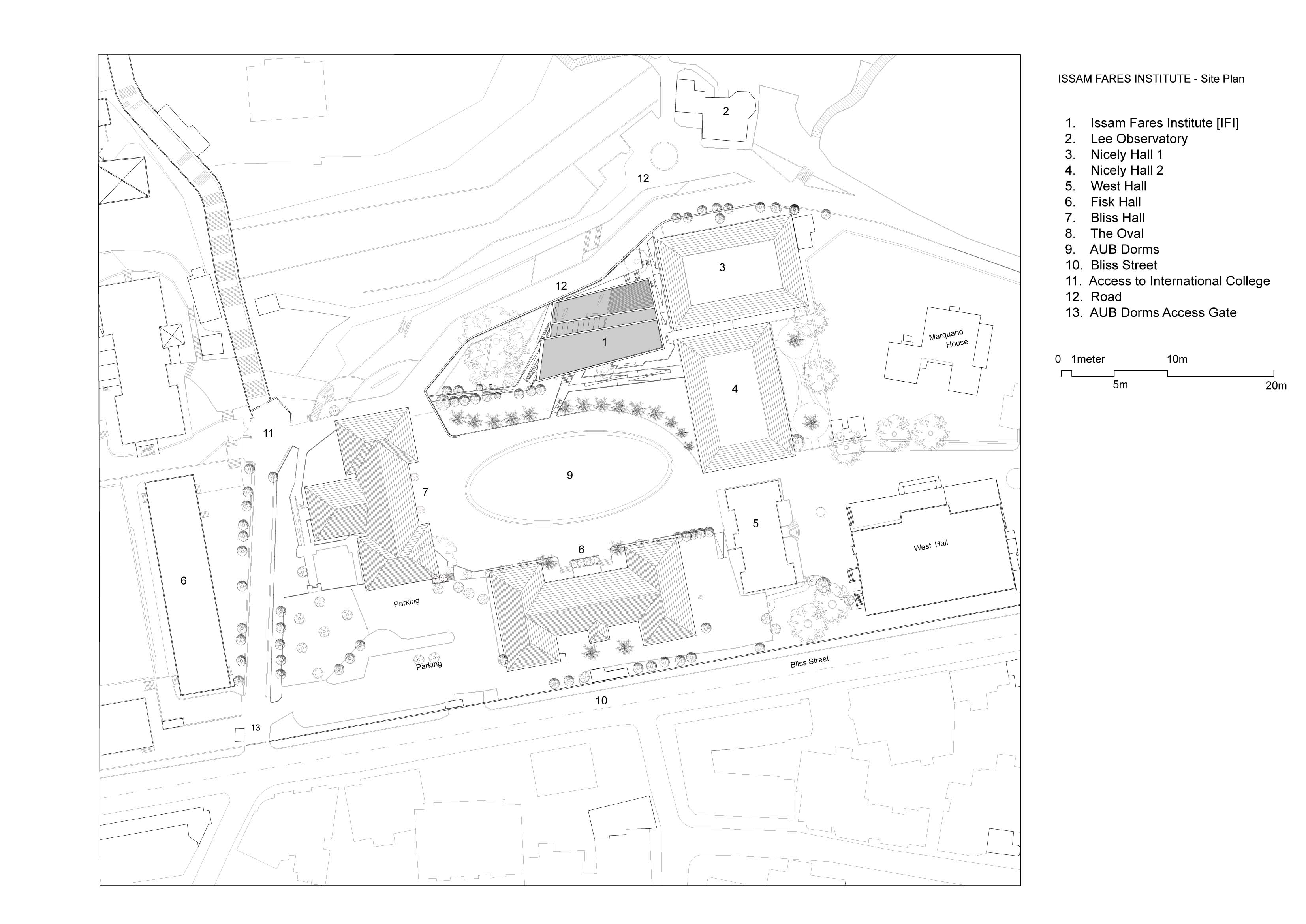
The Issam Fares Institute for Public Policy and International Affairs (IFI) building by Zaha Hadid Architects (ZHA) at the American University of Beirut (AUB) continues the on-going implementation of the 2002 AUB Campus Master Plan by Sasaki Associates (in collaboration with Machado and Silvetti, MGT of America, and Dar Al-Handasa, Shair and Partners) to advance the university’s academic mission in the 21st Century with facilities of the highest international standards.

image © hufton + crow
The IFI was established as a neutral, dynamic, civil, and open space where people representing all viewpoints in society can gather and discuss significant issues, anchored in a long-standing commitment to mutual understanding and high quality research. The institute aims to harness, develop and initiate research of the Arab world to enhance and broaden debate on public policy and international relations. It currently works on several programs addressing the region’s issues including the refugee crisis, climate change, food security, and water scarcity, youth, social justice and development, urbanism, and the UN in the Arab world.

image © hufton + crow
Relocating the infirmary closer to the new university hospital presented AUB with the opportunity to build the institute on the constrained site with a 7 metre drop in elevation between its south and north boundaries. The existing AUB campus combines buildings constructed in concrete throughout the 20th Century in a variety of revivalist and modernist styles with different cladding and rendering treatments.

image © luke hayes
In 2006, the competition jury selected ZHA’s proposal to build the new institute. The design significantly reduces the building’s footprint by ‘floating’ much of the IFI’s facilities above the entrance courtyard to preserve the existing landscape integral to the 2002 master-plan, create a new public space for the campus, and establish links from the university’s Central Oval to the Middle Campus and Mediterranean Sea to the north.

image © luke hayes
The 3,000 sq. m. Issam Fares Institute building is defined by the many routes and connections within AUB; interweaving the pathways and views within the campus to create a forum for the exchange of ideas - a centre of interaction and dialogue - at the heart of the university.

image © hufton + crow
The IFI design introduces new links between the Central Oval with the forested area of the Middle Campus and sea beyond. Existing Ficus and Cypress trees on the IFI site (aged between 120 and 180 years old) are integral to the design. The building emerges from the geometries of intersecting routes as a series of interlocking platforms and spaces for research, engagement and discourse.

image © hufton + crow
The institute invites the community inside via the many connections and paths that converge at its double-height entrance courtyard. This new civic space for the university is a covered outdoor terrace and extension of the shaded area beneath the existing trees - a place for chance meetings and informal discussion - located at the nexus of pathways that traverse the site.

image © hufton + crow
A ramp leads between the trees to connect the research lounges on the second floor directly with the campus, while the first floor seminar room and offices are accessed at grade from the east and public courtyard to the west. These routes meet within the IFI to describe the atrium hall; establishing the institute as a crossroads - a central hub for students, faculty, researchers and visitors.

image © hufton + crow
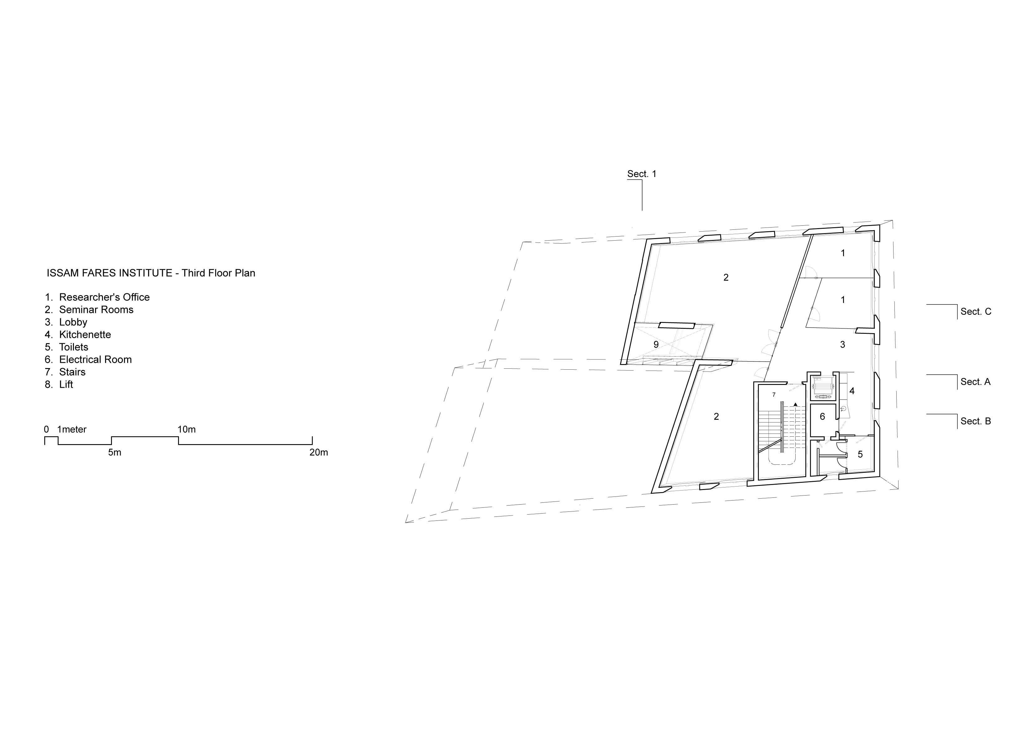
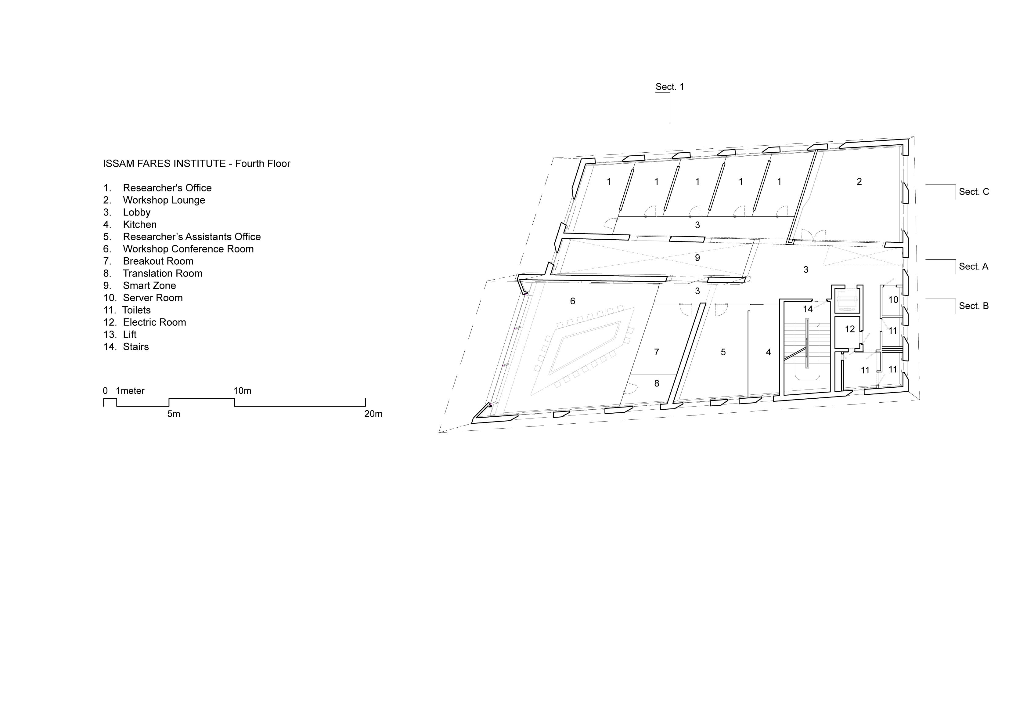
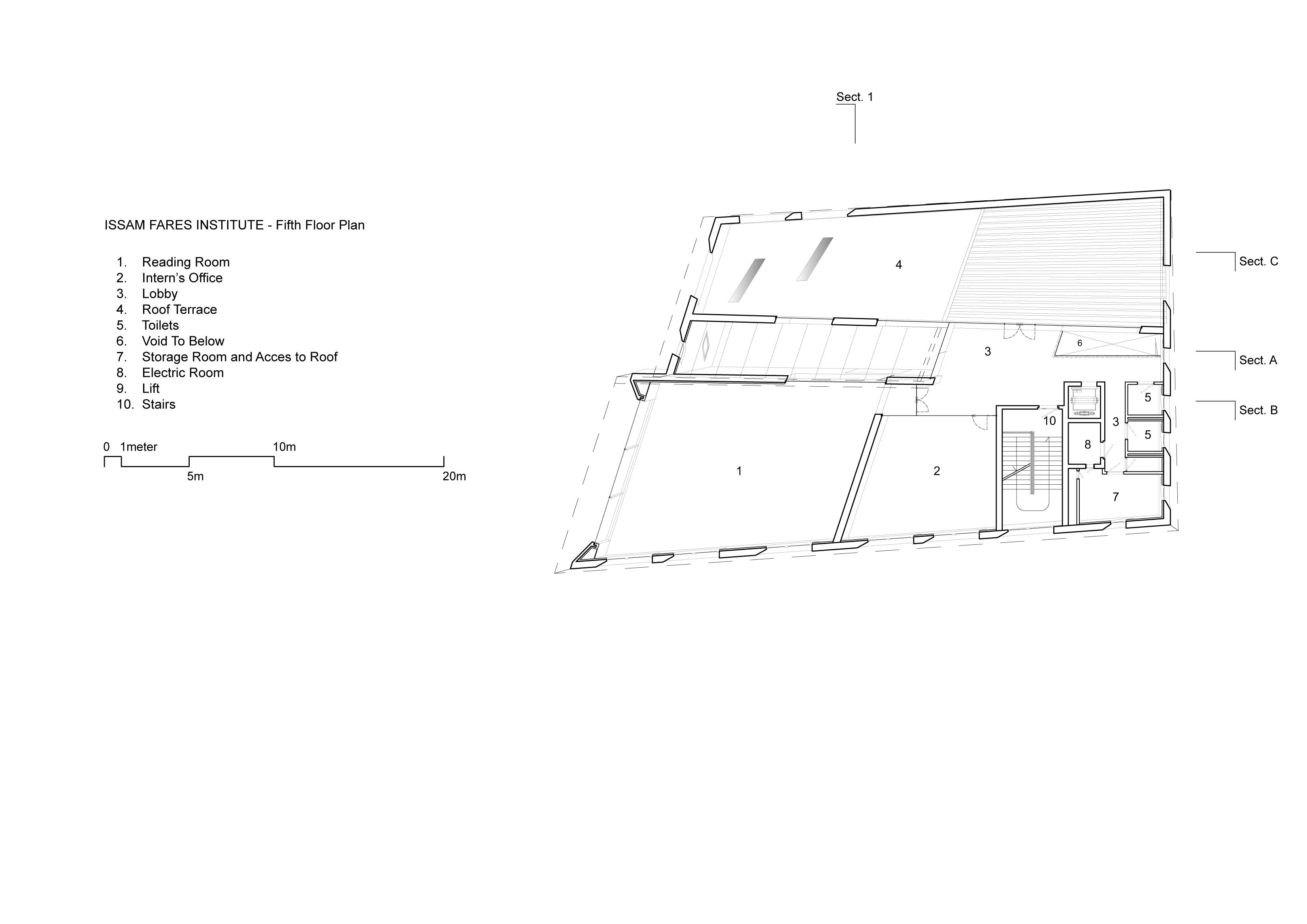
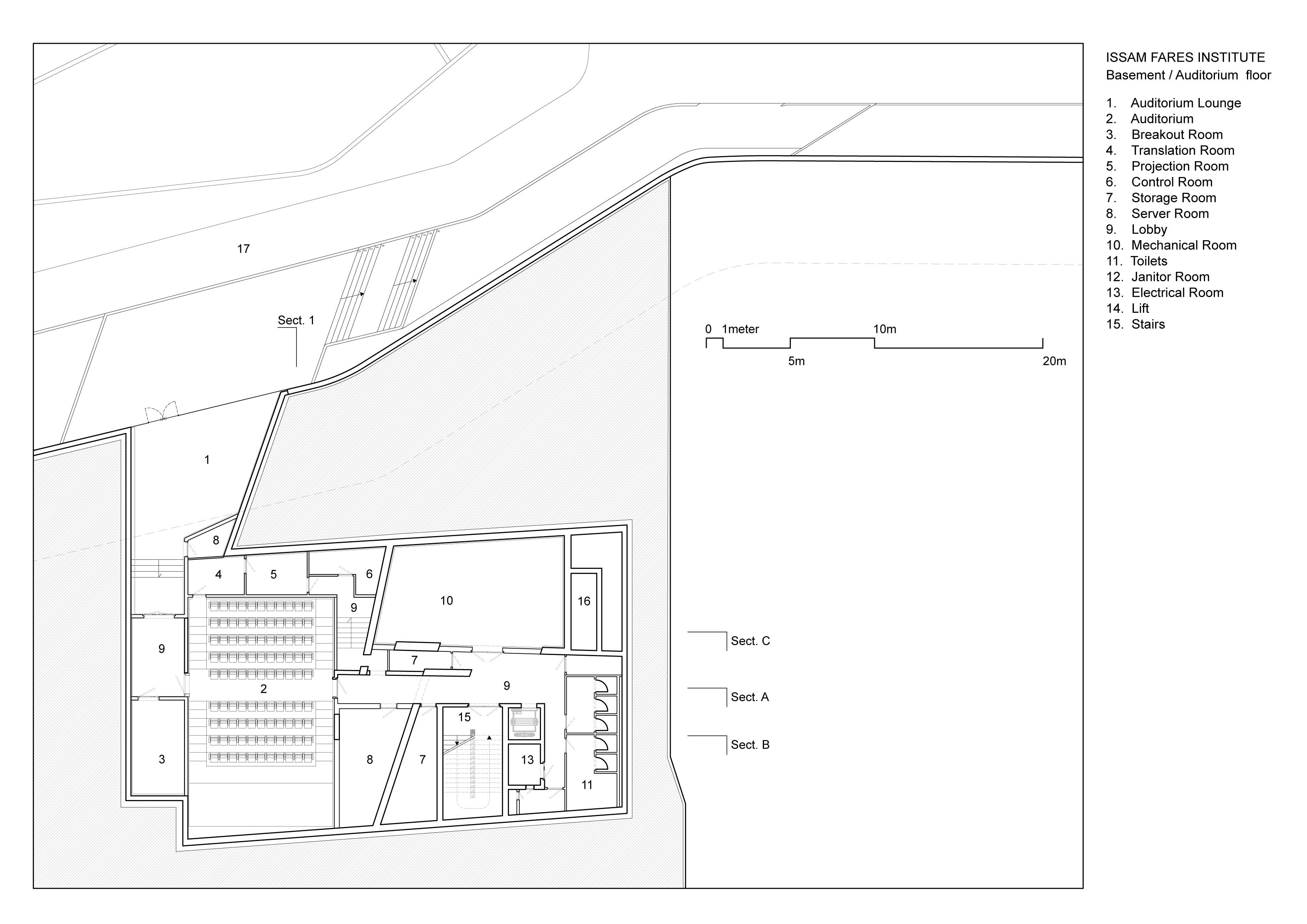
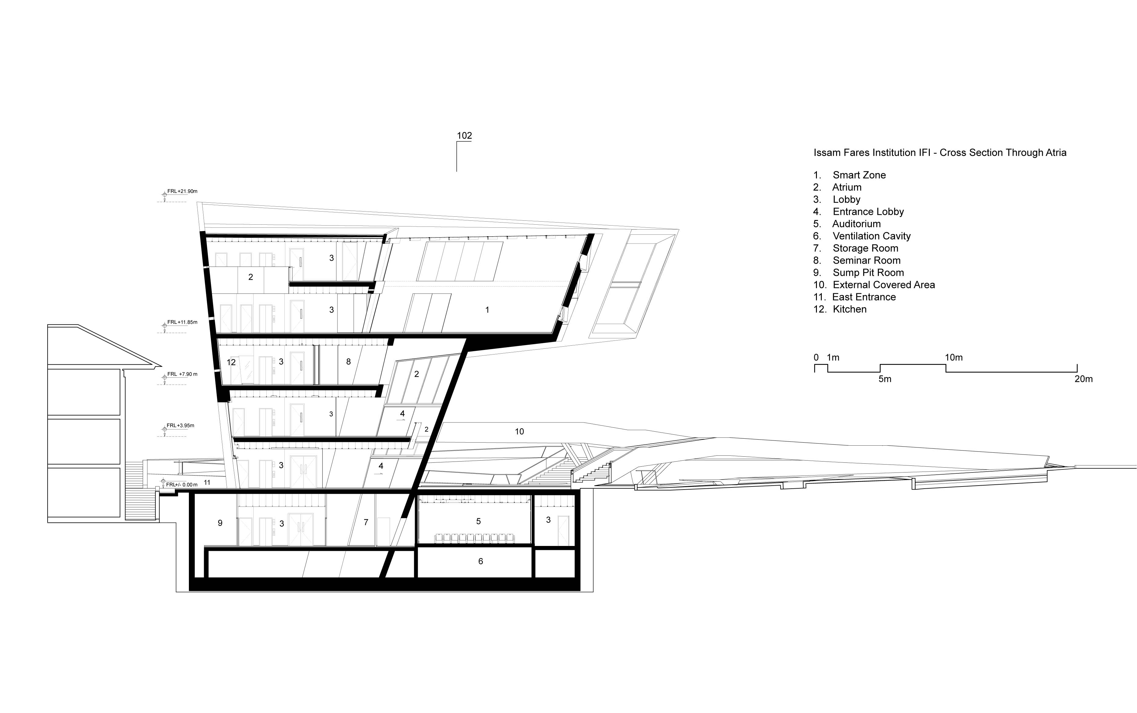
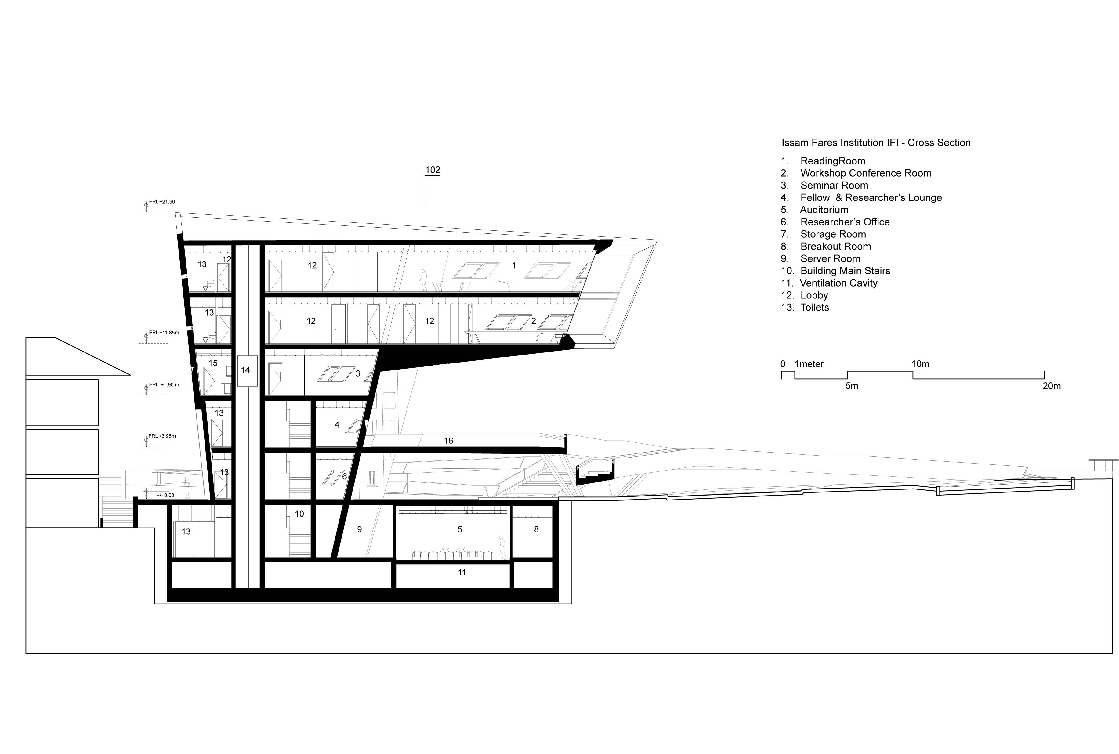
The IFI’s reading room, conference workshops and research rooms ‘float’ above the exterior courtyard. The 100-seat auditorium is on the lowest level with its own entrance to the north, enabling the institute to host larger conferences and presentations without disrupting students, fellows and researchers working throughout the building. Internal partitions are in ink-pigmented glass to enable communication and interaction.

image © luke hayes
The building takes full advantage of the region’s tradition and expertise of working with in-situ concrete. Passive design measures, high efficiency active systems and recycled water technologies minimise the building’s impact on the local and wider environment.

image © luke hayes
The IFI’s design builds upon the institute’s mission as a catalyst and connector between AUB, researchers and the global community. Routes, views and links within the campus converge to define the IFI as a three-dimensional intersection; a space for university’s students, fellows and visitors to meet, connect and engage with each other and the wider world.

image © hufton + crow
“This building asserts confidently that we are not a university that stays rooted in time and place; rather we challenge conventional thinking and actively promote change and new ideas,” said AUB President Peter Dorman. |

image © hufton + crow
“However scintillating the space and however ambitious the Institute’s plans, none of this would have been possible without the forward-looking vision and unbounded generosity of the Institute’s namesake, His Excellency Mr. Issam Michael Fares,” noted Dorman. |

image © luke hayes
Founded in 2006, within AUB, the Issam Fares Institute for Public Policy and International Affairs has established itself as the leading academic think tank, producing original research related to regional issues and international affairs. |

site plan

1st floor plan

2nd floor plan

3rd floor plan

4th floor plan

5th floor plan

roof level

lower level Auditorium

section1

sectionA

sectionB

sectionC
Project Facts
Total site area:7,000 m2
New exterior spaces:4,000 m2
Total floor area: 3,000 m2
Auditorium capacity:100 seats
Floors: 6
Maximum height:22 m
Length of cantilever:21 m
Primary Client:American University of Beirut [AUB], Beirut, Lebanon
University President: Dr Peter Dorman
Facilities for Design & Planning Unit Director:Bassem Baroumi
IFI Project Manager:Alain Eid
Client:Issam Fares Institute for Public Policy & International Affairs [IFI]
Director:Dr Rami Khouri
Architects:Zaha Hadid Architects (ZHA)
Design:Zaha Hadid and Patrik Schumacher
ZHA Project Architect:Saleem A. Jalil
ZHA Project Team:Christos Passas, Saleem A. Jalil, Graham Modlen, Human Talebi, Brandon Buck, Miya Ushida
ZHA Competition team:Saleem A. Jalil, Rokhsana Rakhshani, Teakjin Kim, Ben Holland, Charbel Chagoury, Anas Younes, Fulvio Wirtz, Mariagrazia Lanza, Renata Dantas.
Local Architect:Rafik El Khoury & Partners (Hazar Mansour, Roger Skaff)
Structural Engineering:Rafik El Khoury & Partners (Rafik El Khoury, Georges Sfeir, Maya Charry, Guy Ghosn, Roger Skaff)
Mechanical Engineering:ZEF London (DD stage) / Rabih.Rafik El Khoury & Partners (Issam Mourrad)
Electrical Engineering:Rafik El Khoury & Partners (Karim Nammar)
Acoustic Consultant:Rafik El Khoury & Partners (Wassim Sader)
Contract Administrator:Rafik El Khoury & Partners (Roger Skaff, Zeina Bou Mikhael)
Drawings & Construction:Kettaneh Construction s.a.r.l.
Project Director:Bahzad Choubassi
Site Manager:Elie Awaad
Project Coordinator:Sabine Choubassi, Assem Soubra
Mechanical Coordinator:Georges Saade
MEP Subcontractor:CLIMTECH
Structural Engineers [Post-Tension]:Darweesh Haddad
> via Zaha Hadid Architects
