Submitted by WA Contents
Studioninedots built soft red concrete residential tower in Almere
Netherlands Architecture News - Feb 15, 2024 - 12:12 2349 views

Amsterdam-based architecture and urban design practice Studioninedots has built a new residential tower made of soft red concrete façade in Almere, the Netherlands.
Named Highnote, the 16,000-square-metre tower comprises 157 apartments, semi-public urban rooms, restaurant, café, workspaces, bicycle storage.
Located in Landdrostdreef, Almere, the tower is envisioned as an "urban room" that can be a home to a new collective culture of residents and the city.

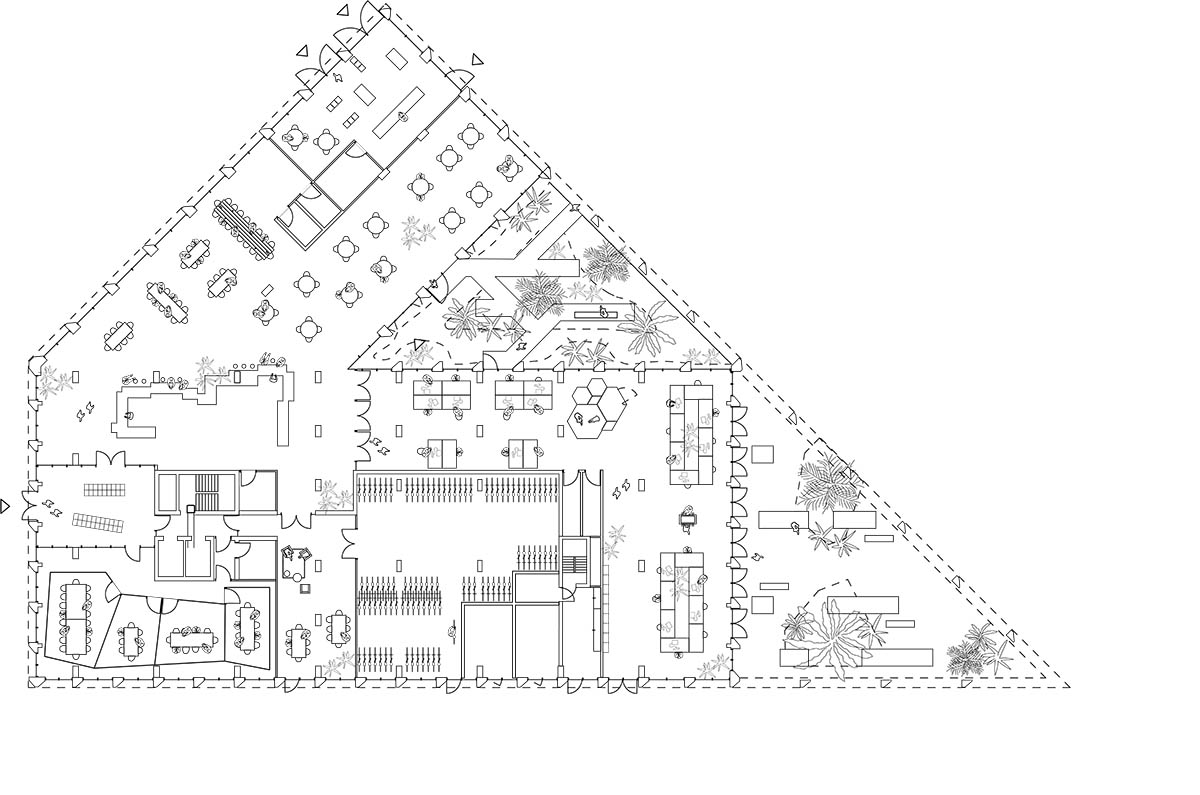
Studioninedots has imagined the scheme with a unique feature: a triangular plinth that consists entirely of urban rooms.
According to the studio, they act like intimate, urban indoor and outdoor spaces, flowing into each other and enticing you to wander through them.
Each urban room sparks its own sense of wonder, yet always leaves its use to your imagination.

Key feature of the tower is a continuous colonnade that contours the urban room sequence, which is situated along the edges of the entire plot.
"Its appearance is strong yet abstract, inviting your own interpretation of the spaces it surrounds. Together, the urban rooms create the gradual transition from the buzzing city to the private homes in the tower," said the studio.

"The city of Almere has a quickly rising number of young and starting city dwellers, yet there is still limited housing in the city centre. The municipality aims to turn the centre more sustainable, green and dense."
"Pedestrians are prioritised: by linking existing and future squares and places with their own characters and functions, a new green walking strip through the city centre is emerging," the office added.
The office stated that "until only recently, there was a stony and barren residual site, lying fallow along one of the city axes to the heart of Almere."

The municipality aimed to repurpose the site into one of these new urban destinations.
The goal of the municipality was to create a high quality housing for a wide range of starters with healthy living space and unexpected functions that generate new liveliness in public.
For the architects, the compact, triangular shape of the plot created additional difficulties in realizing this desire.

"We embraced the plot’s shape and converted its challenge into the design bedrock.
With this, we created the opportunity for not just a new landmark in the skyline, but especially an expressive public base, which arouses your curiosity as you pass by and gives back an attractive destination to the city," said Vincent van der Klei, partner of Studioninedots.
The urban rooms were envisioned as new places to meet up, work, relax, study: they are spaces designed to inspire, fostering guests to use them as they see fit.

The office wanted to create urban rooms that were characteristic but as versatile as possible, and it was also important that they could be adapted to future needs.
"We conceived the square on the west side to be transparent and open, welcoming the people entering from the city centre. This square, or as we call it the Werf, is set to initially become the site for art installations and public events for residents and the neighbourhood," the office added.
"In parallel, it will co-function as an outdoor workspace for adjacent creative makerspaces to be installed inside. Along the alley lies the Hof — a contrasting, sheltered space through which new walking paths with seating elements wind."

"This area brings a luscious green garden, providing a space of tranquility and flooded with daylight at certain times of the day," the office continued.
On top of the lower, south-facing volume lies the Dak, a rooftop garden offering the residents their own 450-square-metre, green space to host a birthday party, organise a sports class or just take a break from the hustle and bustle of the city.
At the base of the tower, is an internal cultural area with workspaces, to which a café and restaurant will be added this year.

On top of this public programme, 157 homes are placed on the tower volume and for the first time in Almere, 67 ‘friends’ apartments for two sharing tenants are designed.
Due to its prominent location next to the city hall, Highnote now marks the entrance to the heart of the city.
The overall development has a stepped, leaning volume and signature colour that makes Highnote stand out in Almere's cityscape, it offers a changing silhouette from all angles.

"We opted for a monochromatic, soft red concrete facade that seems to shift in colour throughout the day and soothes the rectilinear grid," said the studio.
"Each volume has its own facade rhythm, reinforcing the stacked building configuration."
The most visible feature of the tower is its facade that has robust concrete columns with deep, angled recesses. The columns create a play of light and shadow. At street level, the facade flows smoothly into the mystical colonnade.

The studio implemented load-bearing, prefabricated facade elements throughout, allowing the building to be constructed in a tight timeframe and virtually scaffold-free.
Thanks to its gridded structure, the flexible layout also allows the entire building to remain flexible in its configuration, now and in the future.


Location plan

Ground floor plan

First floor plan

Axonometric drawing

Mass diagram
Studioninedots completed a social housing complex that features staggered balconies laid out in sweeping curves in the Overhoeks neighbourhood.
The studio completed the large-scale transformation of a former Dutch Railways workshop building in Utrecht, the Netherlands.
Project facts
Project name: Highnote
Architects: Studioninedots
Location: Landdrostdreef, Almere, the Netherlands
Client: Gebiedsontwikkelaar AM, Rockfield Real Estate
Gross floor area: 16,000m2
Design - realisation: 2018-2023
Design team: Albert Herder, Vincent van der Klei, Metin van Zijl, Stijn de Jongh, Eva Souren, Ania Bozek, Sem Holweg, Isabel Albert Lopez, Marina Bonet
Collaborators: Heddes Bouw & Ontwikkeling, Van der Vorm Engineering BV, Cauberg Huygen, Flux landscape architecture
All images © Sebastian van Damme.
All drawings © Studioninedots.
> via Studioninedots
