Submitted by WA Contents
Estudio Tecalli built bar with red brick vault in Mexico
Mexico Architecture News - Jan 03, 2024 - 07:05 2750 views

Mexican architecture practice Estudio Tecalli has completed a bar with red brick vault in the ancient city of San Pedro Cholula, Mexico, a few meters from the Great Pyramid of Cholula, an archaeological site that shapes and determines the urban and aesthetic conditions of the area.
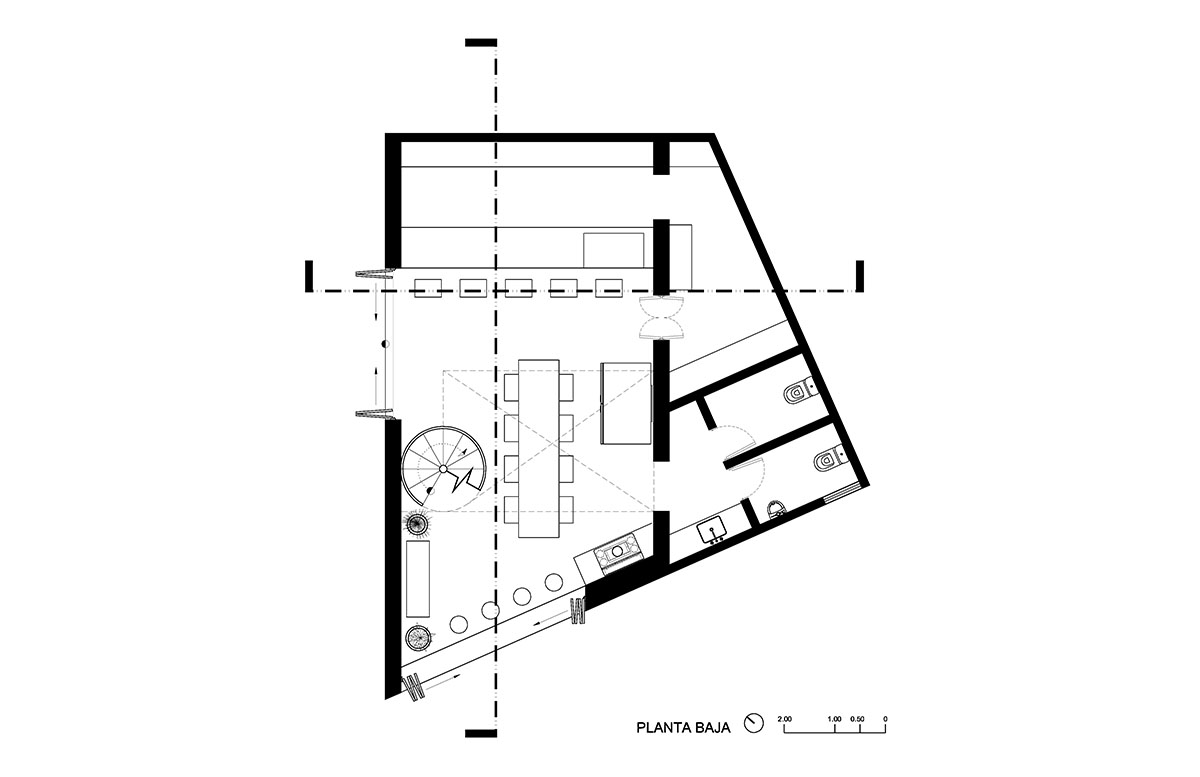
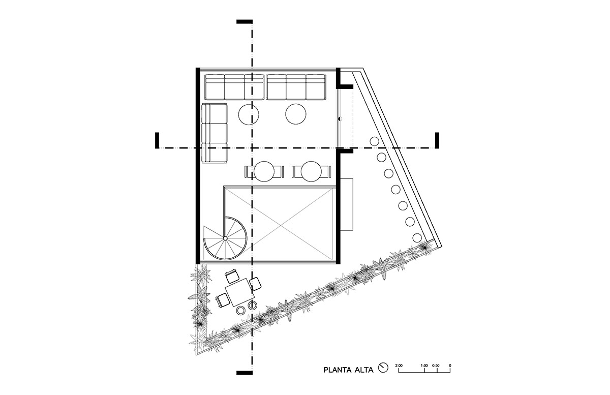
Named Casa Relámpago Bar, the 120-square-metre project is situated at the beginning of a commercial and tourist area that surrounds the historic site, and blends tourism, nightlife and the historic center of the municipality.

Estudio Tecalli evaluated efficiently an arregularly-shaped plot, located on the corner of a block dedicated to restaurants and bars, and with an amazing view of the “Los Remedios” catholic church, a famous landmark that shapes the context for several kilometers around in the Valley of Puebla.

The studio conceived the building around three design premises, as basic as they are forceful. The first one was a base material that molds the interior and exterior, the construction process and the structure, in this case the red bricks of the region.
The second feature was a vault that covers the majority of the project in one and two heights.

The third one were decorative elements that stand out for their particularity and beauty, such as the polished concrete on the floors, framed with golden aluminum profiles, the concrete slabs in the middle of the floor, and the natural wood furniture, which contrasts and complements the other materials of the building.

"The biggest design challenge was at a geometric level, that is, the juxtaposition of a rectangular element that forms the base of the building, with the vault that crosses the lot from side to side and frames the view towards the pyramid," said Estudio Tecalli.
"On the façade we used inverted slopes in windows and access door, with the purpose of blocking the spring and summer sunlight, and opening to the sun in winter, when more heat accumulation is needed, and at the same time, show the quality of manufacturing that local workers in the Cholula area have," the firm added.

Black checkered ironwork was proposed for the windows, and oak wood to cover and embellish the staircase and main bar, as well as furniture elements such as chairs and tables.
Casa Relámpago Bar is a manifesto to the mix of contemporaneity, the historic and ancient city, as well as the architectural legacy not only of the Puebla Valley area, but of Mexico throughout its history.

















Estudio Tecalli also completed a family house combining three major materials: red clay brick, concrete and glass in San Pedro Cholula, Puebla, Mexico.
Project facts
Project name: Casa Relámpago Bar
Architects: Estudio Tecalli
Location: San Pedro Cholula, Puebla, México.
Interior Design: Orlando Morán Cedillo
Furniture: Javier Castañeda
Área: 120m2
All images © Amy Bello.
All drawings © Estudio Tecalli.
> via Estudio Tecalli
